查看完整案例


收藏

下载
说在前面:本案是一个老房改造项目,完工之后将作为一对夫妻的新居。老房户型通常都比较狭小,里面的房间分割并不适宜现下的生活方式,现有的结构也将光线遮挡了很多,整个房子显得昏暗压抑。
业主希望设计师能在有限的空间中为自己的未来生活保证独立的客厅以及用餐空间。设计师结合业主的需求进行了新的考量,将空间重新合理规划并且让动线避免曲折。为业主打造出一个客厅、餐厨、洗浴晾晒功能齐全的新居。在材质的利用上,无论实用还是视觉效果都配合整体格局将风格引向简约却宜居温馨的层次。
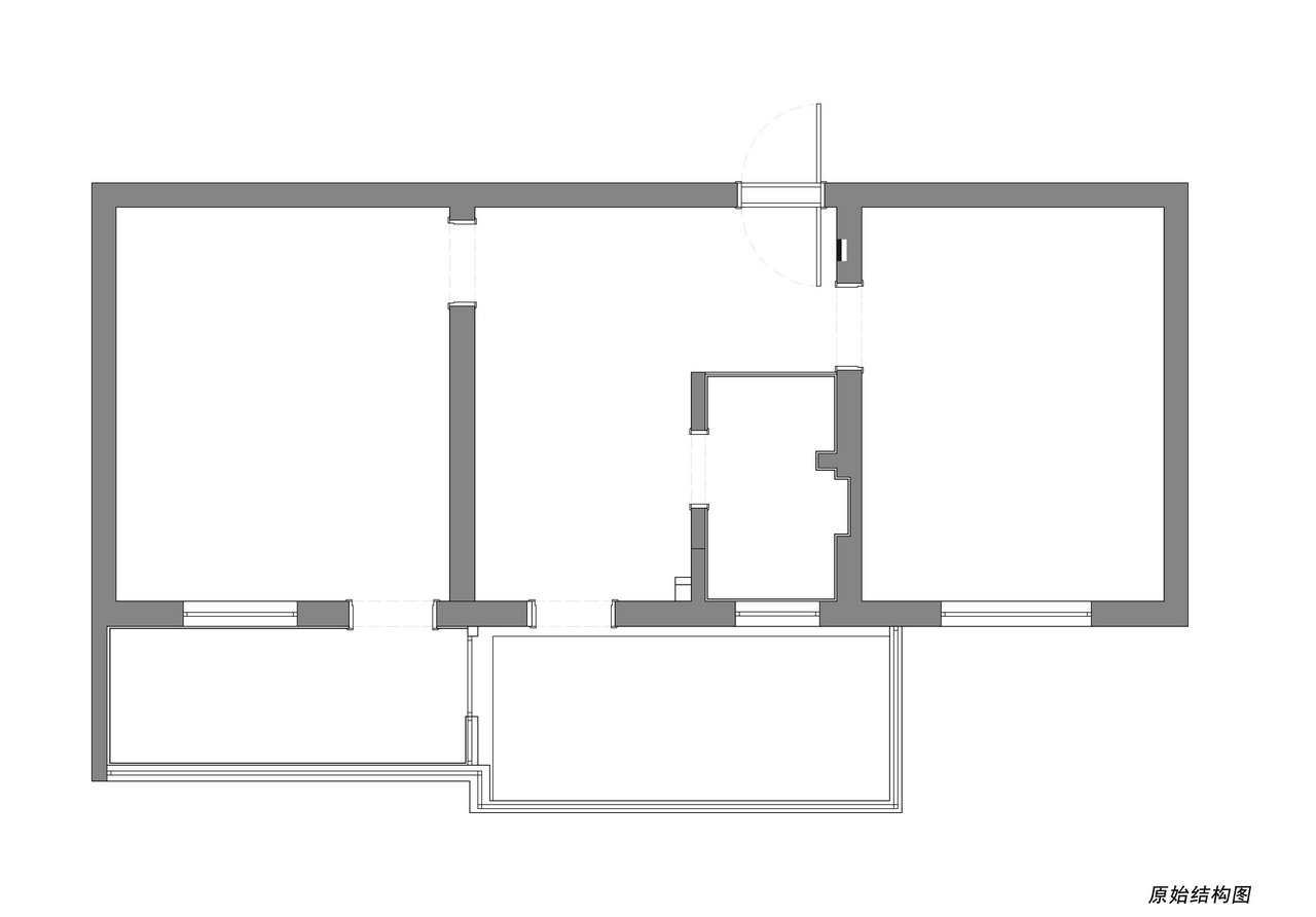
“不再冷清的感觉,你搬进我的房子以后才有。”空间布局
▲原户型问题&居住需求:1.老房子的通病就是空间较小,没有合理的客餐厅与厨房位置,空间的分布也不适合现在的生活习惯,卫生间狭小无法将所需功能完全实现。
2.业主日常两人居住,需要一间卧室。
3.业主希望实现独立的客厅和餐厅空间,厨房空间也要合理安排,不要占用客厅和餐厅空间。
4.卫生间的区域需要补充,满足日常所需功能。
5.保留一个晾晒洗涤功能的阳台。
6.由于户型较小,业主要求需要一定的收纳功能,并且不想占用过多空间。
▲解决方案:1.为了保证客厅与餐厅的空间独立,设计师将阳台之一拿来作为厨房,另外考虑到由于原卫生间空间狭小无法设置淋浴功能,从卫生间连接阳台的一侧墙体打通,将部分阳台空间纳入卫生间作为淋浴区。为了避免厨房空间变小,设计师将晾晒阳台部分面积纳入厨房以保证空间的合理大小。
2.受房屋面积局限,客厅、餐厅空间不够宽阔,设计师想尽量让空间的通透性最大化,利用两侧通道将原本分隔的客餐厅连通起来,动线也更加顺畅,让人生活在其中的体验感得到改善。
3.卫生间除了面积的补充之外,门的位置也进行了偏移调整,避免了正对餐桌的尴尬观感。
4.收纳柜体沿客餐厅墙面打造,不占用过多空间,保证公共区域的完整性。
实景拍摄图
01
玄关 / HALLWAY
玄关让进门处有了遮挡,白色可以提升小空间的延伸感,造型有趣的黑色挂钩点缀在白墙上,可以挂衣物,背后隐藏的灯条为夜间提供小夜灯的功能,方便日常生活,也提供了不可缺少的的装饰感。
02
餐厅/DINING ROOM
▲餐厅与客厅由两扇门连通,在公共空间中形成了环形动线,得到改善的不止通透性与采光,还有生活的自由度。
深色与浓郁焦糖色的餐桌椅倚在浅灰色墙边,艺术涂料的浅灰色,并不光滑略有的斑驳质感好像时光流逝而过,留下的是自家才有的妥帖与温度。
连接餐厅与客厅的门采用长虹玻璃移门,美观、通透与私密兼得。
▲设计师希望在不牺牲空间整体格局的情况下尽量增加储物功能方便日常生活,让杂物用品可以被藏起来或者妥善摆放,增添必要的收纳和也起到放大空间的效果。
餐厅沿一侧墙面设立定制柜体以及置物架的组合形式,可以更好地的适用于原本就不大的空间,隐秘收纳与开放式架子结合,满足多种需求,底部的开放式选择方便进出门的鞋物摆放。柜门的哑光灰色进口仿岩板,为餐厅空间沉淀出细腻内敛的背景。置物架搭配了原木色的饰面板,浅木色让沉稳的空间趋于柔和。
03
过道 / CORRIDOR
▲玄关望向客厅的工作区。
▲餐厅望向卧室一角。
▲客厅一侧暗藏的储物空间以及卫生间的白色移门,都不占用空间。这是在 50m2 小户型中设计师呈现出的双通道连接的独立客厅与餐厅,即使小也可以挥别紧凑,增添通透也为生活方式提供可选择的余地。
04
客厅/ LIVING ROOM
▲客厅的电视背景墙是上下部分白色的收纳柜结合电视收纳,黑白鲜明的对比与简洁的线条观感十分舒适,特地选用了按压式柜门没有打破整体的简洁气质。
一侧墙体设计师打造为收纳柜与工作区结合的角落,落地柜子是与餐厅同样的仿岩板柜门,开放与封闭结合,摒弃整面封闭的压抑与拥堵。工作区是多层隔板嵌入其中,上层隔板可收纳,下层充当桌子,简洁明了的形式避免了给小空间附加功能带来的局促,也方便日常的清洁。
▲艺术漆的哑光感是客厅空间的肤色,这样不起眼的沙发却可以为休息的时候增添无限的舒适感受。茶几厚重,是与沙发相协调的敦厚感,与钓鱼灯、挂钟纤细的线条感搭配是现代风格的不拘束之处。
▲体积较大的钓鱼灯影子投映在墙上,这样旧色调的画面像黑胶唱片的外封面。
05
厨房 / KITCHEN
阳台改造的厨房空间在黑白之下格外明亮,U 字形的操作台面将空间充分利用,橱柜选择亮面烤漆配合暗拉手,小空间中过多的零碎即是累赘。
06
主卧 / BEDROOM
▲卧室也以白色为主色调,无形之中可以在视觉上产生放大效果,即使小户型也可以感受到宽敞的卧室。一侧的墙面做整面的柜体,补充收纳功能,白色烤漆柜门抽槽形成把手,是无饰的简洁感。
床头背景墙采用地板上墙“小人字型”拼接,天然的纹理再由人工组合为白色空间的卧室拉近了与人的距离感,温暖可亲,台灯玫瑰色金属与玻璃结合的造型是生活中点滴的浪漫情怀。
07
卫生间/ REST ROOM
▲卫生间选用移门,节省空间留给功能需求。由于卫生间空间的扩充,功能分区得以很从容地实现。白色烤漆浴室柜延续橱柜的暗拉手选择,墙侧利用壁龛增加储物空间。
【工程地址】:双井巷【设计风格】:现代简约【案例格局】:50㎡ / 1 室 2 厅 1 厨 1 卫【设计++ 施工单位++ 主材定制】:熹维设计【作品摄影】:ingallery【视频拍摄】:Lby2【设计材料】:乳胶漆,艺术涂料,地砖,地板,长虹玻璃,熹维柜体定制……
客服
消息
收藏
下载
最近




















