查看完整案例

收藏

下载
久拾 90 Space
一个关注文化、生活、创意的自媒体,致力于筛选出一系列优质的内容,给希望遇见有趣的人们带来最有质感的线下体验。
▼项目概览
游牧系列 1.0
Nomad Series 1.0 设计和空间的形式不应该被束缚,应该能够成为社会变革的催化剂。在消费主义主导下的当代充满虚幻感,却也伴生出一种仿佛自由、无约束的现代都市气质,追求建筑空间的临时性与移动性。
▼定制灯箱
在久拾这个项目,我们关注的是如何超越建筑或室内的范畴,和品牌一起去设计构成空间的文脉,使其能包容日渐变幻的当下年轻人的需求。
多态/共生 Hybrid/ Coexistence 设计师希望能扩大空间的社会化属性,一个空间也可以是一个微小的城市,不断的自我更新。物理形态上的“多样性”是社会“多样性”的前提;不同功能可以拥有不同的体量,也会以不同的方式去运用空间,杂交共生。
▼“街市”视角
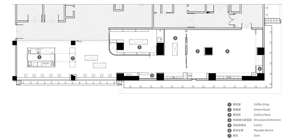
久拾主要由三个不同功能及面貌的盒子及其之间形成的“街市”构成,人与人处在合适的社交距离,“小尺度”迫使人们互相认知、相处,增加了人和人建立联系的可能性。
▼快闪零售空间
▼圆形窗洞
由于“余留”空间的尺度控制便于建立“漫游路径”,虽然独立空间内留有相对的区域感,但是对于所有的消费者来说这个空间是开敞宜人的。如同于街市中寻觅惊喜,碰撞出感官的奇遇。
▼“漫游路径”
长期/临时
Long-term/Temporary 咖啡屋和绿洲盒子属于相对长期的主功能区,展览、讲座、WORKSHOP 以及快闪零售则属于临时性的功能。咖啡屋和绿洲盒子像是空间的锚点,是人们产生链接的基础,一杯咖啡一株植物即可破壁;开放状态的展厅则像一个文化与生活的记录器,顾客通过参与其中给空间予反哺。
▼咖啡屋
▼细部
▼绿洲盒子
▼细部
灵活/重组 Flexible/Reconfigurable
家具游牧化|Flexible Furniture 灵活的道具,找到不同于既定用法的使用方式,实现多功能空间的转换和延拓。
▼零售盒子与展览盒子分析图
▼零售盒子
场景随机性|Space Randomness
通过道具在空间中的多样组合,店铺不再是一成不变,定期更换的内容给空间赋予了较传统店铺多几倍的生命。在不更新店铺主体的情况下,通过道具的迭代,同时可在一定生命周期内完成空间的迭代。
▼展览空间分析图
▼展览入口处
▼展览
▼展览细部
关于游牧系列
About Nomad Series
“都市游牧”是如室为了应对消费主义破灭而开发的设计系列,是如室会持续推进的设计线之一。以先期推进研发,后与品牌共同落地的形式开展项目;通过调整设计程序,以保证设计时间和精度,取得设计质量与施工成本之间的平衡。设计的最大作用并不只是创造商业价值,也不只是包装和风格方面的竞争,而是一种参与到社会变革过程中的要素。
永续设计,它不一定是单就产品本身,也可能是一种新的消费模式,从各方面去尽力达到永续循环的目的,这也是我们持续学习和进步的方向。
我们在 1.0 版本,抱着对 2020 年的期待和展望去设计工艺要求精良的道具体系。在未来,游牧系列会更讲究工业制成品的有效利用,用更聪明的方式去探索品牌与设计之间的碰撞。
▼空间使用场景
▼立面图
▼绿洲盒子立面图
▼平面图
项目名称:久拾
项目类型:餐饮,零售
设计方:Ruhaus Studio
项目设计:2020
完成年份:2022
设计团队:王艺儒,朱丹丹,林诗婷,苏玉梅,许丹琳
项目地址:广东省深圳市新湖路 50 号得丰·圆方购物中心 2 楼 206-208 号
建筑面积:230㎡
摄影版权:夏同,久拾 90 collect
合作方:东莞市诚渝展示道具有限公司
客户:久拾 90 collect
材料:不锈钢,自流平
客服
消息
收藏
下载
最近






































