查看完整案例

收藏

下载

翻译
Modular temporary housing for emergency needs / Diploma project
As a topic for my diploma project I have chosen to create a temporary housing project with modular transformable units. This project is located in northern part of the Republic of Armenia(Tavush province).
In 1988 a devastating earthquake happened in northern regions of Armenia thus creating a huge wave of refugees and the government could not cope with the problem.
The main goal of this project is to serve as a tool for a quick response in case of emergency situations.
General assignment
The quarter itself consists of 3 main parts:
1. Gathering spaces - Here the refugees arrive, later from these places they will be sent to their modular houses.
2. Green zone- This zone acts as a source for fresh air for the quarter. Also it will act as a big communal park later.
3. Inhabited areas- These are the areas where modular houses and other infrastructure are placed.
Main module
This module is made for 6 people. This number is based on the research that was conducted during the project. Main module has 3 bedrooms (2 bedrooms have bunker beds), a WC and a Living room that also has a kitchen in it.
Placement stages of the main module
As a solution for transportation I chose panels that can be folded . This type of structure does not need much special equipment and can be built on site by non qualified workers.
Exploded view
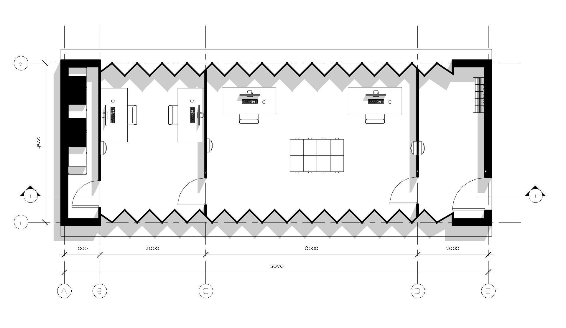
Hospital module
Hospitals are made to host 6 patients at once and will also have a special room for workers and doctors. Next to hospitals will be placed multipurpose buildings that will act as storages.
Laboratory(folding building)
These buildings are not mandatory. Their main purpose is to examine food or water and conduct various tests in the Quarter.
Multipurpose building(made of fabric)
These buildings are designed to be placed both independently and next to other buildings such as hospitals. They can act as a storage for food and medicine, or can be transformed into primary shelters for newly arrived refugees.
Thank you !
客服
消息
收藏
下载
最近

















