查看完整案例

收藏

下载

翻译
Planar studio project Parcoffka coffee shop
Interior design coffee shop Parcoffka in Kamenskoye by Planar Design
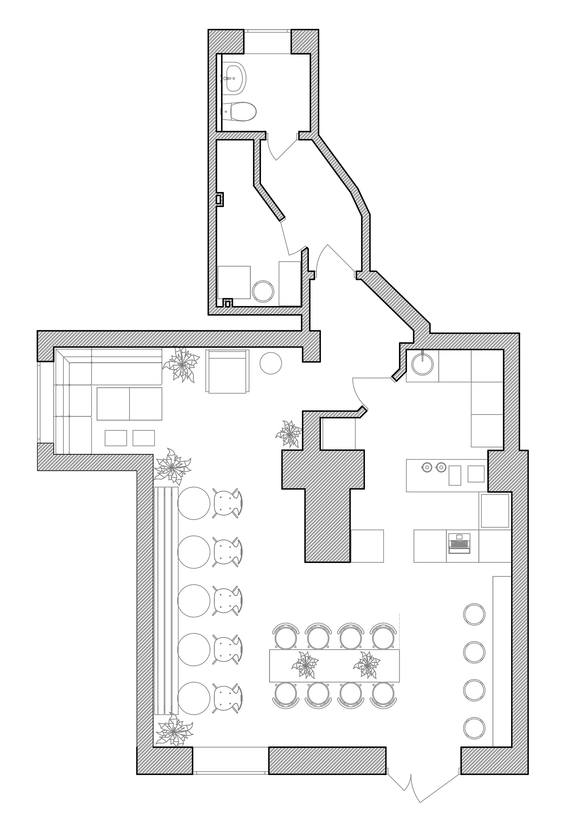
Parcoffka – a city coffee shop with an area of 60 m2 in the Zavodsky district of Kamenskoye. The room is located in an old building at 8-12 Sachka Street on the first floor of a house in the 70s. The authentic facade, spoiled with aluminum composite panels, unfortunately, could not be restored to its original appearance. Parcoffka's core value is its friendly space. We've created a cozy interior that allows guests to enjoy coffee and conversation. The atmosphere of the interior space was emphasized with the help of industrial minimalism. Planar Design studio sought to preserve the industrial-industrial vibe of the city in the coffee house Parcoffka. The interior looks minimalist, but does not lose touch with trends in industrial aesthetics.
To create a sense of psychological comfort, the studio Planar design used warm directional light of Edison lamps and LED-lighting to emphasize the texture pattern of the imperfect brick wall. Above the main table, the designers placed pendants with flowers and three directional lights found at a flea market with Edison lamps. Custom furniture was used in the design. A Friendly table for six people was designed specifically for the project by the designers at Planar design studio. The tables were made according to the drawings of a local furniture company, and the plastic chairs were made by Ikea. Parcoffka is a kids-friendly, pets-friedly, all-friendly coffee house where every guest is a friend. The quality of coffee here remains top-notch
Our instagram 👉 planar_band
instagram Coffee Parcoffka 👉 parcoffka_coffee
客服
消息
收藏
下载
最近




























