查看完整案例

收藏

下载

翻译
MUSEUM OF COGNITIVE PLAY
Bachelor Project | Semester 8
Abstract
The Project is assigned in four different locations, where one must choose between them. The Typology of the building is a museum, were the specific typology or function of this museum will be chosen according to a concept. The Project is a cognitive enhancing museum in Fustat that uses games and interactive education as tools of enhancement. The project is a new introduced typology of museum with new functions and program that will attract visitors from around Egypt. The concept of this project is to use simple geometric shapes to create complex masses and intricate clusters. The goal is to enable the transformation of art into architecture.
Site Analysis
FUSTATOld Cairo is one of the richest areas in our capital. Not because of social status, but because of the great historical and artistic heritage of the area. In addition to unique historical sites, you can also find the most beautiful architectural and cultural treasures on the land of Al-Fustat, which was once the capital of Egypt. But the ones that stand out the most are Amr Ibn El Aas mosque, The Hanging Church, and Fustat Traditional Crafts Centre.
STREET HEIRARCHYThe site has two main roads surrounding its edges, and a metro station at a walkable distance which will provide easier and better accessibility. The site is surrounded by two main roads. shown in the figure above.
LANDUSEArts and Crafts areas and a Botanical garden located south of the site. Both will influence the project greatly since one enhances creativity and the other increases relaxation and vitality.
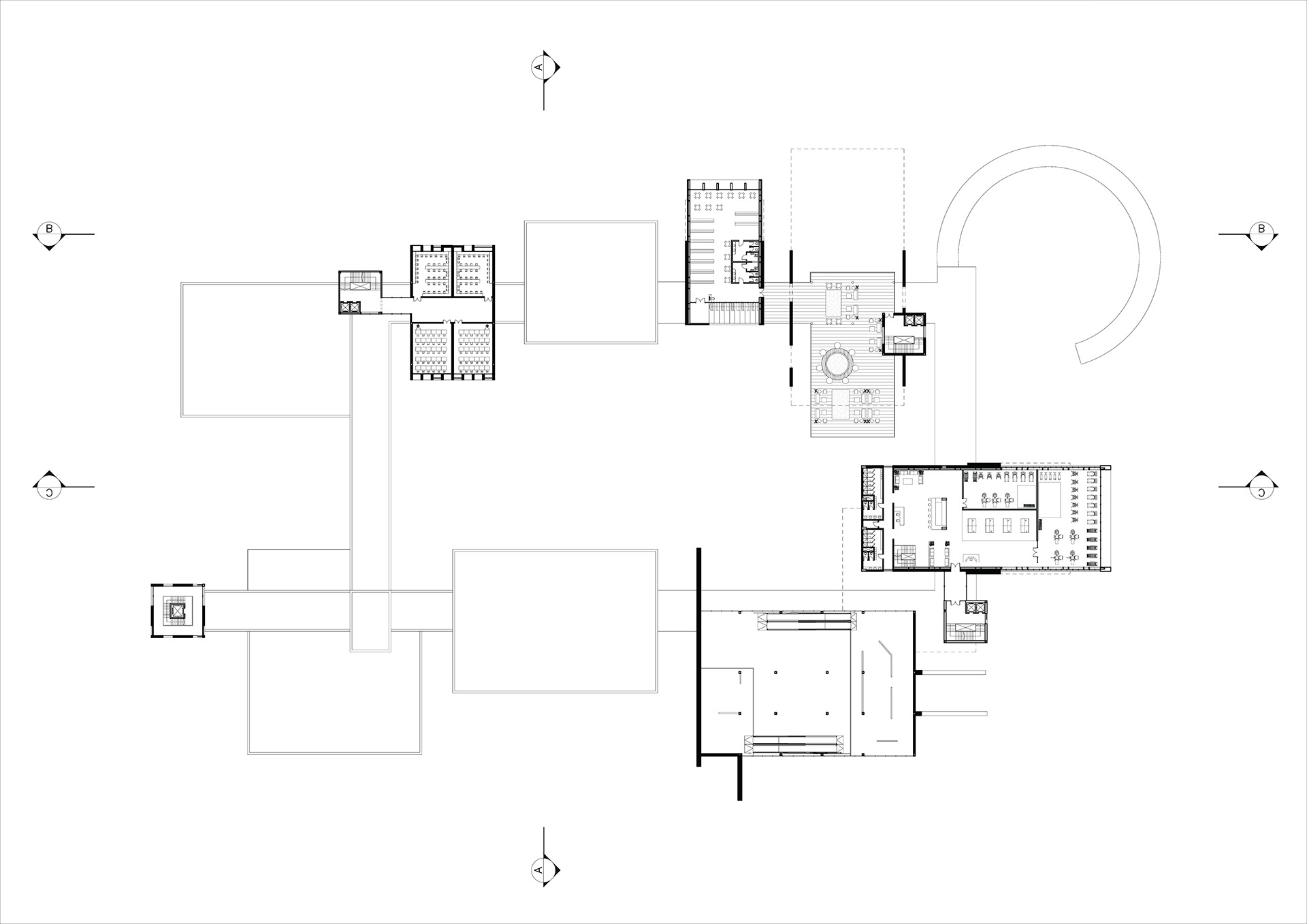
Floor Plans
Second Floor Plan Third Floor Plan
Courtyard Spaces
Physical model
Panels
客服
消息
收藏
下载
最近
































