查看完整案例

收藏

下载
山坡上的 Bunkie 住宅作为分散在四个地块的度假屋系列中面积最小的一栋,为 Muskoka 的家庭旅客提供了喘息的空间。Bunkie 住宅隐藏在陡峭斜坡顶部的树林中,旨在提供一个安静的空间,远离了斜坡下其他多代家庭小屋的活动日常。
The smallest in a collection of cabins scattered across four family properties, a Bunkie on the Hill serves as a space of respite for a family-oriented client in Muskoka. The Bunkie, tucked into the trees at the top of a steep slope, was designed to provide a quiet space away from the action of the multi-generational family cottages below.
▼项目鸟瞰,aerial view of the project© Riley Snelling
▼顶视图,top view© Riley Snelling
对传统 A 型框架形状的当代诠释唤起了典型的森林小屋的感觉,而高耸的坡屋顶带来了不同的体量形式。相叠交错的屋顶设计让人联想到周围景观中重叠的岩石层,相交的山墙为屋顶体量分开的位置创造了开窗的机会。这些开窗将一侧树林以及另一侧下方的湖泊景观引入室内,同时也为小屋内部引入了充足的自然光线,反射出尖锐的屋顶角度,创造出戏剧性的线条和阴影。
▼分析图,analysis diagram© Dubbeldam Architecture Design
A contemporary interpretation of the traditional A-frame shape evokes the quintessential cabin in the woods, differentiated by shifted roof volumes. Reminiscent of the overlapping layers of rock in the surrounding landscape, the split roof design features two intersecting gables that create opportunities for window openings where the roof volumes separate. These geometric windows allow for curated views of the treetops on one side and lake below on the other and invite natural light to flood the interior of the cabin, reflecting off the sharp roof angles and creating dramatic lines and shadows.
▼远景,viewing the house at distance© Riley Snelling
▼项目外观概览,exterior views of the project© Riley Snelling
小屋的分离且交叠的屋顶设计也在两侧产生了不同的立面——面向湖泊的高而窄的玻璃立面,以及面向森林的更宽、更封闭的立面,凹进的入口凉廊则位于住宅的西侧。住宅主入口位于侧立面中部,前部为凉廊走道与板条雪松屏风,凉廊的两端则构成了望向周围树林的景观画框。雪松屏风被不断变化的西光所激活,格栅过滤了光线,产生了动态的光影效果,增强了材料的丰富性,为游客创造了引人入胜的体验。
The cabin’s split roof design also generates distinct elevations on either side – a tall, narrow, glazed facade facing the lake, and a wider, more opaque facing the forest, with a cut out for a covered entrance on the west side.
Located midway along the side façade, the cabin’s entrance features a walkway with a slatted cedar screen on one side which echoes the tree trunks seen through framed views at each end.
The cedar slats are animated by the ever-changing west light that filters through its openings, producing a dynamic interplay of light and shadows that enhance the richness of the material and creating an engaging experience for visitors.
▼侧立面,profile© Riley Snelling
▼入口与凉廊,entrance and porch© Riley Snelling
Bunkie 住宅面积虽小,但空间非常具有功能性。小角落里包含了存储架或内置长凳。每处室内空间都经过精心的设计,形成了周围森林或下面湖泊的景观画框。上层阁楼区域设置了内置桌子,可以俯瞰到一层的起居空间和远处广阔的湖泊,此外,还提供了一处额外的睡眠空间。卧室位于建筑后部,大面积的开窗让居住者欣赏到森林的美景。
The Bunkie’s interior is functional despite its compact size. Small nooks throughout contain storage shelves or built-in benches. Each interior space is designed to offer framed views of the surrounding forest or the lake below. The upper loft area includes a built-in desk with a view down to the living space on the first level and the vast lake beyond, as well as an extra space for sleeping. The bedroom is located at the rear and features a large window that offers immersive views of the forest.
▼室内概览,overall of interior© Riley Snelling
▼客厅,living room© Riley Snelling
▼夹层,mezzanine© Riley Snelling
▼玻璃山墙,glazing gable wall© Riley Snelling
▼开窗细部,details of the opening© Riley Snelling
天然材料的选择呼应了 Bunkie 住宅周围的乡村景观。灰色的木壁板与天然雪松天花板形成鲜明对比,坐落在裸露板状混凝土基础上的雪松屏风构成了入口凉廊。室内材料包括橡木地板、枫木胶合板和雪松包层,深色木炭窗框、灰色石材柜台和色彩鲜明的家具。不同的木材种类被用来区分空间中的不同平面——白色墙板定义了外墙内侧,而隔墙则采用了枫木胶合板,天花板则采用了西部红雪松板条。
Natural materials were chosen to complement the rustic landscape that surrounds the Bunkie. Greyed wood siding contrasts the natural cedar soffits and screen that frames the entrance, sitting atop the raw, board-formed concrete base. Interior materials include oak flooring, maple plywood, and cedar cladding, grounded by dark charcoal window frames, grey stone counters, and furniture that offers moments of colour. A variety of wood species was used to differentiate the various planes in the space – white wallboard defines the interior perimeter walls, internal partitions are clad in maple plywood, and the ceiling is delineated by Western red cedar slats.
▼室内全览,overall of interior© Riley Snelling
▼楼梯与集成壁橱,staircase and integrated closet© Riley Snelling
▼厨房餐厅,kitchen-dining© Riley Snelling
可持续材料和施工方法对客户来说非常重要。加厚的外墙作为被动隔热层——R 值超过了 45,此外还设有三层玻璃窗,这些策略大大降低了下部空间供暖系统所消耗的能源。尽管使用了钢框架,但还是使用了组合板梁来消除任何热桥效应。为了避免爆破的需要,Bunkie 被抬高到平地以上,它的基础建在天然岩石的顶部,使结构可以轻松地坐落于景观上。
Sustainable materials and construction methods were important to the client. The exterior walls have been thickened to serve as a passive insulator – boasting an R-value of over 45 – and include triple-glazed windows, making it possible to use a minimal heating system in the crawl space below. Flitch beams were utilized to eliminate any thermal bridges, despite the use of steel framing. To avoid the need for blasting, the Bunkie was raised above grade and its foundation constructed on top of the natural rock contours, allowing the structure to sit lightly on the landscape.
▼夹层额外卧室空间,extra bedroom on the mezzanine© Riley Snelling
▼卧室,bedroom© Riley Snelling
▼浴室,bathroom© Riley Snelling
项目中所采用的木制品都得到了 FSC 认证,少数管道和灯具都是低流量和低能耗的。天然的材料会随着时间的推移产生微妙的变化,使 Bunkie 住宅重新融入了周围的森林坡地环境中。
Wood products used are FSC-rated and the few plumbing and light fixtures are low flow and low energy. Any patina of materials over time is intentional: as time passes the Bunkie blends back into its forested hill setting.
▼夜景鸟瞰,aerial view at night© Riley Snelling
▼外观夜景,exterior view at night© Riley Snelling
▼山墙夜景,night view of the gable© Riley Snelling
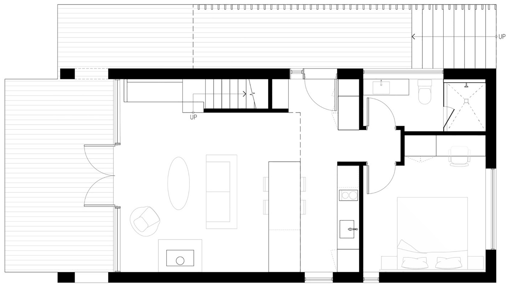
▼底层平面图,ground floor plan© Dubbeldam Architecture Design
▼夹层平面图,mezzanine plan© Dubbeldam Architecture Design
▼剖面图,sections© Dubbeldam Architecture Design
BUNKIE ON THE HILL
PROJECT CREDITS & INFORMATION
Location|Muskoka, Ontario, Canada
Size|1,000 s.f. / 93 s.m.
Completion | Fall 2022
Photography| Riley Snelling
General Contractor|HLD Corporation
Structural Engineer| Blackwell Structural Engineers
Design team| Heather Dubbeldam, Scott Sampson, Krystal Kramer
SUSTAINABLE FEATURES
High Performance Insulation; R-value over 40
Triple glazed windows
Low-e coatings on glazing
Airtight building envelope
High Efficiency light fixtures
Low flow plumbing fixtures
FSC-rated wood products
No blasting of rock for foundations
LIST OF SUPPLIERS
EXTERIOR
Exterior Elevations: Fraser Woods Porch ceiling HD in Dark Slate ST colour
Exterior Soffit:Clear Western Red Cedar, Varathane natural oil finish
Roof:Agway Metals, AR25-standing seam metal roof
Wood Decking:Ipe boards
FINISHES
WOOD FLOORING
Unik Parquet Euro Oak, wirebrush finish, engineered hardwood flooring
WALL FINISH
Grade A maple plywood w/ Bona Naturale stain
CEILING FINISH
Clear Western red cedar, clear oiled finish
TILE
Bathroom floors and half walls:Iseo gris, Mettro Source
Bathroom Upper Walls:Progetto Ceramiche bianco matte, Stone Tile
MILLWORK
Muskoka Custom Carpentry
LIGHTING
Kitchen: Lambert & Fils Waldorf wall sconce – Klaus
Bathroom: Harlow 5 wall sconce – Schoolhouse
Bedroom
Pablo, Lana Mini Wall Light – Urban Mode
Modern Fan Company Arbor Flush fan w/LED light – Design Within Reach
Loft: Rich Brilliant Willing – Pastille 1 Wayfind – TPL Lighting
Exterior
Tech Lighting Pitch single wall sconce – Lightform
Kuzco Lighting Casa EW71403 Recessed wall sconce – Dark Tools
SOLID SURFACES
Kitchen Countertop, Backsplash, and Island: Greystone limestone in honed finish
Bathroom Countertop & Integrated sink:Corian Glacier White
Bathroom Shower Curb & Shower Bench:Caesarstone 4004 Raw Concrete
Living Area Fireplace Hearth:Greystone limestone in leathered finish
PLUMBING FIXTURES– all from Taps
Blanco Silgranit Linus sink
Blanco Silgranit Precis sink
Zucchetti Zin693 faucet
Toto Aquia IV toilet
Riobel shower head & controls
APPLIANCES & EQUIPMENT
Kitchen Fridge:Smeg Refrigerator
Kitchen Cooktop:Fisher & Paykel 2-burner Induction Cooktop
Kitchen Range Hood: Fisher & Paykel Range Hood
Kitchen Dishwasher: Fisher & Paykel Dishwasher
Kitchen Oven: Fisher & Paykel Convection Speed Oven
Living Room Fireplace: Jotul F 600 Firelight CB wood stove in blue black enamel
FURNITURE
Kitchen counter stools:Emeco Alfi counter stools – Klaus
Living room sofa:Menu Offset sofa – Klaus
Living room armchair:Crescent Swivel chair – West Elm
Living room coffee tables:Ohm table – DWR
Loft desk chair:Eames Molded Plastic Side Chair – Herman Miller
Loft sofa: Tuck sofa – DWR
Loft armchair:Nora lounge chair – DWR
Loft coffee table: Wade nesting coffee table – Crate and Barrel
Muskoka chairs:Adirondack chair and ottoman – DWR
客服
消息
收藏
下载
最近






























