查看完整案例

收藏

下载
当城市从晨曦中苏醒,车流沿着成都公园大道进入东部新区城市中心,民航科技创新示范区 A2 总部大楼标志性的“纸飞机”形象便映入眼帘,以面向天空的腾飞之姿,塑造着城市核心区的天际线,也彰显着中国民航科技研发的创新力量。
The iconic “paper plane” image of the CAAC A2 headquarters building comes into view when the city awakens from the morning sun and the traffic enters the city center of the Eastern New District along Chengdu Parkway, shaping the skyline of the core area of the city with its soaring attitude towards the sky and highlighting the innovative capability of the research and development of civil aviation science and technology in China.
▼城市核心区天际线,City core skyline © 日野摄影
背景 Background 民航科技创新示范区是中国民航业高新科技研发的顶端平台,承载着几代民航人的科技强国梦想,A2 总部大楼作为示范区最先建成投用的建筑,为民航业和成都市增添了一座重量级的科研平台及城市地标,也为科学家们提供了创新型、人性化、绿色低碳、高品质的工作环境。
The Civil Aviation Technology Innovation Demonstration Zone is the top platform for high-tech research and development in China’s civil aviation industry, carrying the dream of several generations of civil aviation people to become a strong country in science and technology.
The A2 headquarters building, as the first building to be built and put into use in the demonstration zone, has added a heavyweight scientific research platform and urban landmark to the civil aviation industry and Chengdu, and also provided scientists with an innovative, humanized, green, low-carbon, and high-quality working environment.
▼城市主轴视角,City axis perspective ©日野摄影
概念:轻盈的“纸飞机”消解不利条件
Concept: The lightweight “paper airplane” dissolves unfavorable conditions
项目设计的挑战在于:容积率高达 5.0,但塔楼限高 100m;标准化的塔楼里要容纳极其多样复杂的定制化研发空间;同时业主方也希望在高度有限的情况下,尽可能突出民航产业面向天空的翱翔形象。
▼设计概念,concept© 林同棪国际工程咨询(中国)有限公司
Challenges in the design of the project were: the plot ratio was as high as 5.0, but the height of the tower was capped at 100m; the standardized tower had to accommodate extremely varied and complex customized R&D spaces; and the owner also wanted to highlight the image of the civil aviation industry soaring towards the sky as much as possible, despite the height limitation.
▼建筑鸟瞰,Bird’s eye view©日野摄影
设计通过一体化的裙房和塔楼,保障试验平台间的高效联系,大量实验空间也决定了建筑标准层必须方正好用,塔楼平面为匹配实验空间尺寸要求,经过多方案研究比较,最契合功能需求的塔楼平面尺寸为 45m*45m,但这种超过 2000㎡的标准层会让不到 100m 高的塔楼显得笨重矮板,设计似乎陷入功能合理与造型美观的两难取舍。
▼设计生成,concept© 林同棪国际工程咨询(中国)有限公司
Through the integration of the podium and tower, the design guarantees the efficient connection between the test platforms, and a large amount of experimental space also determines that the standard floor must be square and suitable. In order to meet the requirements of laboratory size and match the experimental equipment, the optimal solution is 45m*45m after many rounds of research and comparison, but the standard floor of more than 2,000 m² will make the tower less than 100m high look bulky and dwarfed, and the design seems to be caught in the dilemma of choosing between reasonable function and aesthetic modelling.
▼沿街透视,Street perspective ©日野摄影
设计师在不影响功能平面前提下,创新性地以下虚上实的体量关系,创造悬浮感和反结构性,消解了原本不利的体量感和笨重感,并以举重若轻、悬浮向上的“纸飞机”灵感形象,举起大国的科技重器,塑造让人眼前一亮的标识感和科技美,在超高层环绕的环境当中,依然别具一格;同时也彰显了对中国民航业科技探索历程的深层次内涵表述:“纸飞机”的概念代表着从童年到成熟,人们对天空的不断追求与探索,传达了民航科技创新将“梦想”化为“现实”的精神内核。
Under the premise of not affecting the plane of function, the designer creates a sense of levitation and anti-structural by innovatively using the material language of bottom emptiness and top reality, dissolving the original unfavorable sense of volume and bulkiness. The inspired image of the “paper airplane” which lifts the weight as if it were light and levitates upwards, is a bright spot to the eyes of the people. In the environment surrounded by ultra-high-rise, it is still unique, with a sense of identity and technological aesthetic, and demonstrates the connotation of civil aviation science and innovation exploration: the concept of “paper airplanes” represents people’s continuous pursuit and exploration of the sky from childhood to maturity, and conveys the spiritual core of the civil aviation science and technology innovation to turn “dream” into “reality”. The concept of “paper airplanes” represents people’s continuous pursuit and exploration of the sky from childhood to maturity, conveying the spirit of civil aviation science and technology innovation to turn “dreams” into “reality”.
▼沿街透视近景,Street perspective ©日野摄影
功能:高复合的模组化空间组织
Function: Highly composite modular spatial organization
项目包含四大功能模块,近百个试验空间,每个空间均有着不同的尺寸、层高、设备环境等要求,除此之外还包含科研办公、成果展厅、报告厅、配套餐厅和停车等复合功能。塔楼和裙房标准化的核心筒平面,如何匹配近百个不同设备尺寸和环境要求的试验室,是巨大挑战。
The project consists of four functional modules and nearly 100 test spaces, each with different dimensions, floor heights, equipment environment and other requirements, in addition to scientific research offices, results exhibition halls, lecture halls, supporting restaurants and parking and other composite functions. It is a great challenge to match the standardized core plane of the tower and podium with nearly 100 test rooms of different equipment sizes and environmental requirements.
▼天台视角,Rooftop view©日野摄影
设计通过数智化方式,结合荷载、层高、光照等因素对实验空间进行分类整合,以模数化模组化方式集约设计,裙房容纳 6m 层高的实验空间,塔楼容纳 4m 层高的实验和办公空间,局部挑空满足高大空间需求,高效便捷。实验室间的组合也强调相互间的能耗回收利用,同时功能中穿插共享交流、空中庭院、阳台等共享空间,提供了更有舒适性和创造力的科研场所,同时也为未来空间的可变性提供新的可能性。
The design integrates the classification of experimental spaces by combining loads, floor heights, light, and other factors through digital intelligence, and is designed in a modular and grouped way. The podium accommodates 6m high experimental spaces, and the tower accommodates 4m high experimental and office spaces, with local openings to meet the demand for tall spaces, which is highly efficient and convenient. The combination of laboratories also emphasizes the recycling of mutual energy consumption, while the functions are interspersed with shared spaces such as shared interaction, sky courtyards, and balconies, which provide a more comfortable and creative place for scientific research, and at the same time offer new possibilities for future spatial variability.
▼建筑近景,Close view©日野摄影
空间:高密度下的立体公共空间创造
Space: Creating three-dimensional public spaces under high density
功能需求叠加后,项目建筑密度高达 60%,留给景观和公共空间的场地非常局限,因此设计强调在垂直方向进行公共空间的塑造,通过立体化的用地策略创造多元的交流和共创空间。
After the superposition of functional demands, the building density is as high as 60%, leaving very limited sites for landscaping and public space, so the design emphasizes the shaping of public space in the vertical direction, and the creation of diversified communication and co-creative spaces through a three-dimensional land use strategy.
▼公园透视,Park perspective ©日野摄影
▼屋顶活动平台,Rooftop activity platform ©日野摄影
裙房首层近 40%的面积为底层架空,引导自然通风形成舒适的微气候环境,连接凹形中心广场及下沉式庭院,成为面向城市公园的活力聚场,也消融了科研园区与城市街道的界面。裙房面向公园逐层退台,构建了立体丰富的屋顶花园,也给塔楼留出更加无遮挡的视野。约 9000㎡的裙房屋顶花园通过绿植和格栅消隐了实验楼宇大量的室外设备,同时融合了多种运动场地、活动舞台、休闲花园,也面向公众开放,激发社区参与,构建科研共同体。
Nearly 40% of the first floor of the podium is elevated on the ground floor, guiding natural ventilation to form a comfortable microclimate environment, connecting the concave central plaza and sunken courtyard, becoming a vibrant gathering place facing the city park, and also dissolving the interface between the research park and the city street. The podium faces the park setback level by level, constructing a three-dimensional rich roof garden, also leaving a more unobstructed view to the tower; about 9000 square meters of the podium roof garden hides a large number of outdoor equipment in the experimental building through greenery and grills, and at the same time integrates a variety of sports venues, activity stages, leisure gardens, and is also open to the public to stimulate community participation and build a scientific research community.
▼裙房透视,Skirt room perspective ©日野摄影
▼中心庭院,Central courtyard©日野摄影
表情:材料语言与空间界面的建构
Expression: The Construction of Material Language and Spatial Interface
简洁轻盈、典雅方正的建筑造型和彰显科技人文属性的材料语言相得益彰。塔楼立面白色蜂窝铝板与玻璃条窗的韵律组合,形成虚实渐变的“纸飞机”的形象,幕墙的虚与实,也对应着室内的办公和科研空间,匹配功能需求。蜂窝铝板的排版规律对川东传统民居山墙面的木格构,进行了抽象提取和演绎,采用层间错动穿插木纹色表达,体现了地域化人文化建构特征,也富有韵律感和科技感。
Simple, light, elegant and square architectural form and material language showing the attributes of science and technology. The rhythmic combination of the white honeycomb aluminum panels and the glass windows on the façade of the tower creates the image of “paper planes” with gradual change of reality, and the reality of the curtain wall corresponds to the indoor office and scientific research space, matching the functional requirements. The layout of the honeycomb aluminum panels is abstractly extracted and interpreted from the wood latticework of the mountain walls of the traditional houses in eastern Sichuan, and the staggered interlacing of the wood grain colors between the layers is used to express the characteristics of the regional human culture construction, and is also rich in a sense of rhythm and science and technology.
▼共享空间,Shared space ©日野摄影
▼立面细节,Facade detials©日野摄影
空间中轴上的中心庭院是出入口组织和公共空间的核心,通过大面穿孔板幕墙形成轴线上的空间背景,也形成贯通的中庭拔风效应,过渡季节无需空调可自然通风。白色陶板、冲孔铝板、玻璃幕墙提供了从实到虚的材料语言,提供了丰富的光影变化和柔软的庭院空间表情。
The central courtyard on the spatial axis is the core of the entrance organization and public space, forming the spatial background on the axis through the large perforated panel curtain wall, and also forming the wind pulling effect of the through atrium, which can be naturally ventilated without air-conditioning in the transitional season. White ceramic panels, perforated aluminum panels and glass curtain walls provide a material language from solid to void, providing rich light and shadow changes and soft expressions of the courtyard space.
▼入口大厅,Entrance hall©日野摄影
低碳:绿色节能、低碳低熵的实验室
Low Carbon: A Laboratory of Green Energy Conservation, Low Carbon
建筑底层架空引导自然通风、屋顶花园和下沉庭院雨水收集、塔楼立面结合光照需求虚实变化,幕墙构造设置立体遮阳,空中庭院遮阳降碳,一系列被动式生态技术,引领着也对应着实验室空间和办公空间对采光、日照、通风的不同程度需求,空间功能与立面形态相互匹配。
▼绿色设计,analysis© 林同棪国际工程咨询(中国)有限公司
A series of passive eco-technologies, such as elevated building floors to guide natural ventilation, roof gardens and sunken courtyards for rainwater harvesting, tower façades that combine light with real and virtual changes, curtain wall structures that set up three-dimensional shading, and sky courtyards that shade the sun and reduce carbon emissions, are leading and responding to the varying degrees of demand for light, sunlight, and ventilation in the laboratory and office spaces, and the spatial functions are matched to the façade morphology.
▼底层架空,The ground floor is elevated ©日野摄影
相较传统科研实验建筑对资源和能源的高消耗,引领绿色低碳,节能低熵的国际先进实验室。结合低位热源热泵,中水再利用,热回收、能耗监测和优化等前沿主动式生态技术,IDC 数据中心采用第一个民航业芯片级液冷机房,比传统数据中心降低能耗 50%以上。项目不仅达到绿建三星标准,也成为从设计到运营的全流程低碳的实验建筑典范。
Compared with the high consumption of resources and energy in traditional scientific research laboratory buildings, it leads the way in green, low-carbon, energy-saving and low-entropy international advanced laboratories. Combined with cutting-edge active eco-technologies such as low-level heat source heat pumps, water reuse, heat recovery, energy consumption monitoring and optimization, the IDC data center adopts the first chip-level liquid-cooled server room in the civil aviation industry, which reduces energy consumption by more than 50% compared with traditional data centers. The project not only meets the three-star green building standard, but also becomes a model of experimental building with low carbon in the whole process from design to operation.
▼架空层吊顶,Elevated ceiling ©日野摄影
面对一个高需求、高功能性的科研实验总部,设计在解决复杂的功能需求的同时,也强化创新科研、低耗实验、绿色办公、公共交流的理念,畅导社会交往及自然人文对话,激发创造活力;也希望通过体现航空特色的设计语言彰显科技自信,开启对中国民航未来科创发展场景的美好展望。
While addressing the complex functional requirements of a high-demand, high-functional scientific research and experiment headquarters, the design also reinforces the concepts of innovative scientific research, low-consumption experiments, green office and public communication, and encourages social interaction and dialogue between nature and humanities to stimulate creativity. It also hopes to demonstrate scientific and technological self-confidence through the design language of the aviation characteristics, and opens up a bright outlook of the future scenarios of the development of science and innovation in the Civil Aviation Administration of China.
▼落日,Sunset©日野摄影
▼夜览,Night view©日野摄影
▼总图,master plan© 林同棪国际工程咨询(中国)有限公司
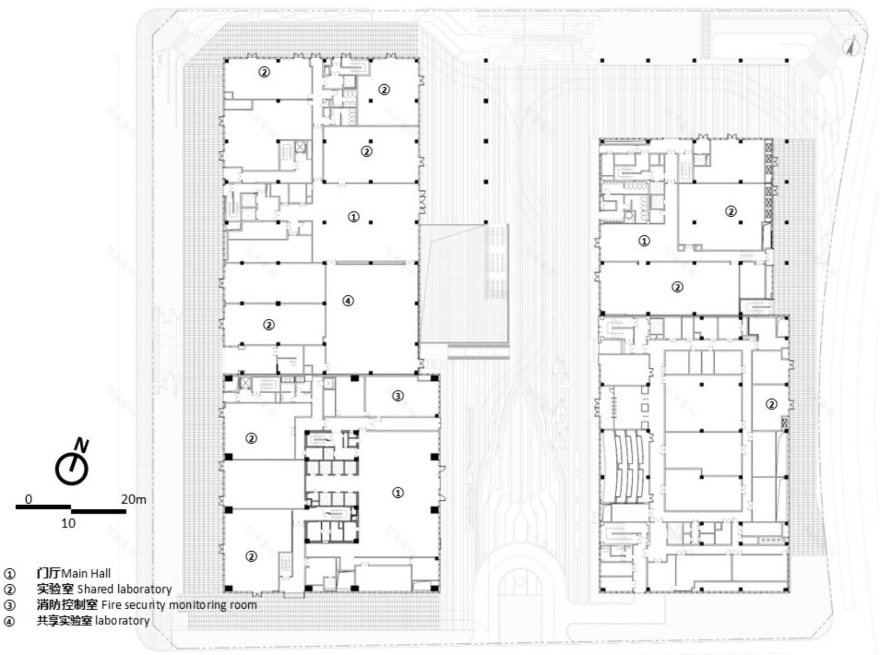
▼一层平面图,ground floor plan© 林同棪国际工程咨询(中国)有限公司
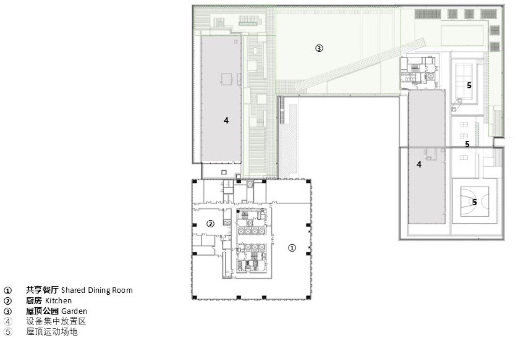
▼五层平面图,5F plan© 林同棪国际工程咨询(中国)有限公司
▼立面图,elevation© 林同棪国际工程咨询(中国)有限公司
▼幕墙构造,Curtain wall structure © 林同棪国际工程咨询(中国)有限公司
项目名称:民航科技创新示范区 A2 总部
项目类型:科研及办公总部
设计方:林同棪国际工程咨询(中国)有限公司
项目设计:2019 年 9 月-2020 年 11 月
完成年份:2023 年 11 月
设计主创:黄聪,张震,Rashwan Khalil
项目地址:成都市东部新区
建筑面积:113257㎡
摄影版权:日野摄影,张震
合作方:中国建筑西南设计研究院有限公司(施工图设计)
客户:中国民用航空总局第二研究所
材料:玻璃幕墙、蜂窝铝板、陶板
客服
消息
收藏
下载
最近




































