查看完整案例

收藏

下载

翻译
ESP
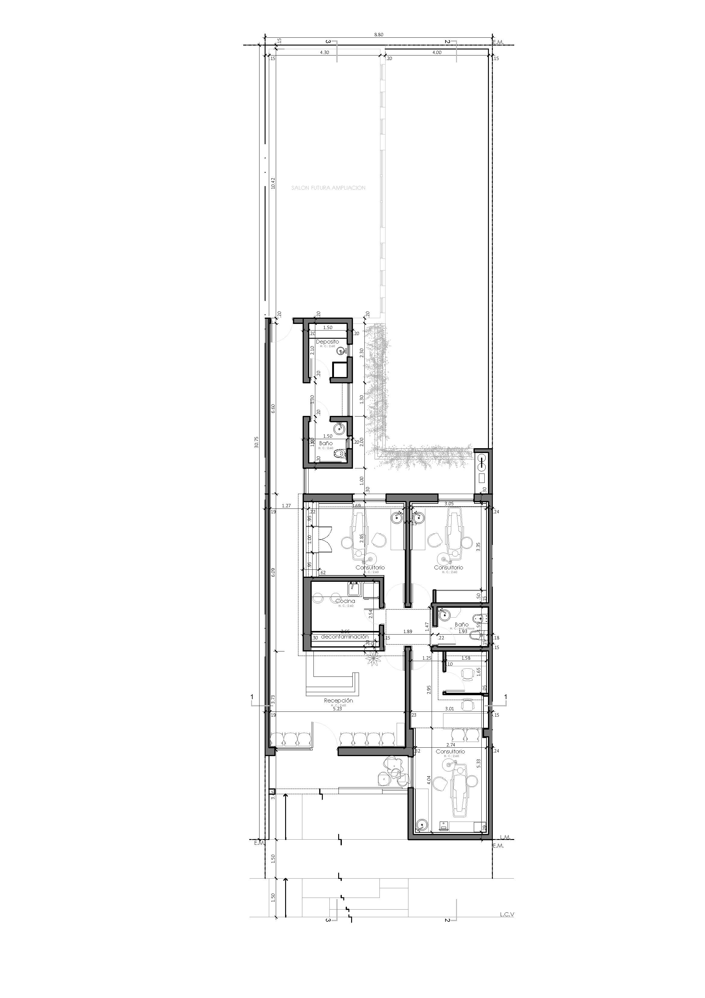
Grupo Giaveno es una tradicional familia dentistas en la cuidad, cubren las distin- tas necesidades de los clientes con diferentes especialidades, desde la pediatría hasta tratamientos mas complejos que incluye maquinaria automatizada. Nos encargan la construcción de sus nuevas oficinas, con tres consultorios y la capacidad de aprovechar el fondo del terreno con una ampliación.
Se parte con la base de una vivienda con una tipología conocida en el país con carácter social denominada popularmente como tipo Evita. Se encuentran tres habitaciones pequeñas, baño, cocina, living y un ingreso lateral característico que une el patio con el ingreso. Decidimos agrandar las habitaciones donde serán ubicados los consultorios según los requerimientos espaciales y técnicos de la especificad del uso, se achica la cocina creando una sala de esterilización, kitchen y se toma el espacio de cochera. El living se modifica para crear una recepción acorde a la situación, incluyendo el espacio lateral que agranda el mismo y contiene los ficheros que separan la sala de espera con los consultorios. En la parte posterior se deja dispuesto un pasillo que conduce a la futura ampliación, donde por el momento existe un baño para discapacitados y un deposito. El ingreso se jerarquiza con un muro escultural, escondiendo los característicos techos de la tipología, diseñado parametricamente para encontrar la mejor relación entre los módulos que se generan aleatoriamente.
ENG
Grupo Giaveno is a traditional family of dentists in the city, covering the various needs of their clients with different specialties, from pediatrics to more complex treatments that include automated machinery. They have commissioned us to build their new offices, with three consulting rooms and the capacity to take advantage of the back of the property with an expansion.
The project starts with a house of a known typology in the country with a social character commonly known as "Evita type". There are three small bedrooms, a bathroom, a kitchen, a living room, and a characteristic side entrance that connects the jarden with the entrance.
We decided to enlarge the bedrooms where the offices will be located according to the spatial and technical requirements of the specific use. We reduced the size of the kitchen by creating a sterilization room and a kitchen, and we took the garage space. The living room was modified to create a suitable reception area, including the lateral space that expands it and contains the cabinets that separate the waiting room from the offices. In the back, a hallway was left for future expansion, where there is currently a bathroom for disabled people and a storage room.
The entrance is enhanced with a sculptural wall, hiding the characteristic roofs of the typology, designed parametrically to find the best relationship between the modules that are randomly generated.
客服
消息
收藏
下载
最近


























