查看完整案例

收藏

下载
Goudvisch Family 是一个遍布阿姆斯特丹的酒吧品牌,以融合怀旧魅力和现代风格而闻名。阿姆斯特丹东部现在迎来了这个家庭的最新成员——LEO 酒吧,它坐落在熙熙攘攘的 Beukenplein 的一角。Studio Modijefsky 的设计理念将丰富而传统的材料与当地创新风格融合在一起,将传统的“bruin cafe”的本质与当代表达融合在一起。
The Goudvisch Family is a group of bars spread across Amsterdam that have become renowned for blending nostalgic charm with modern flair. East Amsterdam now welcomes the latest addition to the family: LEO, who nestles on a corner of the bustling Beukenplein. Studio Modijefsky’s design concept blends the rich material heritage of the past with the innovation of today to imbue the essence of a traditional ‘bruin café’ with contemporary twists.
▼酒吧外观,exterior view of the bar©Maarten Willemstein
与周围环境的新对话
A new dialogue with its surroundings
室内设计的灵感来自于建筑结构中复杂的倒角细节,呈现出精致的质地和柔和的薰衣草、灰色和紫红色调。胡桃色的木制墙面与橡木家具相融合,营造出精致而温馨的氛围。
The interior draws inspiration from the intricate chamfered details in the building’s architecture. It features outspoken textures and hues of soft lavender, grey and plum. Walnut coloured wood- clad walls blend with oak furniture objects to create a sophisticated but welcoming atmosphere.
▼室内空间概览,space overview©Maarten Willemstein
Pojagi 紫红色窗帘
Pojagi plum
Studio Modijefsky 不断寻求创新的工艺和技术。在设计 LEO 时,设计结合了韩国传统纺织艺术形式——Pojagi。Pojagi 紫红色窗帘是 LEO 美学的核心,其引人注目的拼接纹理引入了独特的风格和优雅。紫红色编织在整个空间中,将窗帘、皮革内饰和大理石结合在一起,为设计色调增添了凝聚力和深度。
Studio Modijefsky consistently seeks out innovative crafts and techniques. In designing LEO, they integrated Pojagi, a traditional Korean textile art form. The Pojagi plum curtains are central to LEO’s aesthetic, and their eye-catching patchwork texture introduces a distinct flair and elegance. Plum is woven throughout the space, uniting the curtains, leather upholstery, and marble to lend cohesion and depth to the design palette.
▼设计结合了韩国传统纺织艺术形式——Pojagi,
LEO integrated Pojagi, a traditional Korean textile art form©Maarten Willemstein
▼一层座位区,ground floor seating area©Maarten Willemstein
▼细部,details©Maarten Willemstein
大理石的应用
Marble mastery
吧台中纹理丰富的酒红色和白色大理石令人印象深刻,此外,设计还强调了复古的黄铜、深色橡木,以及黑白水磨石的吧台基座。吧台坐落在抬升的地台上,作为 LEO 的焦点,通过充满感情的色调与丰富的手工细节,吸引了人们的注意力,邀请着客人们开启一场感官之旅。吧台背景由坚固的金属结构和木制背板组成,背景中集成了灯箱和标志性的 Goudvisch 霓虹灯元素,为传统环境增添了动感。一块古老的黄铜板上展示着生啤酒菜单,而酒品则展示在纹理丰富的玻璃框架橱柜里,并反射在酒吧后面的镜子中。
The impressive bar is formed of highly textured burgundy and white marble and accented with aged brass, dark oak wood, with a base of black and white terrazzo. It stands on a raised floor and acts as LEO’s focal point, commanding attention and inviting guests on a sensory journey through a soulful palette enriched with handmade details. The back bar is framed by a sturdy metal structure with a wooden backdrop which features integrated light boxes and a signature Goudvisch neon element that adds a dynamic touch to the traditional setting. An aged brass board displays the draft beer menu, while liquors are showcased in textured glass framed cabinets reflected in the back bar mirrors.
▼吧台,bar counter©Maarten Willemstein
▼木材与大理石、水磨石的结合
combination of wood with marble and terrazzo©Maarten Willemstein
▼吧台,bar counter©Maarten Willemstein
▼细部,details©Maarten Willemstein
精致的工艺 Curated craftsmanship
当客人探索酒吧时,他们会遇到精心策划的细节,获得独特的体验。从复杂的木制细节到定制的照明灯具,每个元素都经过精心设计,在拥抱当代风格的同时唤起怀旧之情。值得一提的是,Goudvisch 的 logo 彰显出 LEO 作为 Goudvisch 家族的一员,交织在空间内部,巧妙地镶嵌在木质灯具的大理石装饰上,强调出设计对工艺的关注。空间由切割玻璃制成的光球进一步照亮,将传统工艺活灵活现地呈现在空间中。
As guests explore the venue, they encounter meticulously curated details that elevate the experience. From the intricate wooden details to the bespoke lighting fixtures, every element is thoughtfully designed to evoke a sense of nostalgia while embracing contemporary flair. A standout feature is the Goudvisch logo, which as always in the Goudvisch family, is interwoven in the interior. This time it is artfully inlaid in marble in the wooden light ornaments, emphasizing the commitment to craftsmanship. The space is further illuminated by light spheres made from etched and cut glass, brought to life using traditional techniques.
▼镜面墙,mirror wall©Maarten Willemstein
▼座位区,seating area©Maarten Willemstein
▼木制墙面,wooden wall finishing©Maarten Willemstein
夹层空间 Mezzanine moments
在夹层,客人们将进入一处私密的静修区,复古风格的灯具与精细切割的玻璃为空间赋予了独特的氛围,同时镜面墙也在座位区投射出有趣的光影。这里充满了定制的木制家具和一系列精选的艺术品,创造出迷人且亲近的氛围,让客人们流连忘返。从夹层,人们可以俯瞰悬挂在咖啡区域的大理石半球形灯具。
At the mezzanine level, guests enter an intimate retreat highlighted by vintage-style lamps with finely cut glass that cast playful light effects across the mirrored wall and bench below. This intimate setting, filled with custom wooden furnishings and a select range of artwork, creates a captivating ambiance that invites guests to linger. From here, they can overlook marbled spheres hanging above the café floor buzzing with activity.
▼夹层,mezzanine©Maarten Willemstein
▼由夹层俯瞰一层,viewing the ground floor from the mezzanine©Maarten Willemstein
▼灯具,lighting feature©Maarten Willemstein
户外“避难所”
Outdoor sanctuary
迷人的户外露台融合了室内和室外元素。遮阳伞、环境照明和木制框架玻璃风挡相结合,创造出宁静的环境,客人可以在这里放松并与周围的人互动。
A charming terrace blends indoor and outdoor elements. Parasols, ambient lighting, and wooden windscreens combine to create a serene environment where guests can unwind and connect with the neighbourhood.
▼户外露台区,outdoor terrace area©Maarten Willemstein
▼品牌设计,branding© Studio Modijefsky
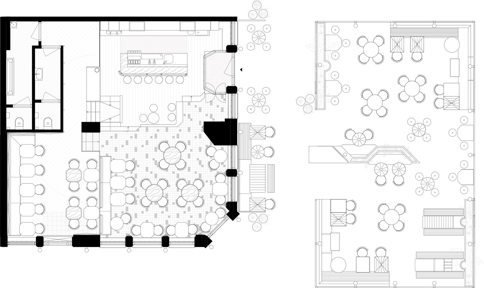
▼平面图,plan© Studio Modijefsky
Project: Leo Goudvisch
Location: Beukenplein, Amsterdam, The Netherlands
Program: Cafe, Bar & Restaurant
Assignment: Interior design, Identity design & Branding
Status: Realized June 2024
Size: 140m2 interior & 115m2 exterior
Client: Joost Lebesque & 3WO
Design: Studio Modijefsky; Esther Stam, Natalia Nikolopoulou, Pauline Renlef, Marit van der Gulik, Ivana Stella, Christel Willers
Photography: Maarten Willemstein
客服
消息
收藏
下载
最近



























