查看完整案例


收藏

下载
做一条鱼吧,简单又快乐!
一个自由的家,是我梦想的追求。
■ 项目地址:光谷·湾郡
■ 设计风格:中式田园
■ 设计面积:360 ㎡
■ 设计单位:支点环境艺术设计有限公司
■ 软装搭配:艺境·陈设软装
■ 施工单位:支点施工中心
■ 摄影机构:梵 镜 空 间
没有永远追逐不到的时尚与流行,没有永远都会被超越的各类技巧,生活就好像一个又一个舞台,你方唱罢我登场;又好像一个又一个池塘,你在你的塘里潇洒,我在我的塘里快活。
在霸道总裁还没有包下这片鱼塘之前,我们还是先开始这个设计的小故事吧。
这是一个有文化,有故事,有阅历的三有家庭,我是一个有思想,有追求,有性格的三有青年,于是我们一拍即合,相定合约!
所有的创造都是充满期待与坎坷的,摒弃了传统中式风格固有的雕花与线条,客餐厅的布局也明显与众不同,因为别墅外有一片漂亮的鱼塘。
所以我们决定:
化身为鱼,融入其中。
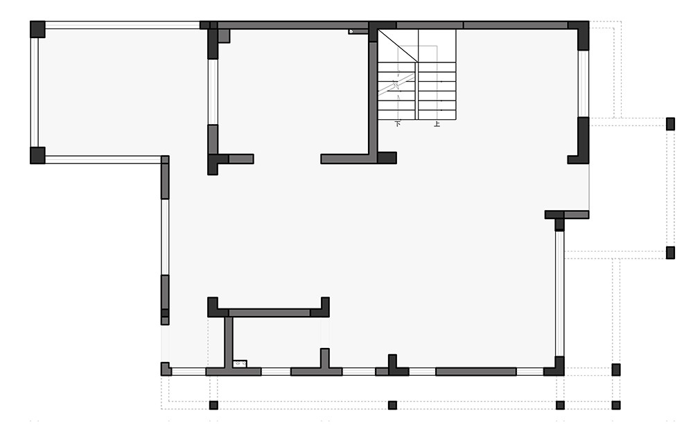
▲ Survey Chart / 测量图(一层)
▲ Floor Plan / 平面布局(一层)
为了让窗外的景致尽收眼底,我们调整了客厅沙发的朝向,同时将客厅和餐厅之间用了弧形墙面隔开,让空间看起来更简单干净。
前后错位的弧形隔断墙在内部形成了一种隔而不断,连而不透的特殊布局,一种流动感也随之产生。又如八卦里阴阳鱼的形态,动静随心。
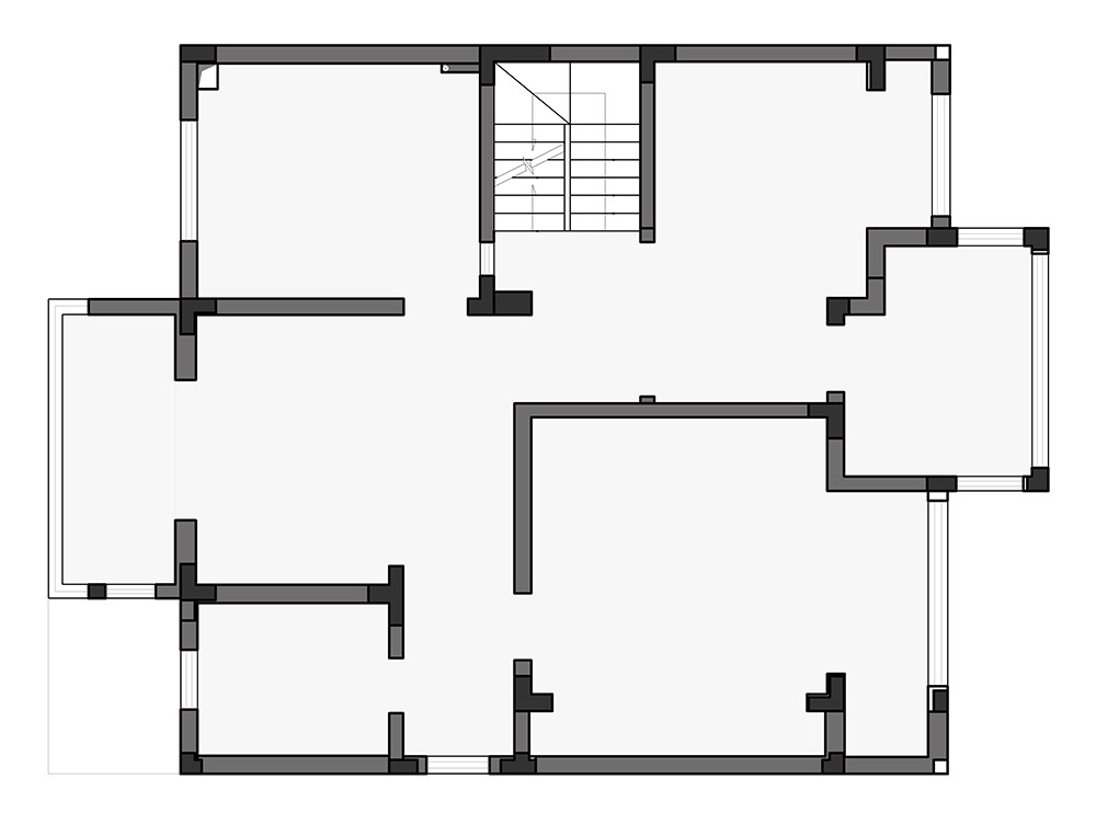
▲ Survey Chart / 测量图(二三层)
▲ Floor Plan / 平面布局(二三层)
分层布局,保持每层空间的完整性和私密性。拥有独立的书房,起居室,卧室和衣帽间,预留的小房间可以和子孙共享天伦之乐。
卵石镶嵌的墙面,搭配这个一线天光,有没有种悬空飞舞的独特感受?
这个貌似儿童记忆中的外婆家小巷子,有没有一探究竟的欲望?
墙面这副画相当应景,当然也是有故事的呀。
折一枝新竹,砍一棵老柳,捡一块烂木,放在窗前,就是一种闲适。
墙上有鱼,顶上有荷,屋外有塘。
橘色的砖墙好似熊熊的火焰,吓退了一群悠闲的鱼儿。
年年有鱼还有余,手工编织的竹椅,充满了旧时的回忆。
灰色的墙砖好似翻涌的波浪,仿佛可以为炉火带来一丝清凉。
这个可是千年大灵芝啊,有桌盘那么大。
原始状态的美国红松,让房间充满了浓郁的香气,让人神清气爽。
客服
消息
收藏
下载
最近
































