查看完整案例

收藏

下载

翻译
CASA ALANA
Palestine, Texas, EE. UU.
2021
734.04 m2
Diseño: Inside Plus S.A.S.Imágenes y Planimetría: Paula Erazo y Matias Herrera.
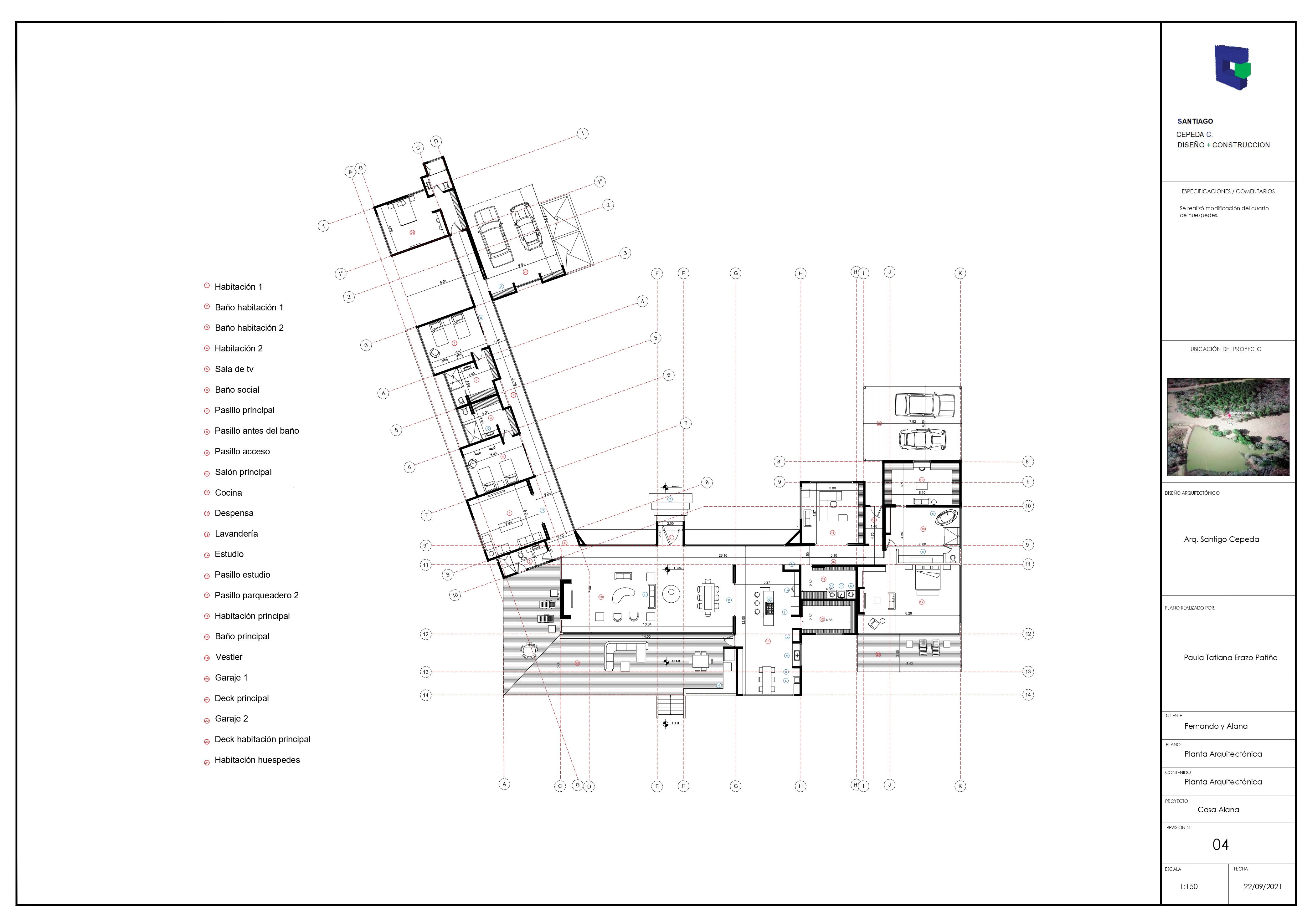
Inmerso en la ecorregión de bosque de pinos de la ciudad de Palestine, Texas se ideó Casa Alana, una vivienda pensada para disfrutar la pacífica y armoniosa edad de oro de una pareja de casados, Fernando y Alana. Con el deseo de mantener con vida los pinos circundantes, y enfocar el espacio social de la casa hacia el lago, situado a unos pocos metros, se plantea la casa como una "L" el la que uno de los lados se inclina sutilmente para dirigir la mirada también al lago.
La zona social siguiendo valiosos ejemplos del siglo XX como la Casa Barragán o la Casa Rafael Obregón divide dos zonas privadas escenciales, la habitación matrimonial y las habitaciones de huespedes para los hijos, con el fin de conformar un solo núcleo con la barra inferior para dar una sensación acogedora y una sola área útil en el momento de que los hijos no se encuentren en la casa. A su vez, toda la casa se encuentra en un mismo nivel, pensando en la facilidad de desplazamiento cuando al pasar de los años se dificulte el caminar por la llegada de la vejez.
"La casa, el domicilio. Es el único bastión frente al horror de la nada, la noche y los oscuros orígenes; se encerra entre sus muros todo lo que la humanidad ha ido acumulando pacientemente por los siglos de los siglos."
Emmanuel Kant
客服
消息
收藏
下载
最近









