查看完整案例

收藏

下载

翻译
SW-interior
Please click here to see its architectural photos
Implemented interior design project of a single-family residence, Belarus
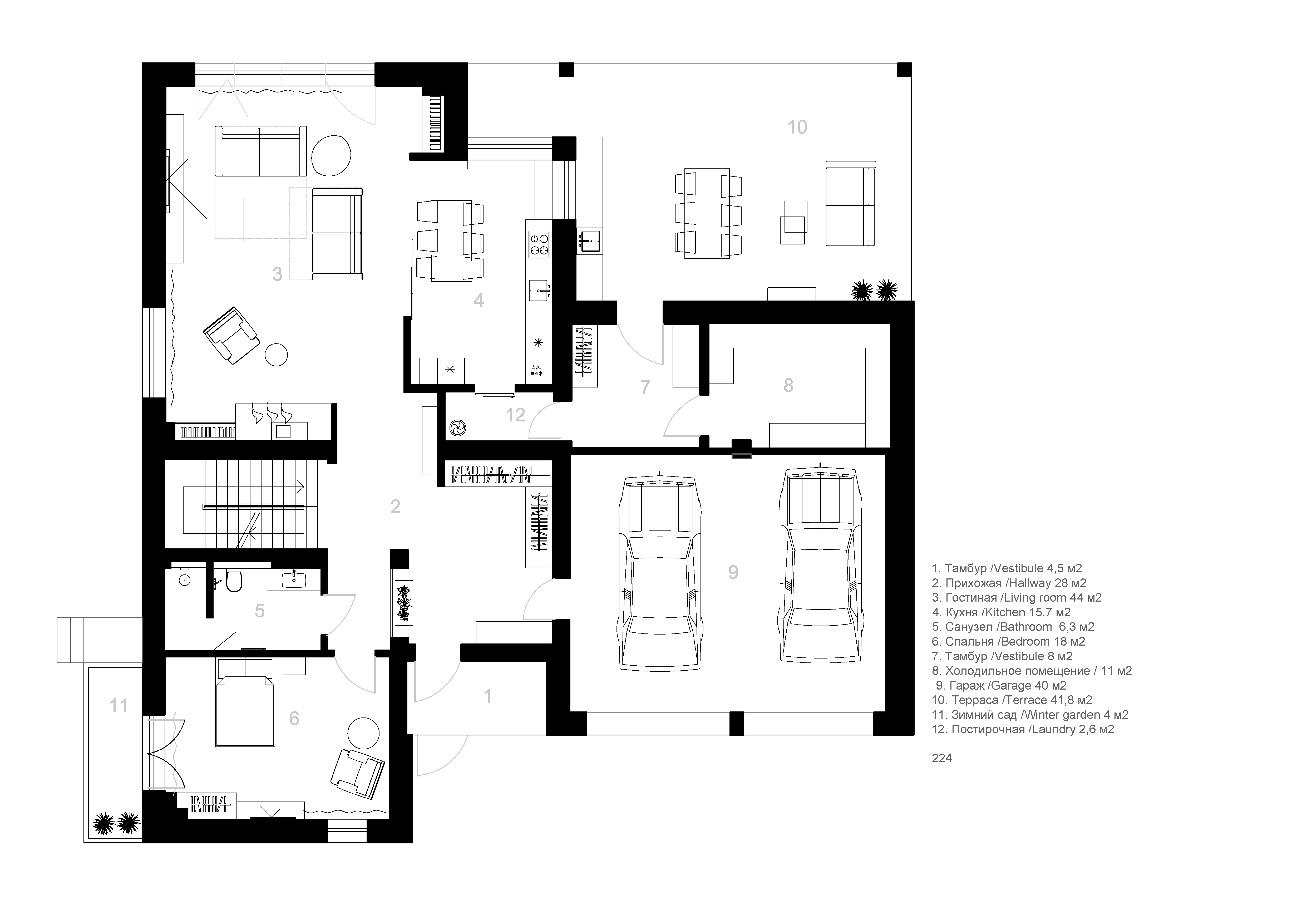
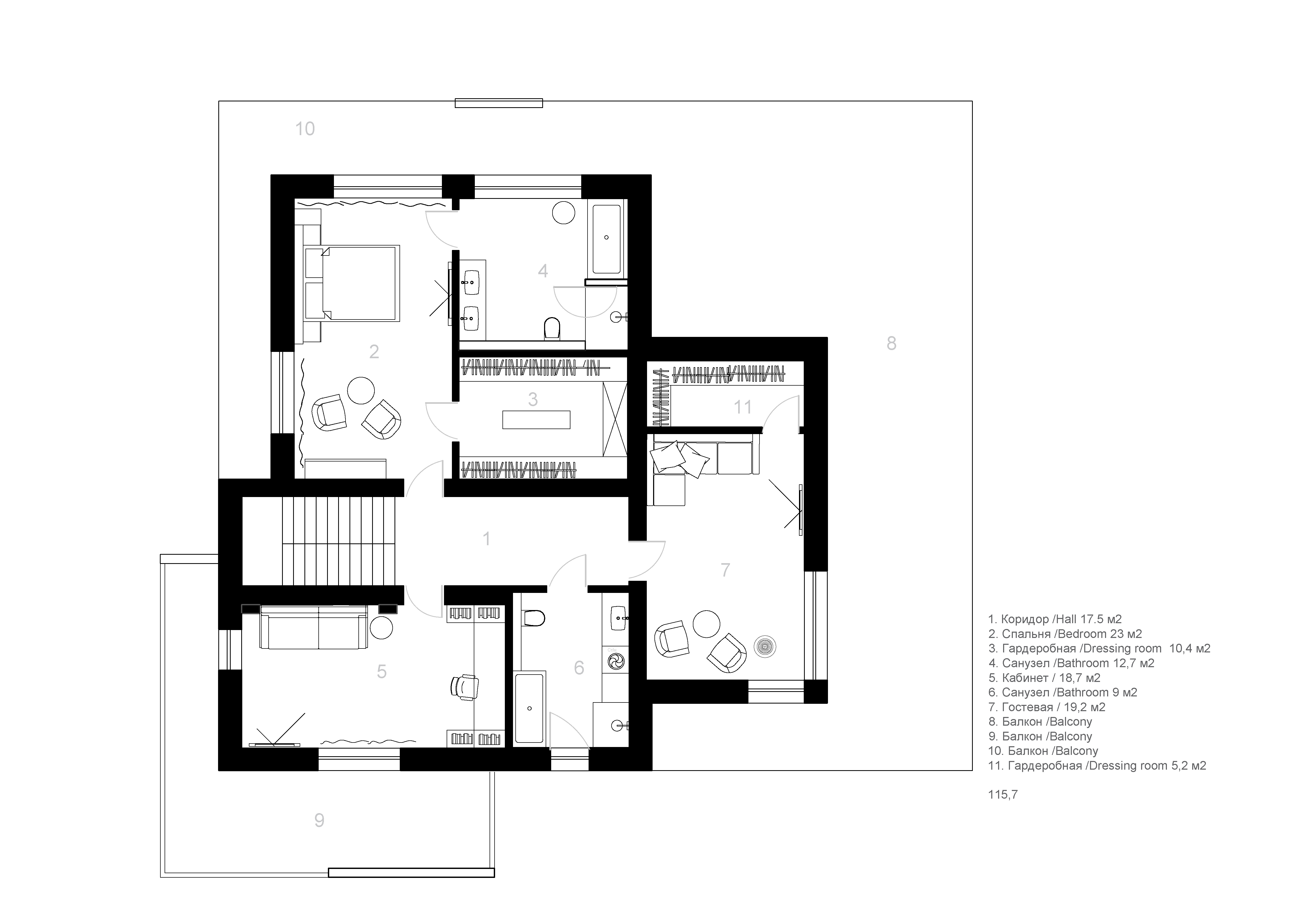
The house consists of 3 floors: a basement with technical rooms and a spa area, as well as 2 residential floors including a living room, kitchen, bedrooms, study and bathrooms. The clients, a married couple, like comfort and usability. They like modern uncluttered interiors, natural materials, colors and textures, and modern technology. Therefore they asked us to design a "smart home" system that would manage the functionality and be hidden. We developed a common color scheme in the interior and used the same materials in different rooms to create one atmosphere and style. The key combination of this project is natural veneer and light stone. They are complemented by the accent color of the sea wave, that is the client's favorite color. All shades and textures interact with each other on the basic of white color, as the main task was to keep free space in the interior.
____________________________________________________________________________________
Type: Private house / Area: 500 sq.m / Year: 2021 / Location: Minsk region, Belarus
Design: Alena Shkel, Maria Markovtsova
Photo: Sergey Pilipovich
客服
消息
收藏
下载
最近
































