查看完整案例


收藏

下载
“冗繁削尽留清瘦,画到生时是熟时。”——郑燮
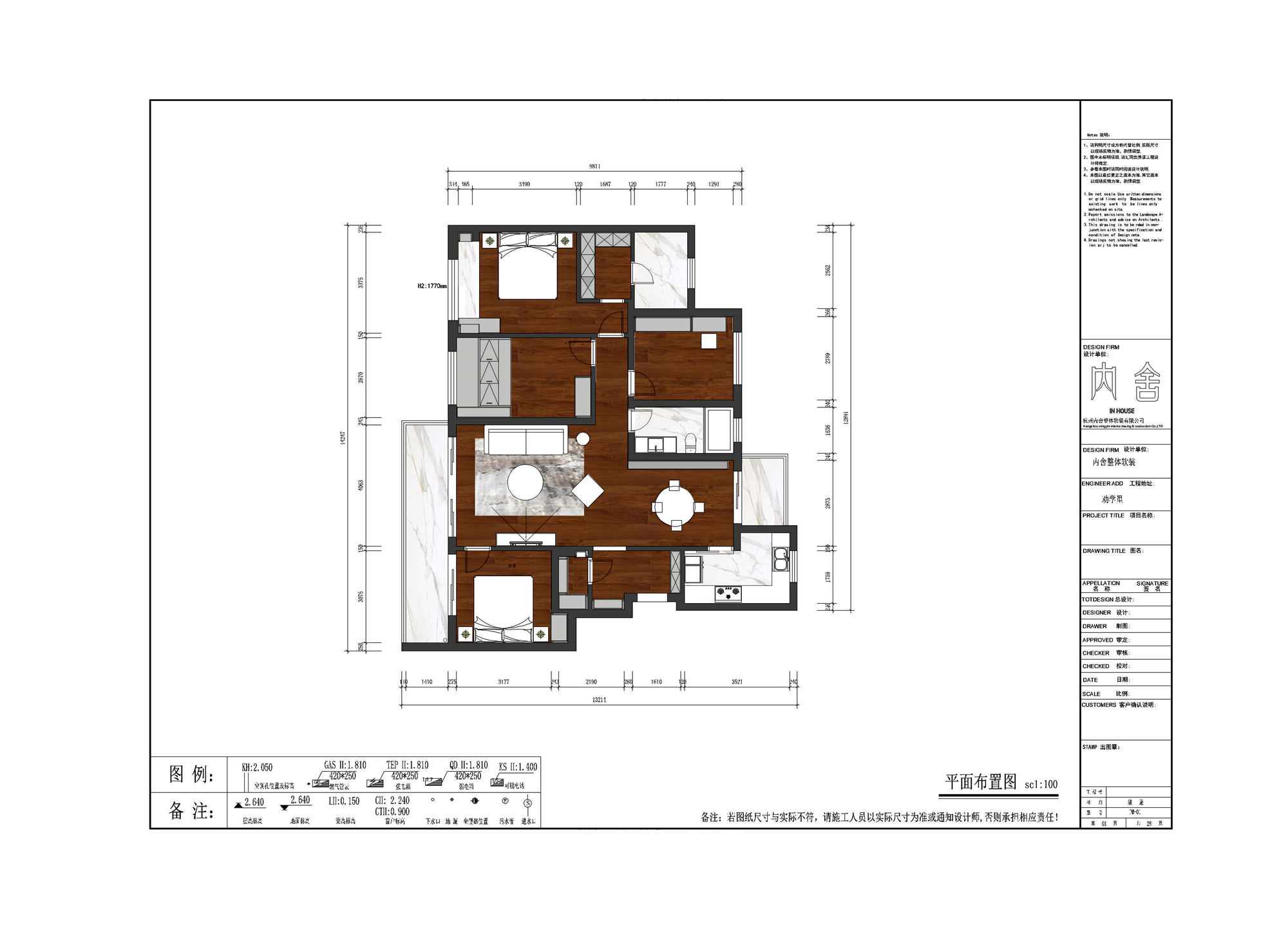
△平面设计图 设计师说:这是一次很愉快的合作过程,几个月相处下来发现屋主非常包容,给了我比较大的发挥空间。北欧风一直都受年轻人的喜爱,屋主夫妇比较能接受新鲜事物,最后选择了北欧风还是蛮惊喜的。结合屋主的需求,我将自然的元素融入空间,以低明度的灰色系作为空间基调,奠定了空间沉稳质朴的氛围。把“轻生活”的生活理念贯彻在设计中,以简约的现代设计诠释空间的诗意浪漫。
客餐厅
客厅以灰色系墙纸为整体风格基调,搭配碗形胡桃木茶几和布艺沙发,使空间素雅而轻盈。木质墙壁挂饰辅以点缀,加强视觉效果;造型优雅的树枝灯以其优雅的姿态,提升了空间艺术感。
餐厅延伸了客厅的色系,窗帘和客厅相呼应,几何线条造型的吊灯成为空间亮点,体现了屋主的高级品味。餐厅应屋主要求,做了整面餐边柜,大大的增加了整体空间的储物功能。
主卧
我于3/7蓝白墙纸的划分处加上金属质感的画框,以后现代风诠释空间的艺术氛围,成为空间的视觉焦点。木质和布艺、金属的搭配,自然元素的融入使空间更具有生活的气息,温馨柔和又不失精致前卫。
女儿房
以粉色系渐变色相互堆叠营造出层次感,采用不同材质的配件搭配提升视觉辨识度,使空间浪漫又不失童真。
次卧
次卧以简洁大方为主,空间背景采用米褐色墙纸营造安静的氛围,留给偶尔会过来居住的老人。
书房
黑白色调的空间于色彩上更为高级,加入了时尚别致的帽檐灯进行点缀,增强了空间的趣味性和摩登感,不会过于严肃。
【作品名称】:冬都春草色 【工程地址】:万科·劝学里 【设计风格】:现代北欧 【户型结构】:住宅 【常住人员】:一家三口 【房屋面积】:139m2 【软装设计】:内舍设计·申屠翰钰 【软装造价】:14W 【软装家具】:成品家具、定制家具、灯具、窗帘、墙布饰品挂画等
客服
消息
收藏
下载
最近













