查看完整案例

收藏

下载

翻译
SECRET BOX apartment
Type: ApartmentsLocation: Moscow, Russia, Rodnikovaya st.
Year: 2023
Design by: Anna Trofimova, Viktoriya Adamovich
IN PROGRESS
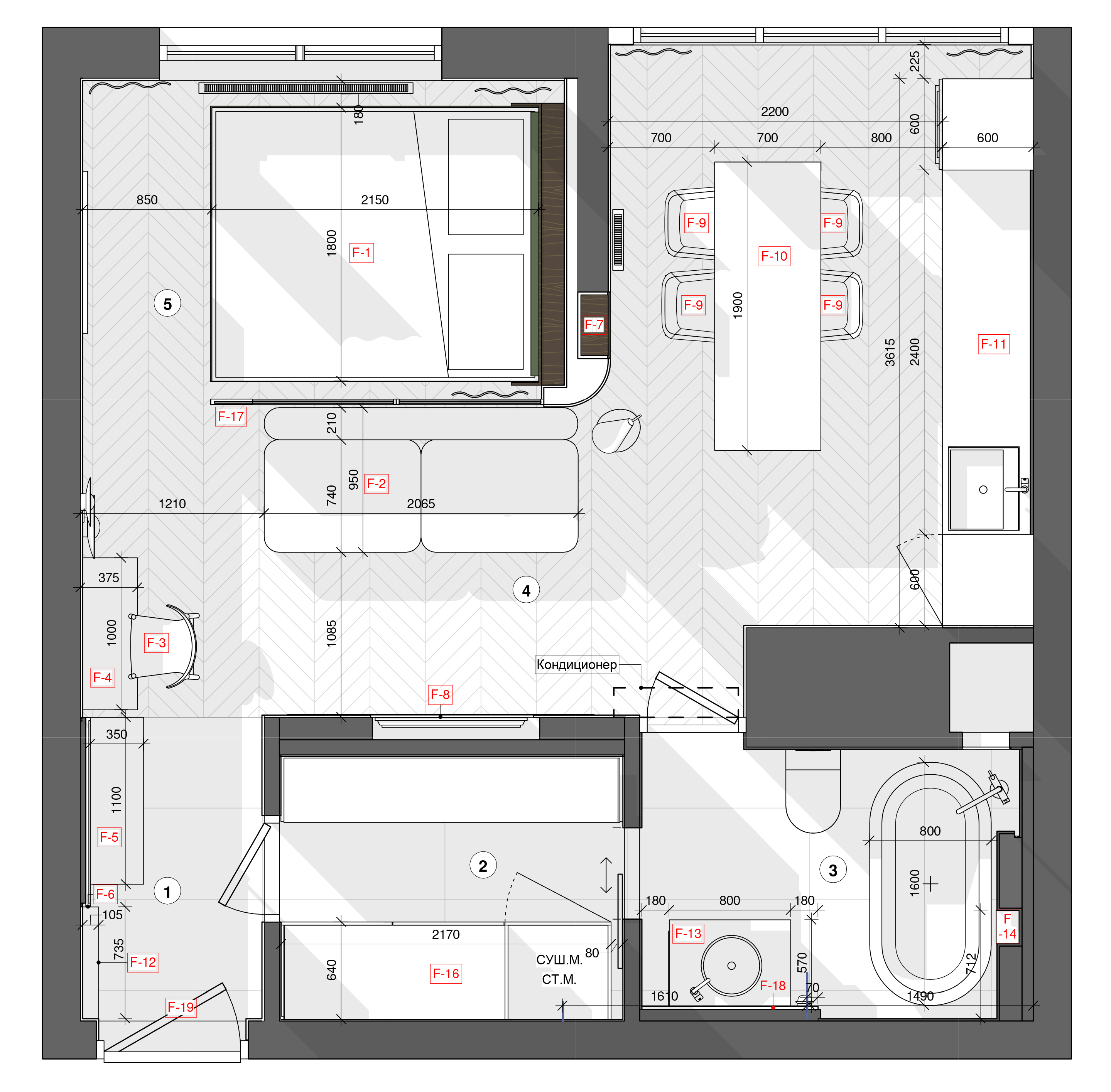
PLAN
Tha apartment has a convenient space planning. You can go through the dressing room directly to the bathroom. And you have an easy access to your clothes directly from the bathroom.
The space was created for a girl who works in the IT field. The task was to plan a minimalist space with classic details on an area of 36 m2.
MOODBOARD
NOW
The kitchen and living room is a common space. So we didn't use the top lockers to create minimalistic look. The partition between the dressing room and the living room has a complex design. TV and TV stand recessed into the wall.
The hallway highlighted with color block. We used natural granite on the floor and created the pattern from them.
BATHROOM
3D SCHEMES
Thanks for watching!
客服
消息
收藏
下载
最近























