查看完整案例

收藏

下载

翻译
TYLA HOUSE 180
STUDIO: BIHS ARCHITECTS
ARCHITECTS: KRASNOV EVGENY, KORNILOV ANDREY, ANASTASYIA GERASIMOVALOCATION: TYLA
AREA: 180- SQ.M.
YEAR: 2023
Архитектура дома одноэтажная, изюминкой является крытая терраса, с наружной конструкцией, а также встроенным дымоходом, он является доминантой дома, разделяющая по вертикали длинный и плоский объем, что очень, не типично для одноэтажных домов. Высота потолков в зоне гостиной достигает 4 метров, что позволяет ощутить пространство и более выразительно представить архитектуру, за счет верхнего парапета.
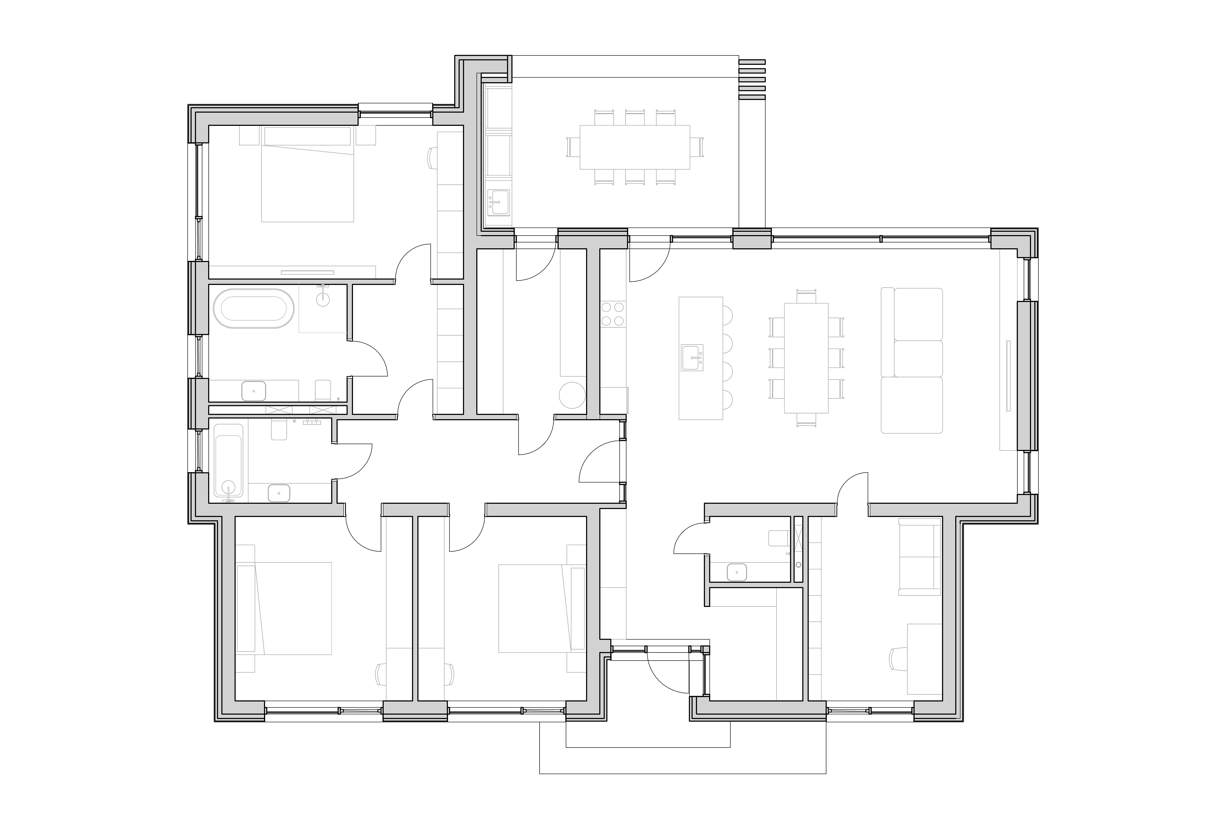
House plan
Планировочное решение дома соответствует, всем современным стандартам, где есть общая кухня-гостиная, отдельный блок мастер-спальни, детские комнаты, а также рабочий кабинет-гостевая. Идеально подойдет для большинства семей. Здесь учтены все необходимые условия для комфортного проживания с удобной эргономикой.
客服
消息
收藏
下载
最近








