知末
知末
创作上传
VIP
收藏下载
登录 | 注册有礼

爱沙尼亚屋 200 平方米丨爱沙尼亚丨BIHS ARCHITECTS

2023/03/20 16:57:31
查看完整案例
微信扫一扫
收藏
下载
翻译
爱沙尼亚屋 200 平方米丨爱沙尼亚丨BIHS ARCHITECTS-0
ESTONIA
STUDIO: BIHS ARCHITECTS
ARCHITECTS: KRASNOV EVGENY, MUSAEV RUSLAN, LEBEDEV BORISLOCATION: TALLINN, ESTONIA REGION
AREA: - SQ.M.
YEAR: 2021
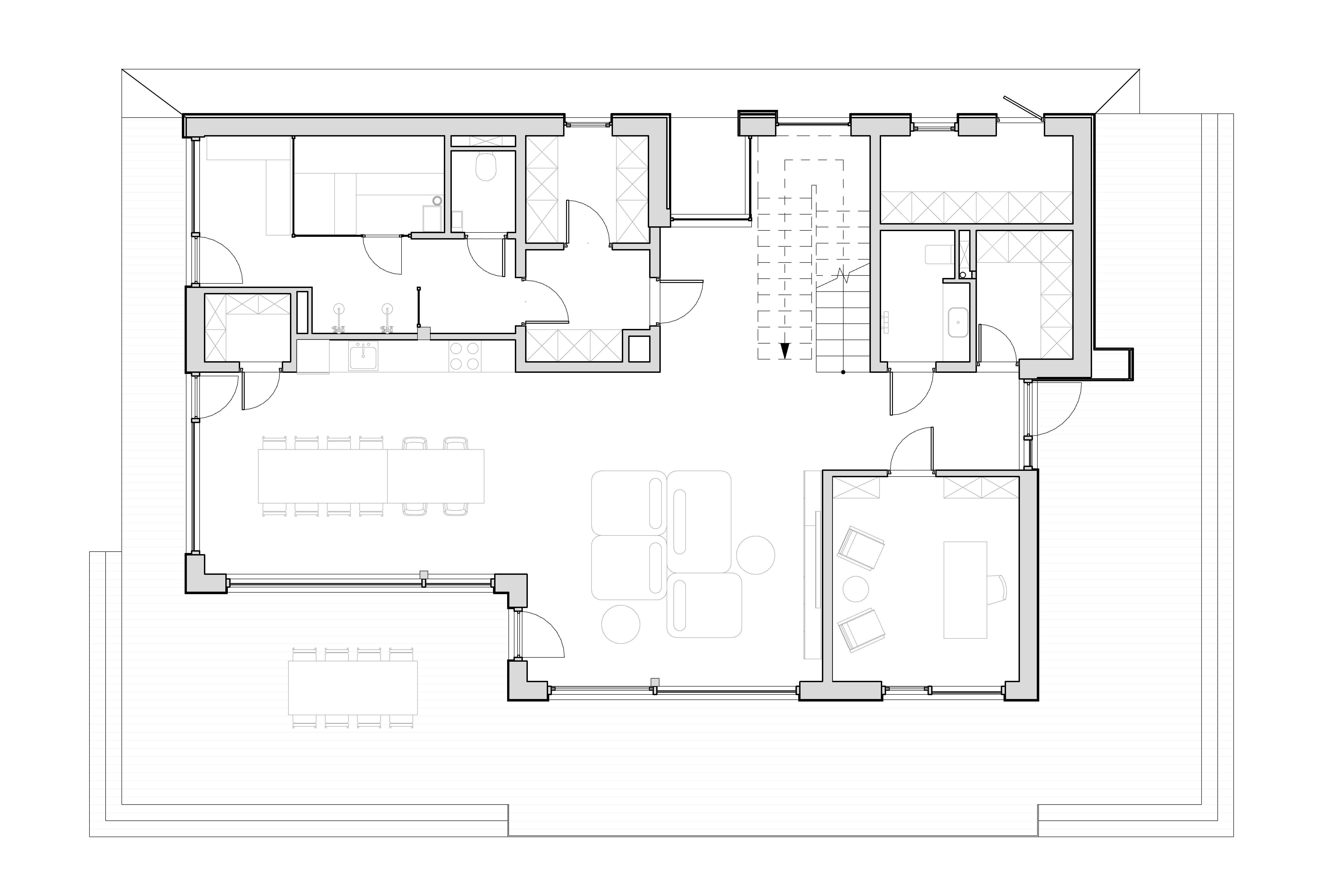
ПЛАНИРОВКА
爱沙尼亚屋 200 平方米丨爱沙尼亚丨BIHS ARCHITECTS-7
爱沙尼亚屋 200 平方米丨爱沙尼亚丨BIHS ARCHITECTS-8
爱沙尼亚屋 200 平方米丨爱沙尼亚丨BIHS ARCHITECTS-9
爱沙尼亚屋 200 平方米丨爱沙尼亚丨BIHS ARCHITECTS-10
爱沙尼亚屋 200 平方米丨爱沙尼亚丨BIHS ARCHITECTS-11
南京喵熊网络科技有限公司 苏ICP备18050492号-4知末 © 2018—2020 . All photos and trademark graphics are copyrighted by their owners.增值电信业务经营许可证(ICP)苏B2-20201444苏公网安备 32011302321234号
客服
消息
收藏
下载
最近