查看完整案例

收藏

下载

翻译
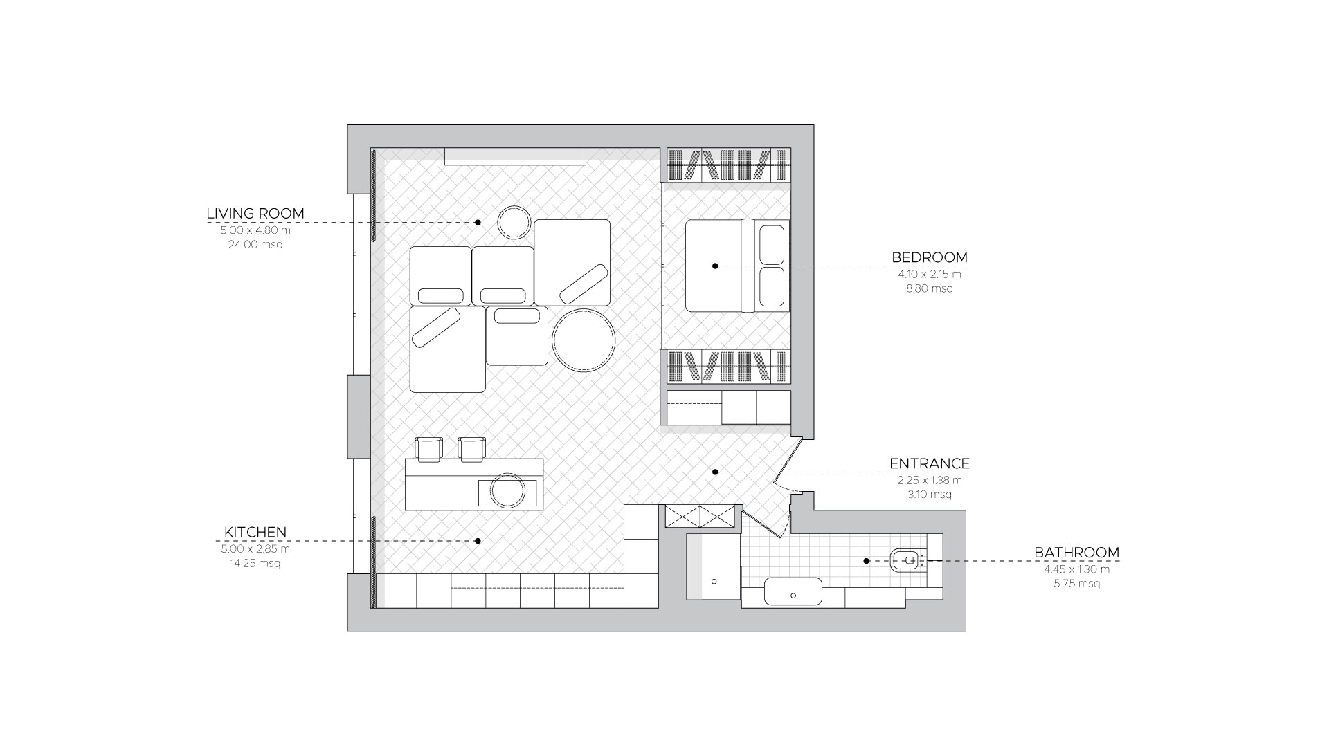
60 sqm Studio
Neo-Classical design that exudes timeless elegance and sophistication, blending modern functionality with classical elements. This exquisite 60sqm space has been meticulously crafted to evoke a sense of grandeur and refinement while maximizing comfort and practicality.
BEHANCE | INSTAGRAM | LINKEDIN
客服
消息
收藏
下载
最近











