查看完整案例


收藏

下载
家在青山绿水处,
门前静卧一平湖。
简居淡欲深山里,
春种秋收夜读书。
案例名称 / 简居
工程地址 /紫金西城
项目面积 / 90平
设计风格 / 北欧
设计施工 / 壹石设计
需求和设计理念:
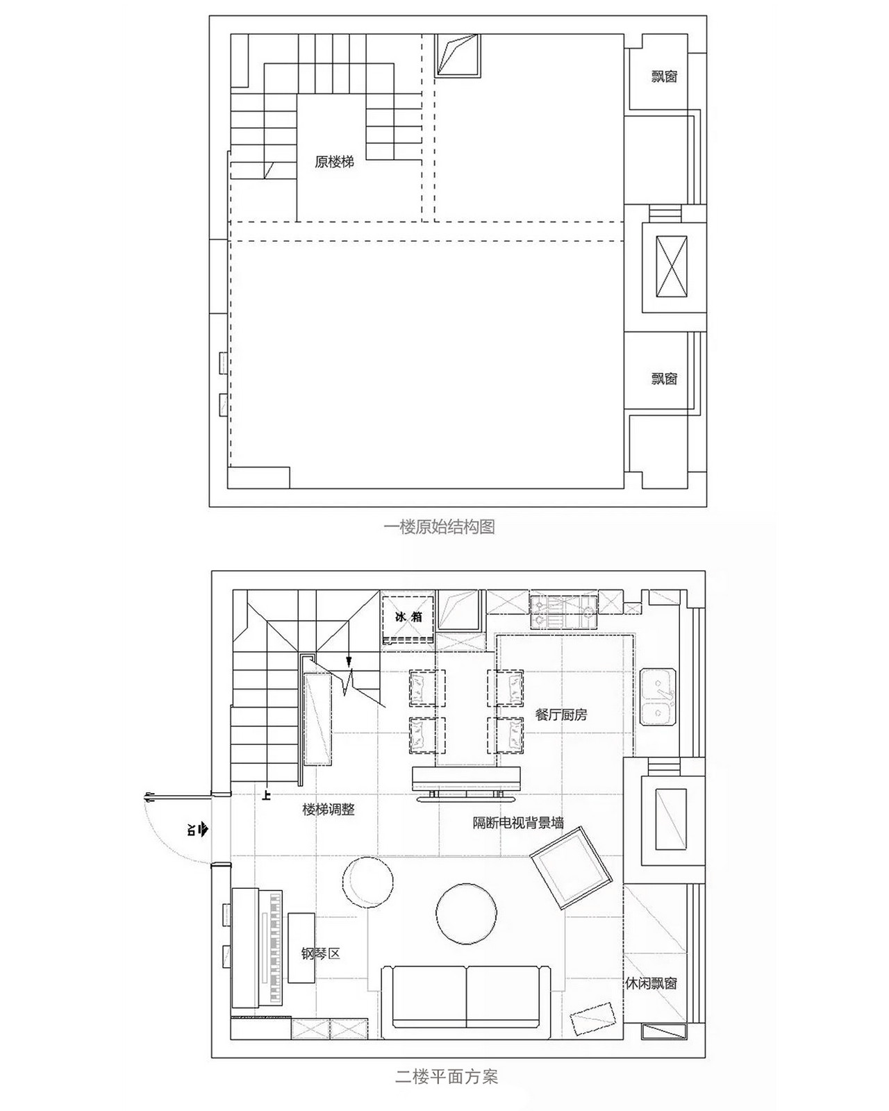
本案为90平复式结构,一层30平,二层60平。这次装修需求是简洁明朗舒适,相对控制预算。
一楼空间相对局促,区域划分零碎,且没有电视悬挂处,布局不合理。
所以我们在一楼规划上着重改进三个方面
①增加视觉空间
②规整区域划分
③最大化做好收纳储备
我们的最终设计方案是:楼梯改造,扩大餐厅整体空间且把冰箱嵌入;增加隔墙划分客餐厅区域并解决电视背景墙问题。
二楼解决儿童房空间小,解决整个空间拐角零碎,设计中最讲究的是点线面归一。在视觉、安全、风水中都非常的有必要。
简洁为主,素雅的色彩搭配,挂画上的一抹黄点亮空间。蓝色沙发上用两只亮黄色抱枕呼应。
女儿正在学弹钢琴,根据原始房屋结构特点,将客厅一个角落打造成意境十足的钢琴角。旁边的一排书架,还可容纳不少书籍。
隔断式电视背景墙,解决电视悬挂问题,解决客餐厅划分,餐桌有墙可靠增加安全感。
餐厅面隔断中间又做了局部掏空,方便放置小物品也增大视觉效果,告别压抑。隔断,屏风它的寓意和作用是有靠山,聚财纳福。
楼梯下方空间设计了一整排储物柜子,增加收纳;橱柜也一起连过来靠墙做了通透玻璃高柜,方便后期放置杯子红酒之类物品。
30平方同时容纳三个空间客厅、餐厅、厨房。经过设计后无论是视觉还是舒适度都提高了很多。
灰白加上局部粉色,整个空间充满气质的暖。
卧室墙刷了淡淡的乳白色,和顶部对比可见层次感。
一束鲜花提升人和空间的亲近感。
纷色是小女孩的最爱。
卫生间外墙嵌入大面积磨砂玻璃增加通透感,一堵实墙就压抑很多。淋浴房壁龛设计,增添了储物功能,便于日常置物。
客厅飘窗阳台深得业主喜爱,周而复始的忙碌生活,更期待坐在这里享受片刻的宁静,一个家无需太多装饰,简洁、有温度的家就是最好。
客服
消息
收藏
下载
最近



















