查看完整案例

收藏

下载
这栋公寓大楼位于东京太田区的一个商业住宅综合区内。该区域经历了重建。对土地租赁的需求很高,目前打造了一栋高层住宅大楼。
This apartment complex is situated in a mixed commercial and residential area in Ota ward, Tokyo. The site is in high demand for rentals and went through a reconstruction as a mid- to high-rise residential complex.
▼项目概览,Overall view © Kenta Hasegawa
▼建筑立面,Facade © Kenta Hasegawa
城市生活在不断的发展中,层次变的越来越多、人口也越来越密集,因此本项目的重点是打造一个能够扭转这种局面,并使其能够融入城市丰富环境的建筑模型。
In a constantly evolving urban life that keeps getting more multi-level and densely populated, it was important to consider an architectural model that would reverse this situation and incorporate the richness of the urban environment.
▼屋顶露台,Terrace © Kenta Hasegawa
设计者在东京进行设计时,当地的建筑规范要求建筑高度必需重视其通往公共道路的通道。因此这个项目的重点是为所有单元打造与公共道路连接的通道,以及一个可以带来自然光线、自然通风、能够在危机情况下提供应急通道的立面。
When designing in Tokyo, a high priority has to be given to the access to the public street as required by the building regulations. Hence, the project focused on providing a direct access for all the units and a façade that brings light, wind and gives an emergency route in the case of a dangerous situation.
▼单元入口处,Entrance © Kenta Hasegawa
▼入口通道,Entrance corridor © Kenta Hasegawa
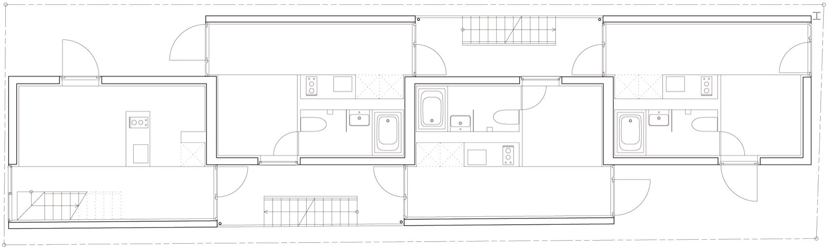
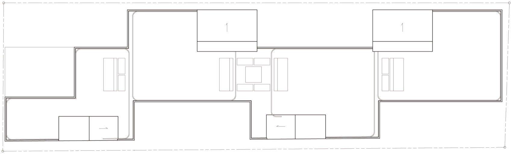
项目用地正面较为狭窄,纵深较长,因此设计者提出了一种在住宅单元内打造土质地板空间的方法,即与相邻单元共同形成“接到土质地板(Domi Doma)”。
This site has a narrow frontage and a long depth, thus we proposed a way of creating an earthen floor space within the dwelling unit forming a “street earthen floor (Domi Doma)” together with the neighboring units.
▼厨房空间,Kitchen © Kenta Hasegawa
这种设计由两个住宅单元组成,通过一个公共楼梯和走廊进行连接,并通过室内的泥土地板进行链接。这个结构的两个单元之间的连接呈U形,设计者使两个“Dori Doma”结构从东西向进行渗透。
This “Dori Doma” consists of two dwelling units connected by a common staircase and corridor, connected to each other via an interior earthen floor. Two units of this composition are interlocked in a U-shape, and the plan is for the two Dori Doma to infiltrate from east to west.
▼室内其它空间,Other interior space © Kenta Hasegawa
这样一来,四个体量以线性形态从北向南交错排列,这种布置方法在这些线性体量之间形成了一条通道,自然光和通风能够因此被引入场地后侧,有利于解决场地类型规划中常见的压抑感和阻塞感。
Here, four volumes are staggered from north to south in a linear configuration. This peculiar displacement generates a passageway through the linear volumes where light and wind are invited into the back of the site, helping to create a typology of architecture free from the sense of depression and blockage that is otherwise dangerously common in similar site type plans.
▼卫生间,Bathroom © Kenta Hasegawa
▼室内交通空间,Interior stairs © Kenta Hasegawa
▼楼梯细部,Stairs detials © Kenta Hasegawa
街道侧上,陶土材质的立面将东侧繁华的城市和西侧的大学校园安静的环境进行了连接。
On the street level, the earthenware gap connects the bustling town on the eastern side with the quiet environment of the university site on the western back end.
▼室外楼梯,Exterior stairs © Kenta Hasegawa
两个住宅单元相互堆叠,从街道侧看行程了三维状的外观,这种设计为城市提供了开放的景观,也为业主打造了舒适的生活环境,解决了现代大都市中常有的压抑和束缚感。
The stacking of the two units gives the aspect of a three-dimensional street, which is thought to create an open landscape for the city and a comfortable urban life for the residents, free from depression and a sense of entrapment of the modern-day metropolis.
▼夜览,Night view © Kenta Hasegawa
▼1F平面图,1F Plan © Tomoyuki Kurokawa Architects
▼2-3F平面图,2-3F Plan © Tomoyuki Kurokawa Architects
▼4F平面图,4F Plan © Tomoyuki Kurokawa Architects
▼屋顶层平面图,RF Plan © Tomoyuki Kurokawa Architects
Photos (Credits_Kenta Hasegawa)
客服
消息
收藏
下载
最近














































