查看完整案例

收藏

下载

翻译
Architects:marc
Year:2024
Architect:Marc Anguill
City:Toulouse
Country:France
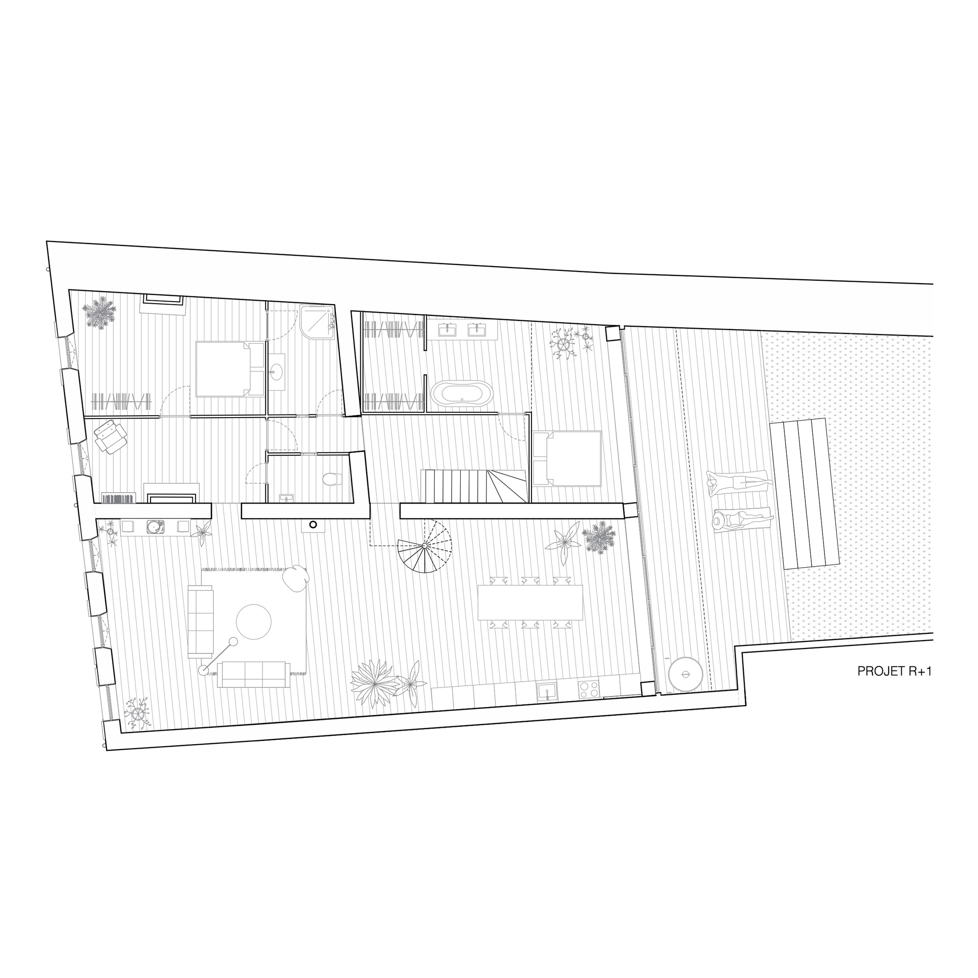
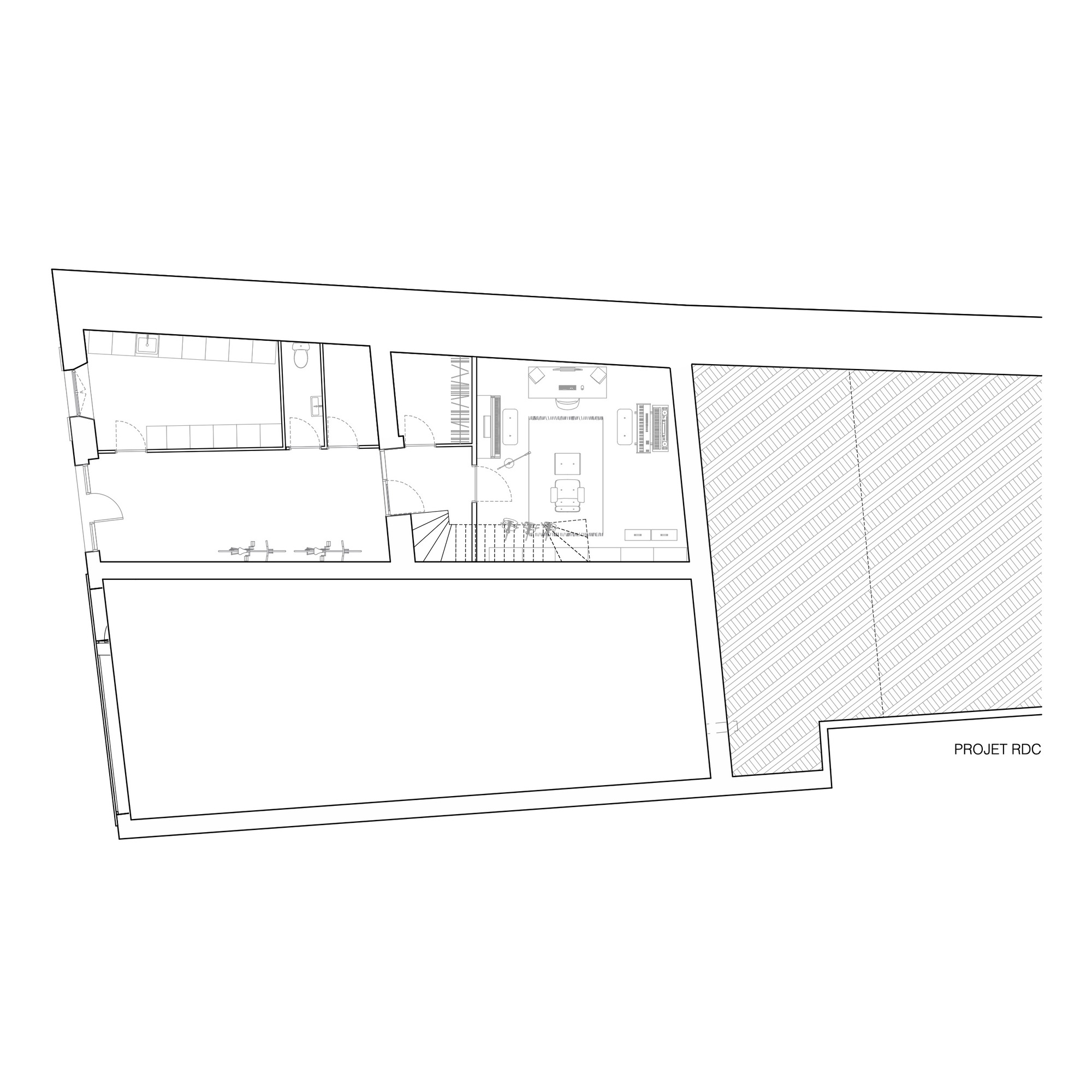
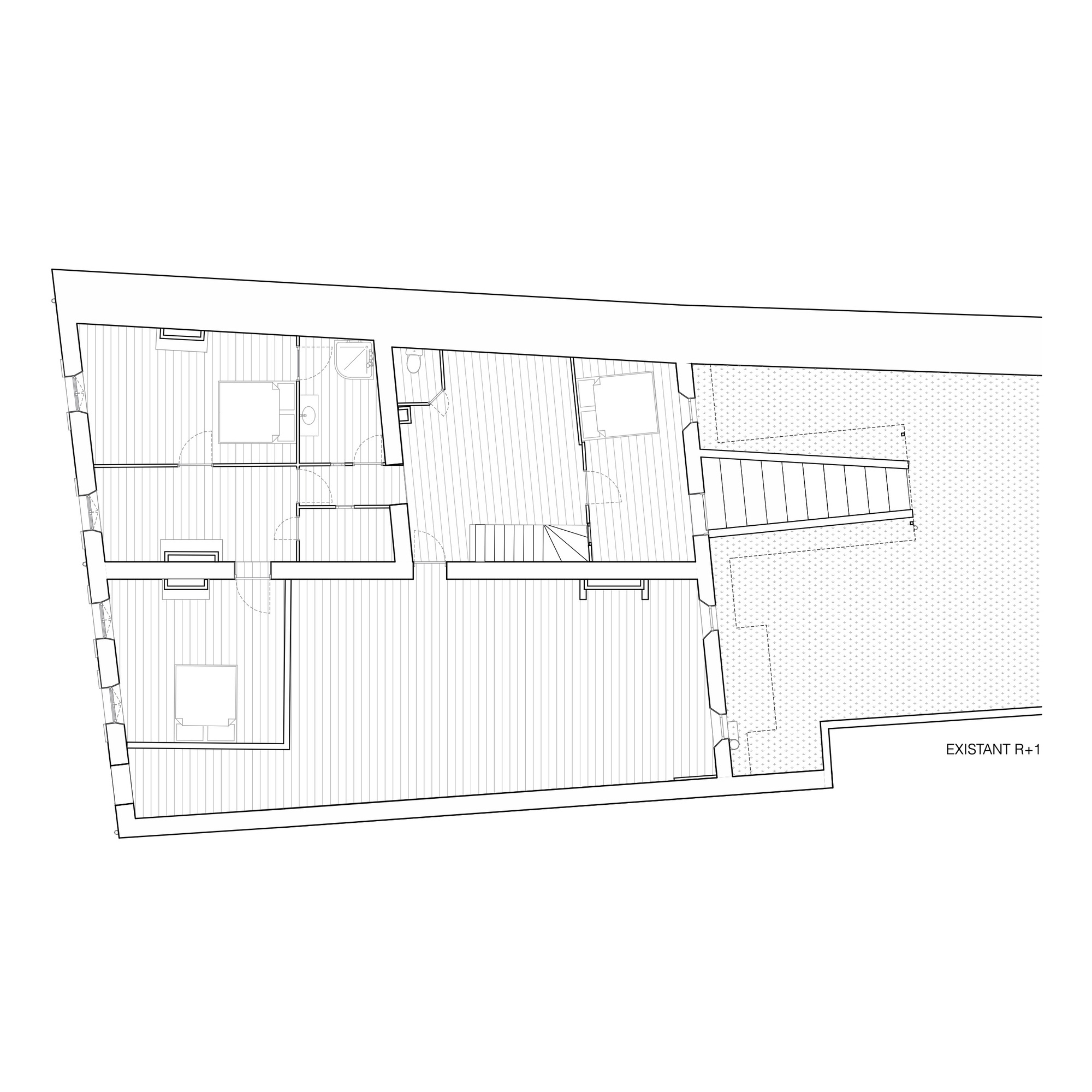
Text description provided by the architects. Located in the historic center of a village south of Toulouse, the house adjoins the old city wall. The building has two levels: the first, noisy, adjacent to the street, and the second, quieter, at the garden level.
At the end of the garden, there is a magnificent view overlooking the Garonne River. Initially, the living spaces were on the ground floor. The living/dining room was semi-buried and not very bright. An unused large attic and three bedrooms were on the upper floor.
There was no connection to the garden, and the beautiful brick and pebble walls were covered with plaster. To take full advantage of the garden and its sunlight, the living spaces were moved upstairs. To achieve this, one of the bedrooms was demolished, allowing its area to be added to the attic, creating a large, double-height through room. A master suite was created on the garden side. The attic was converted to accommodate an additional bedroom and an office.
To open up to the garden, the 10-meter-long wall was demolished. A structure composed of two beams and three reinforced concrete columns was built. The roof structure, which was threatening to collapse, was changed and left exposed.
External insulation of the sarking type with wood wool was installed. An anodized aluminum bay window allows the house to fully open onto the Douglas fir wooden terrace. The walls were entirely stripped to reveal the brick and pebbles characteristic of the region's vernacular architecture. A galvanized steel spiral staircase providing access to the attic will be installed soon.
Project gallery
客服
消息
收藏
下载
最近




























