查看完整案例

收藏

下载

翻译
Zaslavl'
Nota Bene studio
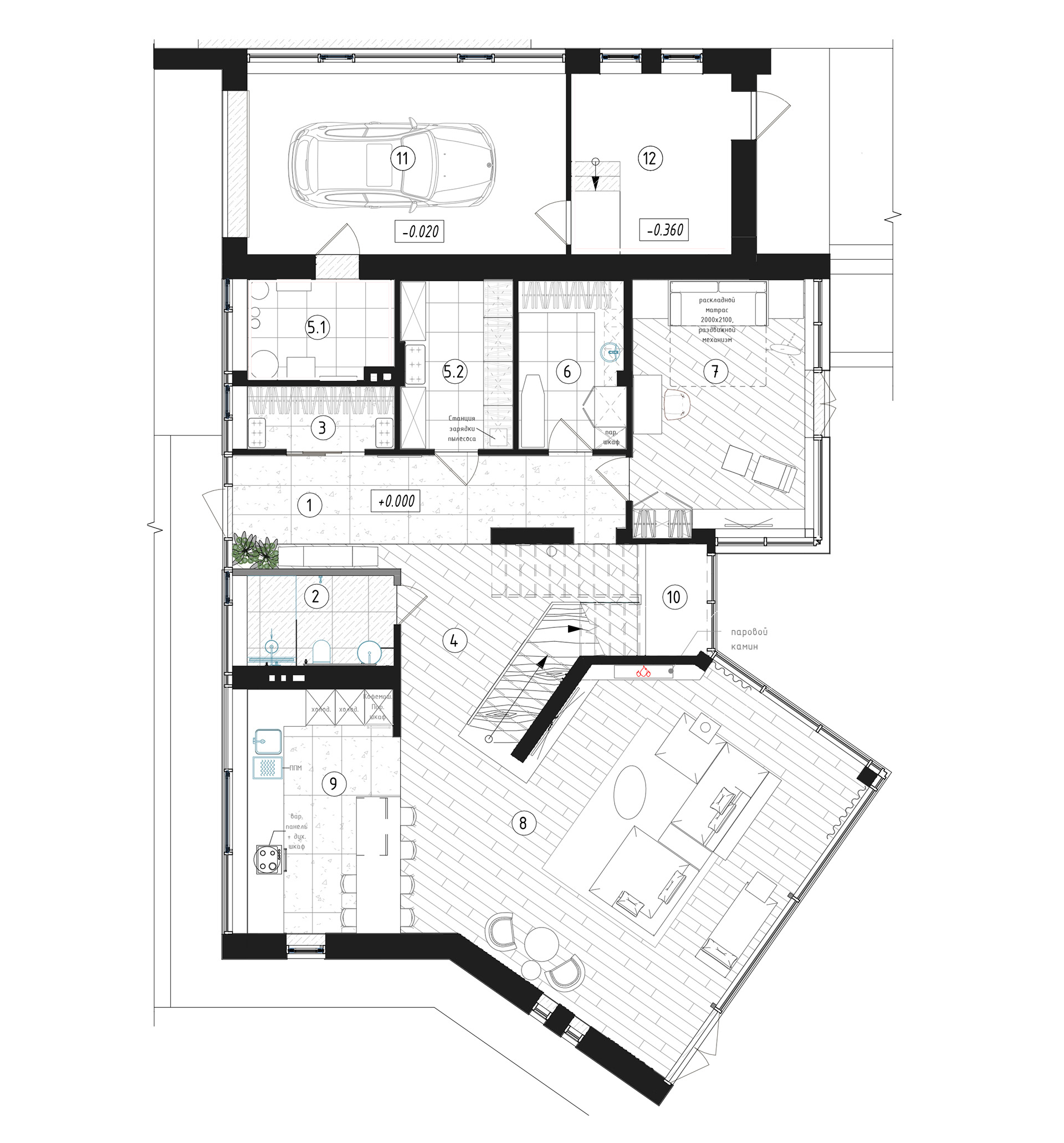
The entire architecture of the house is subject to the customer's desire to see the forest from every window.The main volume of the house is rotated by 55 ° just so that you can look at the trees from all the panoramic windows.The interior was built according to the same principles - there should be a beautiful view from anywhere in the house. Therefore, the layout of the living room is divided in half by a modular sofa, one side of which is directed towards the glazing, and the other is turned towards the fireplace and TV area, for evening relaxation.The fireplace is a separate story in this interior - according to the designer's idea, the fireplace platform goes around the load-bearing wall and turns into a step of the stairs leading to the second floor, thus uniting the volume of the house from the inside even more.
Вся архитектура дома подчинена стремлению заказчика видеть лес из каждого окна.Основной объем дома развернут на 55° как раз для того, чтобы из всех панорамных окон можно было смотреть на деревья.Интерьер строился по тем же принципам - из любой точки дома должен быть красивый вид. Поэтому планировка гостиной разделена пополам модульным диваном, одна сторона которого направлена лицом к остеклению, а вторая развернута к камину и ТВ-зоне, для вечернего отдыха.
Камин выделена отдельная история в этом интерьере - по задумке дизайнера площадка камина огибает несущую стены и превращается в ступеньку лестницы, ведущей на второй этаж, таким образом ещё больше объединяя объем дома изнутри.
Interior layout and interior architecture / Планировка и архитектура интерьера
Куц Анастасия
Design / Дизайн
Мирончик Мария
Visualization / Визуализация
Волков Артём, Боровский Антон
The layout of the living room area, as the center of attraction for all residents of the house, was given special attention.
Планировке зоны гостиной, как центру притяжения всех жителей дома, уделялось особое внимание.
We worked through many options before settling on "the one"
Мы проработали множество вариантов, прежде чем остановиться на "том самом"
客服
消息
收藏
下载
最近




















