知末
知末
创作上传
VIP
收藏下载
登录 | 注册有礼
知末案例   /   医疗空间   /   诊所

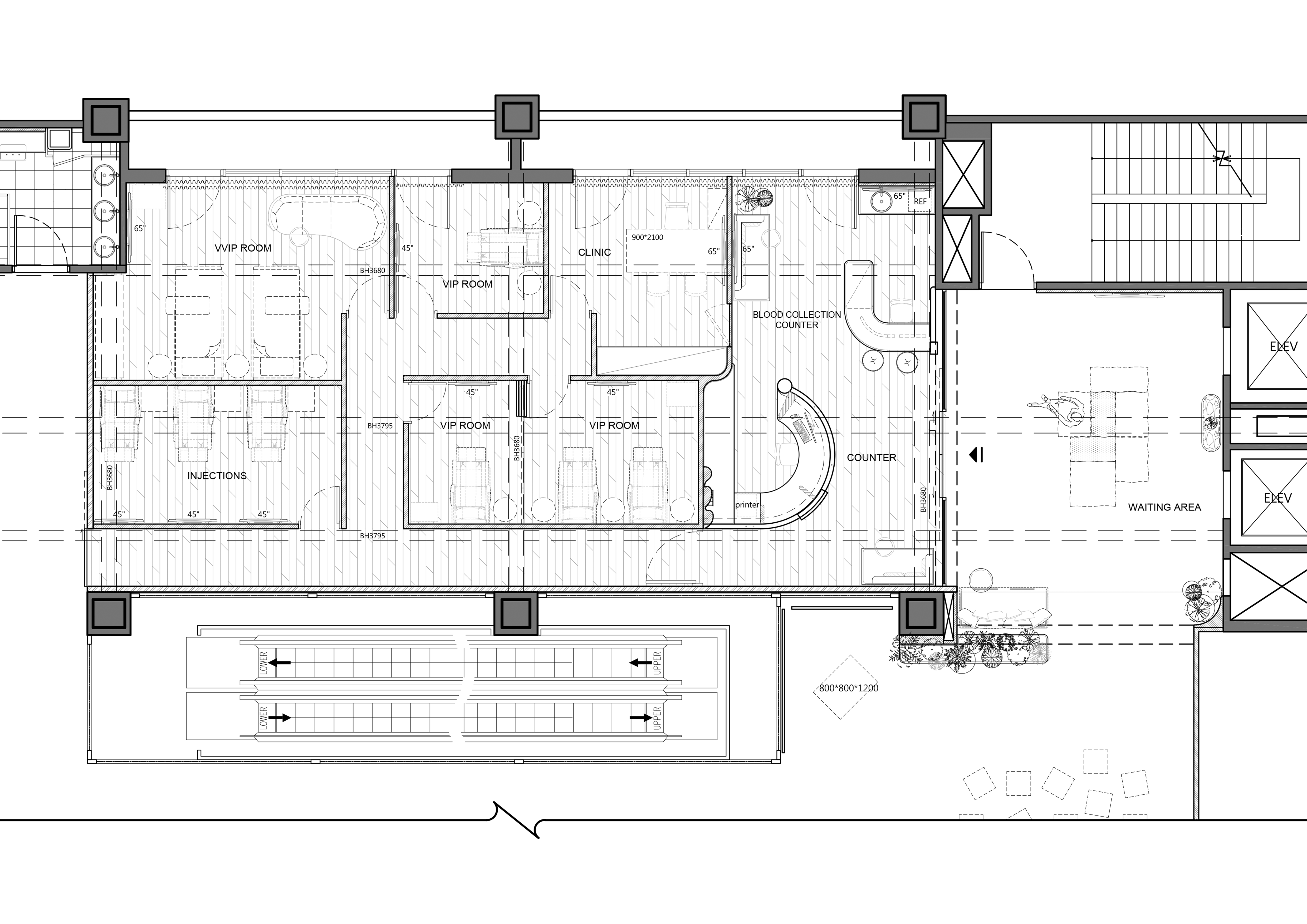
Leeuwenhoek 诊所丨中国台北丨Cathy Yin 殷嘉鴻

2024/01/19 16:53:41
查看完整案例
微信扫一扫
收藏
下载
翻译
|LEEUWENHOEK PRECISION HEALTH CLINIC|
Location:Taipei 內湖
Type:Commercial 百貨商場
Area:195m2
Project year:Dec. 2023
Design:Cathy Yin 殷嘉鴻
Leeuwenhoek 诊所丨中国台北丨Cathy Yin 殷嘉鴻-6
Leeuwenhoek 诊所丨中国台北丨Cathy Yin 殷嘉鴻-7
Leeuwenhoek 诊所丨中国台北丨Cathy Yin 殷嘉鴻-8
Leeuwenhoek 诊所丨中国台北丨Cathy Yin 殷嘉鴻-9
Leeuwenhoek 诊所丨中国台北丨Cathy Yin 殷嘉鴻-10
Leeuwenhoek 诊所丨中国台北丨Cathy Yin 殷嘉鴻-11
Leeuwenhoek 诊所丨中国台北丨Cathy Yin 殷嘉鴻-12
Leeuwenhoek 诊所丨中国台北丨Cathy Yin 殷嘉鴻-13
Leeuwenhoek 诊所丨中国台北丨Cathy Yin 殷嘉鴻-14
Leeuwenhoek 诊所丨中国台北丨Cathy Yin 殷嘉鴻-15
Leeuwenhoek 诊所丨中国台北丨Cathy Yin 殷嘉鴻-16
Leeuwenhoek 诊所丨中国台北丨Cathy Yin 殷嘉鴻-17
Leeuwenhoek 诊所丨中国台北丨Cathy Yin 殷嘉鴻-18
Leeuwenhoek 诊所丨中国台北丨Cathy Yin 殷嘉鴻-19
Leeuwenhoek 诊所丨中国台北丨Cathy Yin 殷嘉鴻-20
Leeuwenhoek 诊所丨中国台北丨Cathy Yin 殷嘉鴻-21
南京喵熊网络科技有限公司 苏ICP备18050492号-4知末 © 2018—2020 . All photos and trademark graphics are copyrighted by their owners.增值电信业务经营许可证(ICP)苏B2-20201444苏公网安备 32011302321234号
客服
消息
收藏
下载
最近