查看完整案例


收藏

下载
古往今来,无数文人雅士隐逸于山水,寄才情于秋风明月,被传为美谈。如今,对于那些久居城市钢筋水泥丛林中的人们来说,一处可以望得见山,看得见水,并能为生活带来愉悦,洗涤心灵的居所,是不少人心之所向。
曾是多家知名地产商的御用设计师,赛瑞迪普家居创始人董蕾擅于将当代艺术与东方意境相融合。此次他从文人苍劲笔锋中提取灵感,巧用软装和艺术装置,打造了一处远离喧嚣的法式山水别墅。
在城市喧嚣中开辟一处宁静之地 在城市中修行,在山水中养生 开启法式精致生活 本项目为凯德麓语联排别墅,是由凯德中国在京打造的低密独栋法式山水别墅,面积500平米,位于北京市昌平区。 土地原本是清朝时期给宫里上供的果园,所以在建设初期就披上了一层皇家色彩,在当下新时代文化振兴的背景下,被定位为拥有东方审美的成功人士所向往的理想居所。
△玄关 一入门,便看到中式玄关柜与山水画的组合,既契合山水别墅这一主题,又符合大多中国人追求自然的审美意境。
玄关伊始,秀山色而撷枫红,山远天高烟水寒,相思枫叶丹,入眼便是一抹枫红,它以一种近乎狂野的姿态叙述着大自然的美,将居者带往那重山雨露之间。
△楼梯
过滤了来自于外界的繁复,每一隅角落中所安置的艺术摆件都充满巧妙的用意,空间充盈着无形的柔软的力量,穿梭其中仿若能倾听到潺潺水声,人行其间,步移景现,妙不可言。
寄情山水,抚慰人心
△宴会就餐区 大抵,热闹喧哗已成常态,设计师的立意则是有心去淡化这样的感觉,以原木、天然云石等材质的运用,法式精致与中式意境巧妙结合,既高级又低调,构成一片远山近水,衍生出安抚人心的力量。
“画类万物之情。”苍劲笔锋象征着文人不屈不挠的傲骨,是岁月赠予的稳重与柔和,幽润昏暗的灯光,内敛秀美的家具形态,含蓄温和的材质对比将这一切不自觉中带入一种优雅当中。情景交融、声情并茂、虚实相生、让人感受到无尽的意境之美。
阳光翠影,悦享天伦
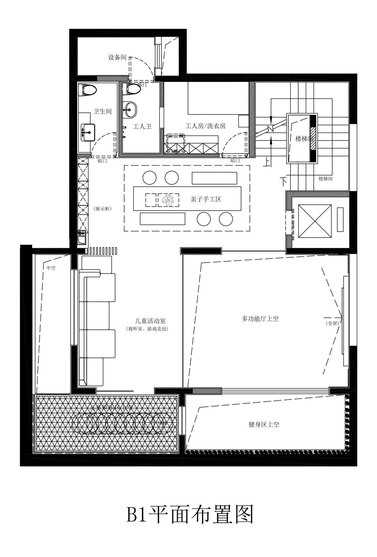
△家庭活动区 线与面编织,光和影交错。宜动宜静的家庭活动区,天光透过间隙散落进室内,将自然野趣融进其中,通灵空旷,豁然开朗。
每一个人心中,都有一片孩提时期的柔软乐园,设计师巧妙的将趣味的想象与童趣的色彩节拍鲜明地融入到空间中,自在地演变出一个美好的生活场景。
在这个干净通透的玻璃盒子中,极简干净的形制,轻扬柔和的色块线条元素,打造出一个明媚、梦幻的领地。
艺术,是一种生活态度
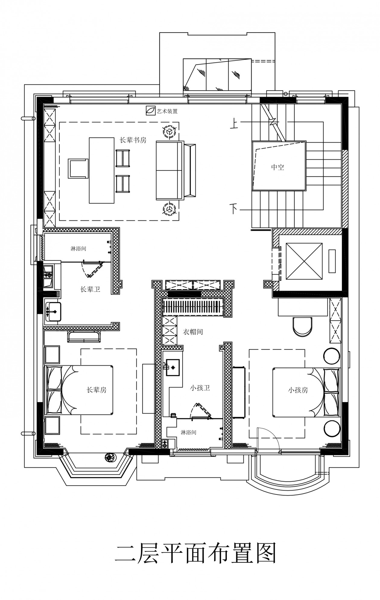
△书房 古色的书香氛围,向来少不了艺术的点缀,在香薰的芬芳中,更显东方韵律之美。书柜设计集储物展示一体,甄选精美的装饰艺术品,独特的东方印象使人回味无穷。
△卧室 卧室舒适的环境,柔软的床品,温润的灯光,似山川流水,可奏雅歌。不同材质相融相生,富有灵气的艺术挂画与中式床头灯相互映衬,尽显清雅与平和。
△院子 日间看云卷云舒,夜晚赏星空霓虹,捧一卷书,泡一壶茶,品味人生漫漫。于无声处听惊雷,于无色处见繁华,远离尘嚣遗世独立,此方净土,足矣。
项目名称:凯德麓语|联排别墅样板间 项目地址:中国|北京 项目面积:500平米 软装单位:北京赛瑞迪普家居装饰有限公司 总设计师:董蕾 设计团队:张丽媛 王丹洋 商务:聂明杰 竣工时间:2019年5月 撰稿人:孙华莹 设计师介绍 Designer
设计师董蕾
中国知名设计师 北京赛瑞迪普家居装饰有限公司创始人
北京赛瑞迪普家居装饰有限公司,于2003年成立,是一家多元化的國際性设计公司,以空间設計、家具装饰设计以及家具定制为主。旗下自有家具设计生产工厂,布艺制作车间。 赛瑞迪普在每个作品呈现的背后,都是由个性化的设计理念,高雅的品味创作,严苛的空间规划及团队间紧密协作等多个方面构成的。公司专业的设计服务范围:酒店会所、餐厅酒吧、高级住宅、样板间、商业以及办公空间等,用创新的设计理念,为客户创造出超卓的空间和价值。
客服
消息
收藏
下载
最近





































