查看完整案例

收藏

下载
FWS_work 设计工作室将一步一刻一景作为设计概念主轴,在空间中的每一步、每一刻和每一景都赋予独特的诗意。
fws_work has Transformed a Compact Loft in Taipei, Taiwan Into an Artist’s Residence, Imbuing Every Step, Every Moment, and Every Scene with a Sense of Poetic Essence.
▼入口门廊,entrance foyer © Suiyu Studio
▼陈列柜,display shelves © Suiyu Studio
整个空间以暗色调铺陈,再用挑高空间与大面积开窗,纳入更多自然光与室外景色。墙面开口与梁柱错 落捕捉四时光影变化,使窗外树景与室内景色堆叠,各个角落自成端景。不同时刻、不同位置带来的心境转换丰富了屋主的居住生活体验,使得生活、工作、艺术、得以自成一格 ,亦和谐共存。
▼室内空间概览,interior space overview © Suiyu Studio
▼茶室昼夜,tearoom at daytime and night © Suiyu Studio
「一步」
A Step
进入空间时,突出的一阶台阶,捉住第一缕视綫,带有年代感的手作红砖覆盖楼梯的立面与踏面,并与 刻意保留的原有石材地砖与藤编折门相呼应,在视觉与触觉的连贯统一中,将视綫引向楼梯旁的开口, 被框住的部分楼梯,变换为聚拢目光的艺术壁龛。与此同时,步步登阶而上,空间与高度的变化也透过这开口体现。最终在静止的空间中,人的移动与流转的视綫带来了感官体验的变化。
(楼梯旁的开口,对外框住了客厅厨房吧台的展示柜体,同时也对内框住了移动的瞬间。)
The owner is an artist who desired a tranquil and inspiring environment in a 700 sqft—small apartment in Taipei, Taiwan. fws_work embraces the concept of “a step at a moment creates a scene”, where every step, every moment, every scene is infused with poetic essence.
▼沙发与台阶,sofa and steps © Suiyu Studio
▼手作红砖覆盖楼梯,Hand bricks cover the staircase © Suiyu Studio
▼楼梯旁的开口框景,framed view within the opening by the staircase © Suiyu Studio
▼俯瞰,downwards view © Suiyu Studio
「一刻」
A moment
茶室座落于住宅的核心,充分传达屋主对于「宁静」的追寻与探索。灰泥墙面、深色实木地板让空间沈稳 凝练。四周以藤编折门围绕,取代了实体墙面。籐编的穿透性引入光影,开阖之间,心境得以随著时刻变 化,既可以是好友相聚、闲适品茗的开阔空间,抑或是独处内省、体会茶道的寂静一隅。fws_work 为屋主设计一处兴之所至,心之所安的灵活空间。沏上一壶好茶后,交流、创作、冥想、沉思,让心神弛放的 是入口的茶香,也是无拘无束的畅快。
By maximizing the high-ceiling open area with ample windows, the interior is flooded with abundant daylight, creating a connection with the surrounding environment and inviting a sense of tranquility indoors. Various openings were strategically placed in the walls, opening up the narrow staircase and small bedroom. These openings also captured the ever-changing interplay of light and shadow throughout the seasons, merging the outdoor foliage with the indoor scenery. By doing so, fws_work crafted picturesque vignettes in every corner, transforming each space into a unique scene.
▼茶室座落于住宅的核心,tearoom located in the heart of the house © Suiyu Studio
▼推拉门,slide door © Suiyu Studio
▼茶室内部,tearoom inside view © Suiyu Studio
▼书桌,desk © Suiyu Studio
▼书桌一角,a corner © Suiyu Studio
「一景」
A Scene
阁楼卧室墙面一致的浅灰泥色调增添柔和,对窗的大面积开口则是屋主藏品陈列的画框,同时,也可以 留白任由窗外绿影铺满空间,让阁楼充满了美好的景致和诗意。
在这个居所中,屋主可以在时光的微弱流转和步伐的轻跃交织,与自然和谐共存,沉澱心灵,寻找灵感 来源。
The space was adorned with a palette of dark tones, creating a sense of depth and ambiance. The use of dark plaster and solid wood provided a backdrop that enhanced the poetic atmosphere of the design. Tactile materials were favored to evoke a sense of tranquility and comfort. Handmade bricks were used to cover the staircase, imbuing it with a nostalgic touch. Original stone tile flooring was preserved, adding to the overall aesthetic. Additionally, woven rattan folding doors replace traditional solid walls, allowing for the permeation of light and shadows in the tea room. These selective materials and their arrangement bring warmth and serenity to the space.
▼阁楼卧室概丰富的开口,various openings on the wall of attic bedroom © Suiyu Studio
▼阁楼卧室,attic bedroom © Suiyu Studio
▼卫生间,bathroom © Suiyu Studio
▼卫生间,bathroom © fws_work
Design firm: fws_work
Project team: Yu-Hsiang Fu (Principal Designer)
Construction Management: ArchinSpace
Staging & Art Styling: Note In Silence
Photographer: Suiyu Studio
Artwork: Genggeng Studio
Location: Taipei, Taiwan
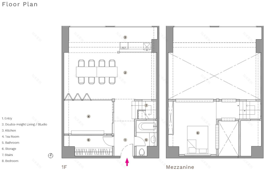
Gross floor area: 65 sqm / 700 sqft
客服
消息
收藏
下载
最近

























