查看完整案例

收藏

下载
眼镜是我们佩戴的最精致和实用的物品之一,具有结构和机械特性。它们通过无数的小部件和技术在矫正视力方面发挥着功能性作用,但眼镜本身也成为一件精致的物品和时尚元素。我们希望20年来一直致力于研究和制作眼镜的品牌‘ZEUS’的新店能够体现这些眼镜的特点和精致。我们在ZEUS的空间内细致地表达了眼镜的结构一体化、精致和机械的组装、功能的和谐与平衡以及美学的优雅。
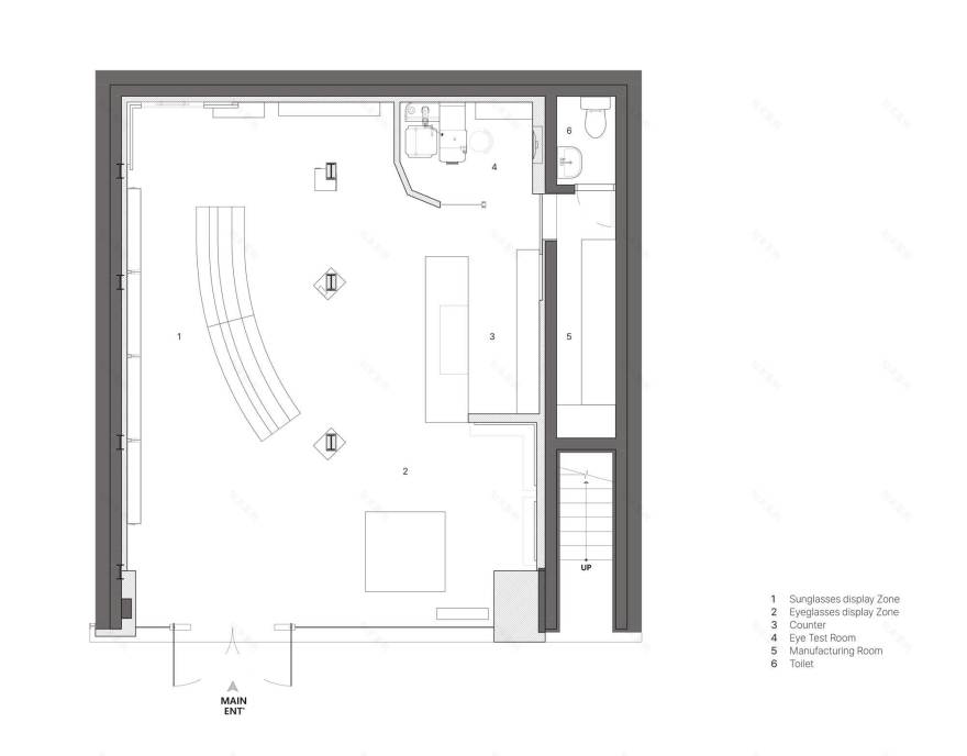
首先,我们的目标是统一空间的主线,结合结构,在空间内创造自然的流动。虽然墙面展示的形式不同,但它们都处于相同的高度,自然地组合在一起形成空间的长轴。总之,这些元素引导着空间的流动。此外,柱子充当对角线轴线,欢迎游客并在功能上划分空间的布局。
其次,从空间大结构到家具、灯具,我们并没有隐藏而是将组装件、螺栓、螺母等元素暴露出来。这些机械元素作为整个空间的设计特色,使其显得更加细致和精致,并展示眼镜的机械特性,以彰显品牌的专业性。
最后,还有各种展示形式和高度。所有的眼镜展示家具都是根据每副眼镜的特点设计的。通过不同的高度、展示形式和装饰材料来表达家具,和谐地展示了空间的功能性和设计性。
具体来说,为了展示同一太阳镜系列的各种镜片颜色,我们设计了一个沿着长墙分为四个部分的墙面展示。这个展示区配有不同高度的镜子和家具,营造出一种动态而有节奏的空间感。为了突出太阳镜的多种颜色,家具采用了平静的单色色调。
下一个展示区采用更简约的设计,强调眼镜的框架和形状,并使用清新的色彩来平衡空间。通过这种方式,我们旨在将“眼镜”这个小物件的特征转化并细化到大空间中,创造出一个反映“ZEUS”身份的环境。我们希望通过这个空间,人们能够认可ZEUS对眼镜的努力和长期承诺,帮助品牌在参观者眼中更加专业、成熟和细腻。
项目设计:studio LETTAR
项目面积: 90.2501349m²
项目年份:2024
项目摄影:Yongjoon Choi
首席建筑师:Seulgi Yoo, Seojeong Lee
项目成市: Jung District
项目国家: South Korea
设计师:studio LETTAR
语言:英语
客服
消息
收藏
下载
最近



















