查看完整案例

收藏

下载

翻译
Architects:RISE Design Studio
Area:268m²
Year:2024
Photographs:Henry Woide
Manufacturers:Sto,Clayworks,Eurener,Maxlight,Mitsubishi,Remjo,The Concrete Flooring Company,Zehnder
Lead Architects:Sean Ronnie Hill, Imran Jahn
Structural Engineer:Jensen Hunt
Contractor:Prohome
Sustainability Consultant:Next Step Heating
Country:United Kingdom
Text description provided by the architects. In Kensal Rise, North West London, RISE Design Studio has transformed a mid-terrace house into a model of sustainable urban living. This project reimagines existing housing stock and sets a new standard for eco-friendly retrofits in metropolitan areas.
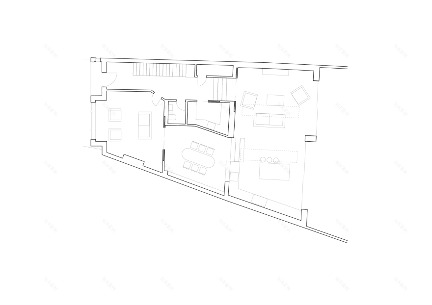
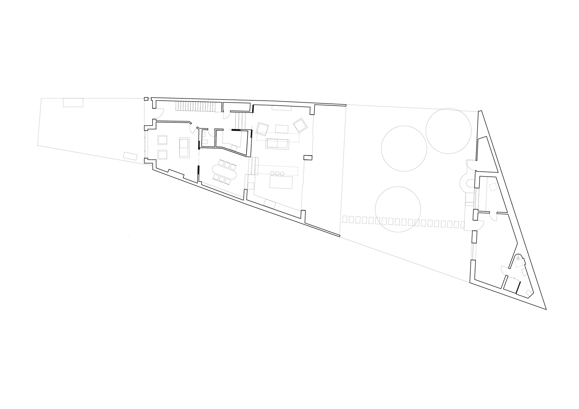
Key features include: Advanced energy-efficient retrofit strategies using EnerPHit principles, Rear and dormer extensions plus a large garden studio, Air Source Heat Pump (ASHP) for water and space heating, Solar Photovoltaic (PV) panels for renewable electricity, Enhanced airtightness and super-insulation, Mechanical Ventilation with Heat Recovery (MVHR) system, Open-plan living spaces connected to the garden and Separate garden studio doubling as a home office. The renovation's focus on sustainability yields impressive results, with energy consumption reduced by 75% (from 38,500 kWh to 9,500 kWh per annum). Director Sean Ronnie Hill emphasized the project's commitment to sustainability: "This deep retrofit demonstrates the possibilities of modern sustainable architecture in urban environments. We've exceeded Building Regulations requirements for insulation in most cases by twofold, creating an energy-efficient and comfortable home."
The project showcases sustainable materials that contribute to both performance and aesthetics. Co-director Imran Jahn explained, "We used locally sourced clay plaster for breathability and moisture regulation, Valchromat for durability and low VOC emissions in the kitchen and joinery, and micro cement and polished concrete for sustainability and style." Homeowners Anne-Claire and Olly shared their vision: "We wanted an open plan space at the back of the house, including a large kitchen, as we love cooking and socializing. We aimed to fully experience the garden and existing fruit trees, making it an integral part of the house." The result has exceeded their expectations. Anne-Claire added, "We most enjoy the round roof light above the shower in the master ensuite and the spacious, bright kitchen and living area flowing into the garden. The ability to transition between inside and outside is a game-changer, especially when entertaining friends."
The addition of a garden studio has transformed the work-from-home experience. Olly noted, "Having a home office is a game-changer. My commute is now just a walk down the garden path, which gives me back 90 minutes per day. The separate space creates a marked transition from work to home life, which is invaluable." As cities worldwide face housing shortages and climate change, the Herbert Paradise project offers a blueprint for sustainable urban living. It demonstrates that innovative design and commitment to sustainability can create environmentally responsible homes that enhance occupants' quality of life. RISE Design Studio is exploring opportunities to apply lessons from this project to future renovations across London and beyond, potentially scaling up the impact of these sustainable practices.
Project gallery
客服
消息
收藏
下载
最近








































