查看完整案例

收藏

下载

翻译
Project 251
Astros, Arcadia, Greece
TYPE: Single Family House
AREA: 310 m²
YEAR: 2022
A single family house with pool in the Eastern Peloponnese, Astros, Greece.
The house with a total area of 310 sq.m. is located in Astros Kynourias, in the Western Peloponnese and more specifically is surrounded by olive groves. In order to integrate the house into the environment, the large openings are oriented in such a way as to ensure the privacy of the individual zones, while at the same time creating interconnected relations between the exterior and the interior, the landscape and the architecture.
The more minimalist the project, the greater the challenge with the client's requirements. The main idea was to combine three simple boxes, while meeting the exact needs of the customer and of course to have respect for privacy and the right shading.
Three parallel volumes are integrated with each other and the multidirectional textures of the facade cladding materials complete the architectural composition. The 20m long volume of the second floor floats above the landscape, creating a semi-outdoor space below it.
A High-tech sustainable construction with thermal facade, local stone and aluminum cladding, with sliding aluminum doors with a maximum frame width of 7.5 meters and triple glazing, compose an autonomous smart home, with refined details.
Η κατοικία συνολικής επιφάνειας 310 τ.μ. σχεδιάστηκε σε μια έκταση με ελαιώνες στο Άστρος Κυνουρίας, στη Δυτική Πελοπόννησο. Για να ενσωματωθεί το κτήριο στο περιβάλλον, τα μεγάλα ανοίγματα προσανατολίζονται με τέτοιο τρόπο ώστε να διασφαλίζεται η ιδιωτικότητα των επιμέρους ζωνών, ενώ ταυτόχρονα δημιουργούνται αλληλένδετες σχέσεις μεταξύ του εξωτερικού και του εσωτερικού, του τοπίου και της αρχιτεκτονικής.
Όσο πιο μινιμαλιστικό είναι το έργο, τόσο μεγαλύτερη είναι η πρόκληση ώστε να εκπληρωθούν όλες οι απαιτήσεις του πελάτη. Η βασική ιδέα ήταν να συνδυαστούν τρία απλά κουτιά, καλύπτοντας παράλληλα τις ακριβείς ανάγκες του ιδιοκτήτη και φυσικά να υπάρχει σεβασμός στην ιδιωτικότητα και τη σωστή σκίαση.
Έτσι λοιπόν, τρεις παράλληλοι όγκοι ενσωματώνονται μεταξύ τους και οι πολυκατευθυντικές υφές των υλικών επένδυσης της πρόσοψης ολοκληρώνουν την αρχιτεκτονική σύνθεση. Ο όγκος του δεύτερου ορόφου μήκους 20 μέτρων επιπλέει πάνω από το τοπίο, δημιουργώντας έναν ημιυπαίθριο χώρο κάτω από αυτό.
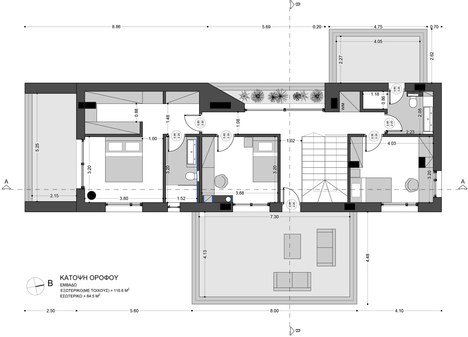
Η κύρια είσοδος έχει τοποθετηθεί σε στρατηγικό σημείο για να επιτρέπεται η κυκλοφορία, στο υπόγειο, στην κρεβατοκάμαρα των επισκεπτών στο ισόγειο και στα υπνοδωμάτια στον πρώτο όροφο, χωρίς ο επισκέπτης να έρχεται σε άμεση επαφή με τον κυρίαρχο χώρο του σπιτιού, το μεγάλο σαλόνι με την κουζίνα που βρίσκεται στο ισόγειο. Το μεγάλο άνοιγμα στο νότιο τμήμα του ισογείου δίνει μια συνέχεια του εσωτερικού με το εξωτερικό, όπου μέρος του δεύτερου σκιάζεται από τον όγκο του πρώτου ορόφου όπου υπάρχει μια τραπεζαρία με υπαίθριο μπάρμπεκιου, ενώ ακριβώς δίπλα η πισίνα συμβάλλει στην ψυχαγωγία των κατοίκων καθώς και στο δροσισμό της γύρω περιοχής. Ο πρώτος όροφος είναι αφιερωμένος στον ιδιωτικό χώρο, όπου το λειτουργικό πρόγραμμα αποτελείται από το κυρίως υπνοδωμάτιο, με μπάνιο και ντουλάπα, δύο παιδικά δωμάτια και ένα μπάνιο, ενώ ένας διάδρομος οδηγεί τους επισκέπτες στη βεράντα του πρώτου ορόφου.
Μια υψηλής τεχνολογίας βιώσιμη κατασκευή με θερμοπρόσοψη, επένδυση από τοπική πέτρα, με συρόμενες πόρτες αλουμινίου με μέγιστο πλάτος πλαισίου 7,5 μέτρα και τριπλά τζάμια, συνθέτουν ένα αυτόνομο και έξυπνο σπίτι, με εκλεπτυσμένες λεπτομέρειες.
PROJECT TEAM:
Arch. Athanasios TZOKAS
Arch. Fotis DALIANIS
C. Eng. Giorgos GEORGIADIS
Arch. Kelly FILIPPOPOULOU
客服
消息
收藏
下载
最近



















