查看完整案例

收藏

下载
千墨(HOUSE OF MO)位于上海浦东川沙新镇,临近迪士尼度假区,周边建筑多为上世纪七八十年代所建,几经变迁,整个镇子呈现混乱与无序的状态。
▼项目外观
第一次勘察场地,门前巨大的稻田占据了整个视野,田边水杉的竖向线条与稻田所形成的几何感呈现出塞尚般的画面。建筑所占据的独特地理位置给这个场地提供了一个很好的景观支撑。原建筑为4幢上世纪80现代居民楼,砖体预制板结构,外加东西各一幢两层瓦房,原有的宅基地限定出了建筑的红线范围,也使整个建筑边界框定在了长条形的体积内。
▼改造前基底原状
设计之初,希望最终矗立在稻田尽头的不单单只是个民宿,而是带有某种精神性感知的建筑物。因此摒弃了传统民宿的固有概念,选用带有凝聚性力量的黑色作为建筑的主基调,极简的建筑形态与周边混乱的建筑肌理形成对立美学,以守望者的姿态出现在稻田尽头,打开一种全新的日常体验。
▼简洁的黑色建筑立于稻田之上
考虑到原有建筑结构的脆弱性和混乱的表皮肌理,决定从建造这一思考逻辑出发,对建筑进行由结构至形体的整体改建。强化结构保证建筑稳定性,简化形体,以纯粹回应眼前的这片稻田。
▼建筑由简洁的体块组成
作为主体的长条形建筑体,在4m*9m的开间模度下,强化地基,增加钢筋混凝土立柱作为结构支撑,同时依据南北方位界定出辅助空间与使用空间两大区域,将房间按4m的柱间距模度在南面依次排开,给入住者提供最佳的景观支持。
▼玻璃立面提供良好的景观视角
▼建筑入口
餐厅部分沿用整体的黑色基调,在8m*8m的建筑红线内,利用对角拉出整个屋面的受力结构体,使整个屋面呈现悬浮感,斜面的处理也弱化了由于尺度限制所带来的空间局促感,在视觉上形成多维度的空间纵深感。
▼玻璃围合的餐厅
▼餐厅内部
▼以黑色为主色调
将辅助空间作为整个建筑的通道路径,串联起各个功能区,受制于场地条件,通道呈现狭长的形态,设计上,以纯白色柔和光线不足带来的幽闭感,二层部分使用了挑高处理,增加空间的层次,顶面狭长的天窗将自然光线引入通道,给行走的路径带来一份不确定的惊喜。
▼入口接待区
▼前台
▼走道
作为主体的住宿空间,采用模块化设计方式,在节约成本的同时方便施工管理,17个房间共分5个模块处理,用极简的手法与建筑形成统一关系。
▼顶层客房
▼落地窗前的浴缸可以欣赏室外全景,bathtub beside the French window providing panoramic view ©邵炜亮
▼标准客房
▼客房细部
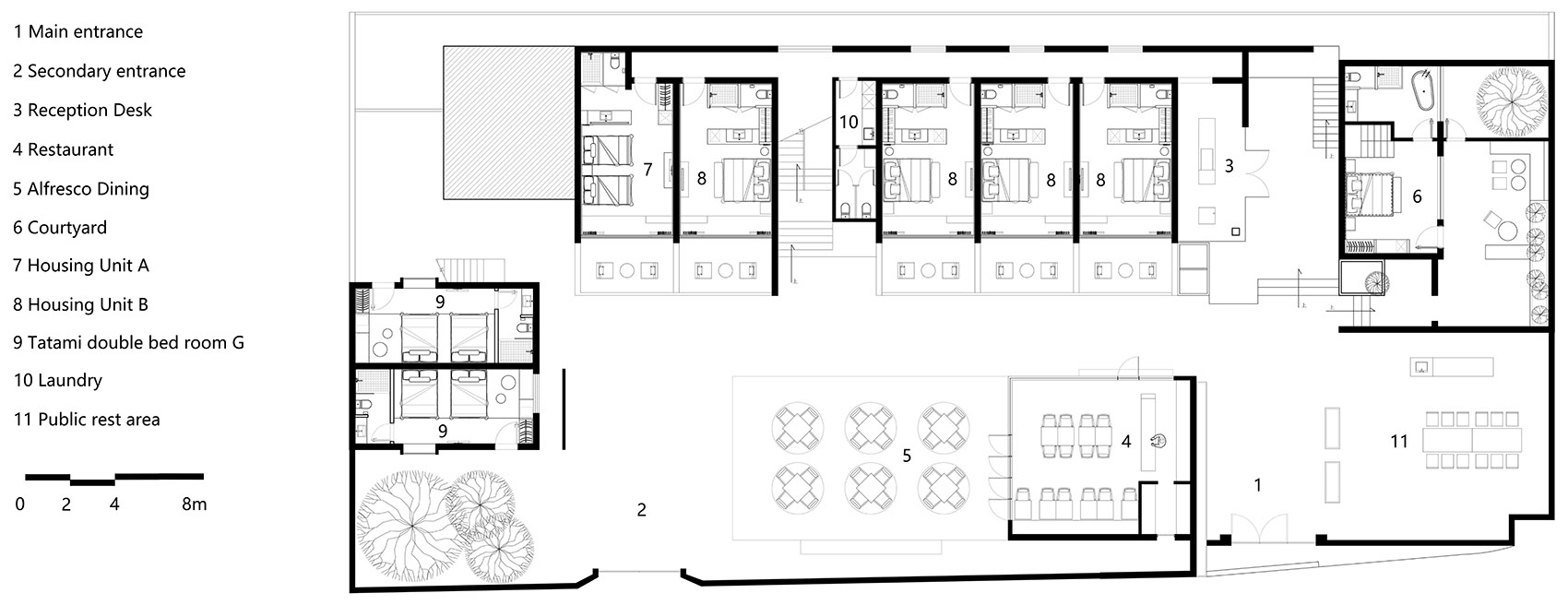
▼一层平面图
▼二层平面图
▼三层平面图
▼立面图
项目名称:千墨·(HOUSE OF MO)
设计公司:偏离设计
设计时间:03/2019—06/2019
竣工时间:06/2019—07-2020
主创设计:小岛
设计团队:李钢、戚帅奇、徐俊彪
项目地址:中国 上海川沙镇
项目面积:1200㎡
结构设计:介直设计工作室
灯光设计:上海博纵照明
建筑施工:启劲建筑装饰工程有限公司
装饰施工:千墨装饰工程有限公司
项目摄影:邵炜亮
设计撰文:小岛
项目业主:米维科(上海)酒店管理有限公司
主要材料:混凝土、纳米涂料、超白玻璃、白橡木、水磨石
客服
消息
收藏
下载
最近
































