查看完整案例

收藏

下载

翻译
PURE VELVET
Architect, interior designer and curation by Olya Sartakova and Protsenko Tetyana
Location: Dnipro, Ukraine Project Year: 2023 year
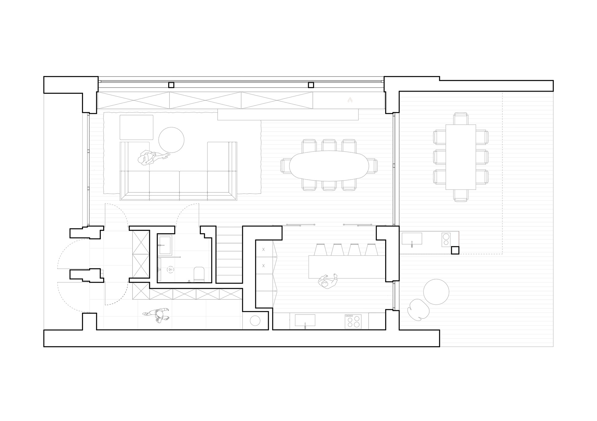
Project Area: 165 sq.m.
Photo credits: Andrey Bezuglov
We are pleased to present the new interior.
Two-story cottage near the Dnipro, Ukraine. Bright, spacious and cozy family residence.
ABOUT
A simple expression of natural modern space
Pure Velvet was inspired by the beauty around - a weightless atmosphere of peace and comfort. The residence is located in a country town in the middle of the forest, with a fabulous view of the river. The combination of natural elegance of materials and artistic objects of modern design, embodied in an elegant interior.
Designed for a large family, it has convenient zoning and the ability to transform space using sliding partitions and hidden systems. In this space, it is comfortable for the whole family to gather, and at the same time, private areas are provided for each family member.
The bedroom design is based on a combination of light-colored walls and veneered geometric elements, which are emphasized by soft textiles.The bedroom has a TV area and a small workspace in the wardrobe, where the hostess will do her makeup and answer letters. The space is divided by an elegant glass partition to allow as much light as possible into the room
PROCESS
Thank's for your attention!
客服
消息
收藏
下载
最近






















































