查看完整案例

收藏

下载

翻译
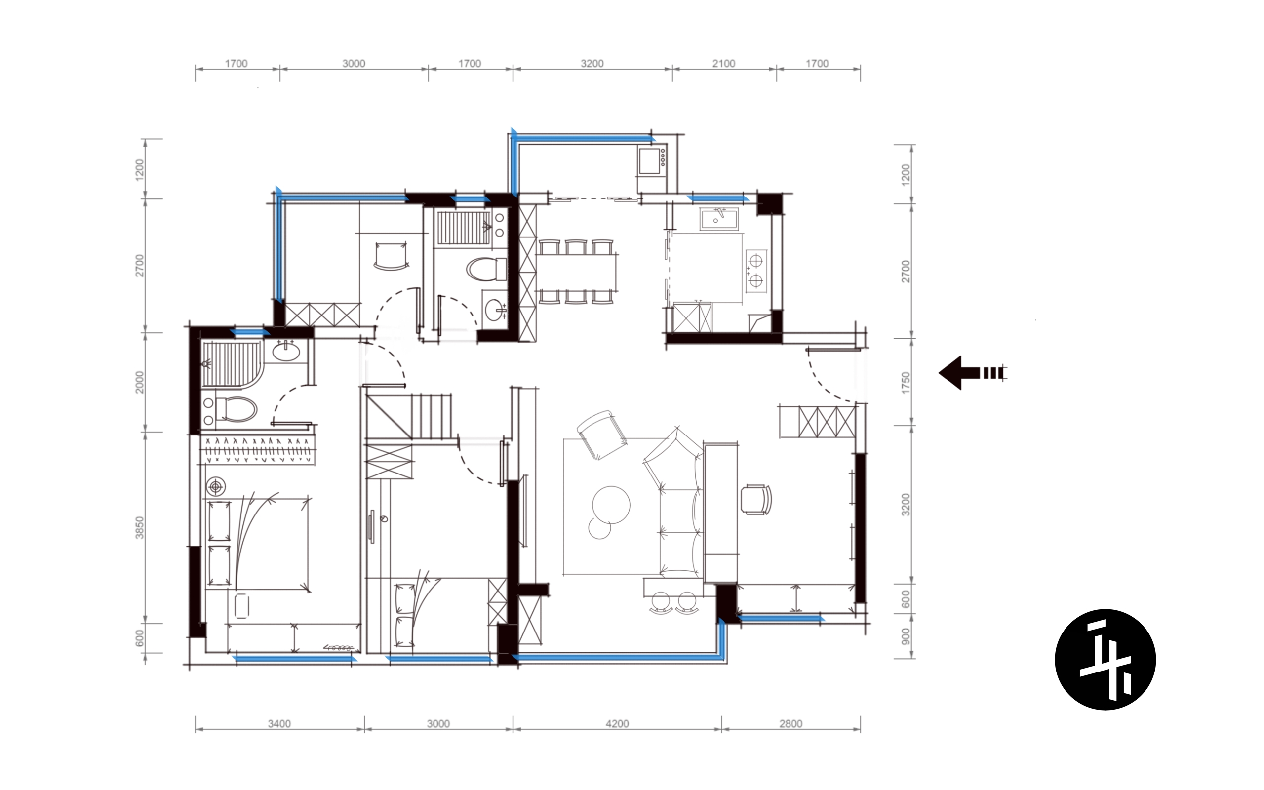
生活不过是,想和你一屋、两人、三餐、四季,期盼阳光能暖一点,日子能慢一点,这便是业主一家的幸福日常。不必局限于特定的风格,通过设计构建一个功能合理,精神契合的生活场所,舒适,温馨,能够卸下所有的疲惫,安稳入睡。
这个家的设计诉求以互动性及看顾陪伴彼此为主。为了小孩的玩耍及女主人练瑜伽的需求,将机能集中于光线较好一侧,客厅、餐厨、书房随时产生互动,欢乐满屋。
生活赋予的美好,纯粹空间温柔包裹之下,极简美学正当时,大面积铺陈的原木色,搭配简洁高级的线条,让空间回归纯粹。
客服
消息
收藏
下载
最近


















