查看完整案例


收藏

下载
万家灯火,盏盏不同
有的房子,照亮一方独居中青年回家的路
有的房子,偷藏着小情侣间的甜甜蜜蜜
有的房子,见证着两口之家进阶三口的喜悦
有的房子,承载着三代同堂的酸甜苦辣
家,在每个人心中都有着举足轻重的地位
它折射在世人身上也有着迥异的光景
当美式遇上轻奢
又会擦出怎样的火花呢
//关于业主
这家人给我们的印象是,家庭氛围好到令人词穷。
妈妈小名野小花,爸爸被称为小花哥,生出来的儿子便叫他小花仔,妥妥的一股子佩奇一家那和谐幸福味儿。爸爸的温文尔雅和妈妈的大方开明凑在一起,造就了一家三口的幸福生活。
在设计风格上,业主前期倾向装法式和美式的想法,经过设计师与业主沟通与分析,最终确定美式轻奢。风格确定后,设计师要考虑的重点便是,如何在这75㎡中创造出一个灵活的多功能成长空间,为小花仔的幸福生活添砖加瓦。
空间改造
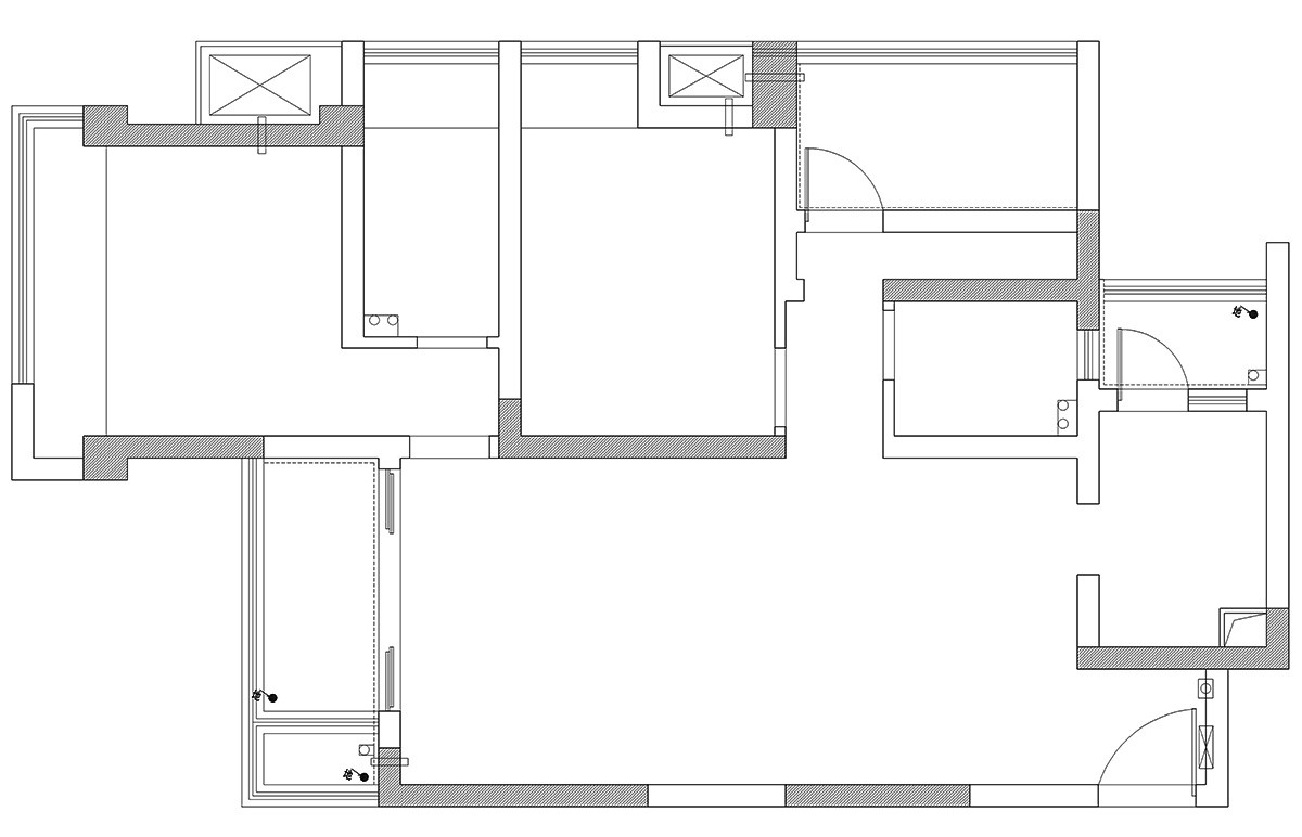
户型分析
本期案例是一套小户型,本身户型方正,房屋功能分区不需要重新布置,为了让空间更灵活,动线更通畅,设计师还是对空间进行了重新调整。
改造思路
1. 拆除厨房和餐厅、生活阳台的墙,把生活阳台的隔墙往厨房面拉平,做开放型厨房,让生活阳台的使用空间更大。厨房的调整让厨房原本的实际使用长度由3.2m变成6.9m,形成U字形布置,厨房的动线变得舒适,视觉空间也要大很多。
2. 把景观阳台纳入客厅,结合开放型厨房。把原有的26㎡的客餐厅调整为40㎡的开阔空间。
3.调整主卧的进门方向,一是为了拉大电视墙的饰面,提高视觉效果;二可以利用空间把零碎的过道整合,增加主卧的储物空间。调整后,原本3.23m宽的电视背景变成4.67m,主卧4.9㎡的储物面积变成8.4㎡。
4、主卫墙体调整,不影响实际使用的情况下扩大主卧的尺度,并让卫浴柜没有排污管的限制。
5.多功能房和儿童房都预留了阅读区,孩子的成长活动空间尤其重要,并且可能会随着年龄的长大而改变,因此儿童房预留尽可能的空间去满足以后的功能变动,但不管如何变动,多功能房都预留了阅读区。
客厅
LIVING ROOM
选用浅色系作为客厅的主色调,融合金属达到轻奢感。整体配色给人清新明亮的感觉,少许深色运用不显压抑反而更为吸睛。
厨餐厅
DINING ROOM
L型厨房操作台面节约空间,大理石花纹地砖配上墙面线条造型让空间更具层次,同时拉伸视觉效果。金属灯具、餐椅的加入,让空间更显质感。
卧室
BEDROOM
主卧及多功能房均采用低饱和度的色彩搭配,空间优雅时尚又不失明亮清爽。
卫生间
BATHROOM
项目丨中粮鸿云
建筑面积丨75㎡
户型丨两室一厅
风格丨美式轻奢
硬装设计丨DE设计事务所
软装设计丨D.ART软装服务机构
施工团队丨DE工程中心
DE设计事务所
客服
消息
收藏
下载
最近


















