查看完整案例

收藏

下载
这是东京龟户天神一家五口的房屋翻修。
它位于龟户天神神社附近,以葛饰北斋和歌川广重的浮世绘而闻名。春天,这里挤满了欣赏梅花和紫藤花的游客。客户习惯于每月第一天与家人一起参观神社,他们非常欣赏神社周围的环境。
在我们的讨论中,最让我们印象深刻的是他们将整个家视为“客房”。这对夫妇都是酒店爱好者和美食爱好者,他们想象着一个随时准备迎接和招待客人的空间。对他们来说,这次翻修的关键主题是“应该如何为客人设计家”。
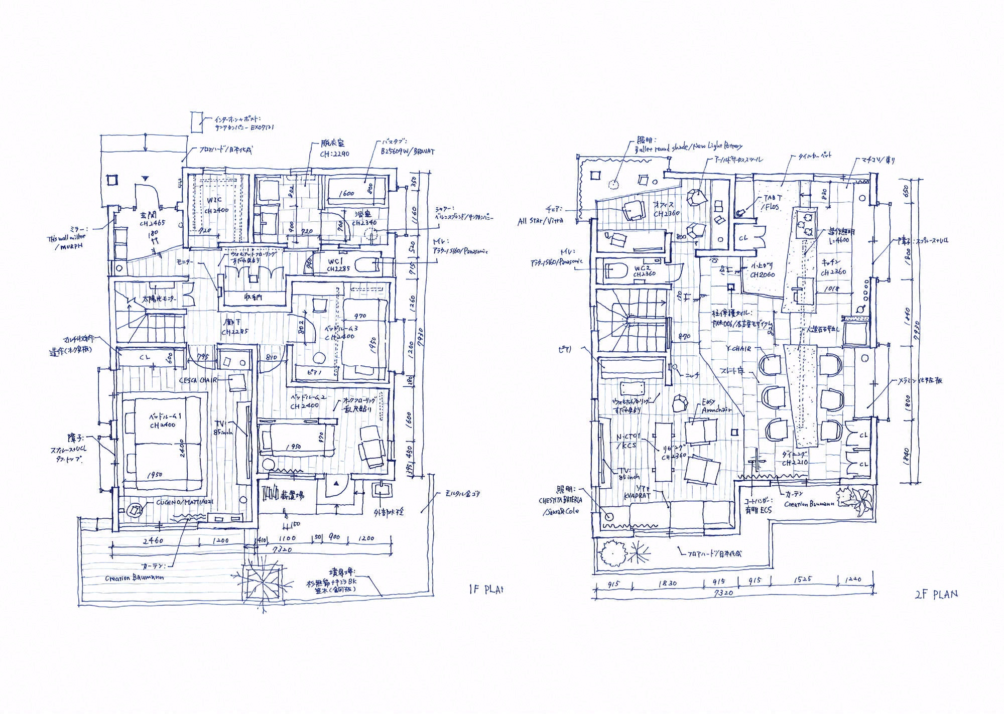
关于布局,一楼被分成几个房间,包括一个浴室和几间极简卧室。在二楼,大部分隔墙被拆除,形成一个宽敞的开放空间,最大限度地扩大了接待客人的面积。卧室采用橡木和雪松材料装饰,营造出一种平静的氛围,照明由床周围的线性灯控制,而不是天花板灯或灯具,提供所需的最小亮度。
与那间私人卧室形成鲜明对比的是,其他空间都用砂浆装饰,旨在让美丽的阳光从天窗倾泻而入。二楼前面的柜台以直线连接餐厅和厨房区域,上方是定制的 5 米照明灯向外延伸。这种设计灵感来自祈祷的手势,象征着客户对客人的体贴。
开关被巧妙地隐藏起来,以保持干净的外观。现有的窗户安装了障子屏风,将隔热与美观相结合。此外,现有的两根钢柱用石膏板覆盖,并用瓷砖保护,以确保其耐用性。
项目设计:HAGISO inc.
项目面积: 130.2501349m²
项目年份:2024
项目摄影:Keishin Horikoshi /SS
首席建筑师:Mitsuyoshi Miyazaki
设计团队: Yuto Murakoshi
项目国家: Japan
设计师:HAGISO inc.
语言:英语
客服
消息
收藏
下载
最近


















