查看完整案例

收藏

下载

翻译
KITTY BAR
主要設計:REVIEW WORKS
施工單位:REVIEW WORKS
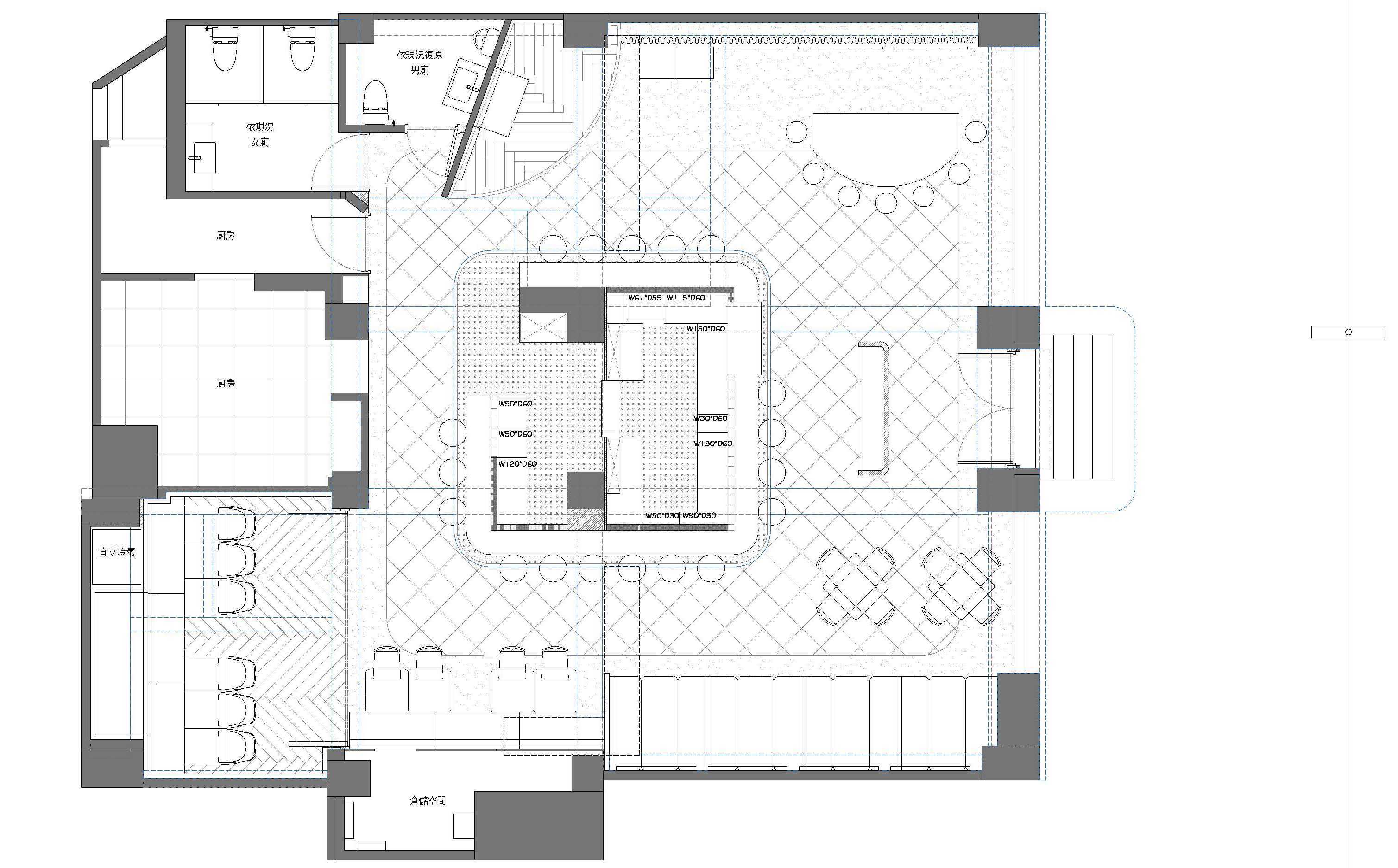
空間性質:商業空間
空間面積:44坪
主要建材:金屬美耐板,鍍鈦金屬,實木線板,PVC地坪
攝影:ANDY's Photography
【讓設計帶你穿越時空,讓我們陪你找回理想的維度】
大航海時代,渾厚的葡萄牙腔調說出 Formosa 道出臺灣的美! 也意味著地域上的限制隨著時光積累逐漸縮短 但最近這些日子, 我們不再期待離境只能回頭盼望過往的平靜安逸的時刻 才發現時間與空間在無止盡的在迭代總是無法控制 原來,將自己留在理想的維度裡才是最難的
在台北東區我們幫大家準備了一個秘密基地 門前是 21 世紀的台北,門後是 1970 年代美國西岸的經典 從門口的美式公路招牌,號召天下地帶你回味當代的歡愉 彷彿大亨小傳的電影畫面般,酒光十色地沉浸在古老美式的浪漫 一步之差,就優游在大型的 Casino 的裡 這裡是台北東區酒吧 - Kitty
我們想做的不是時光機, 但我們能做的是將你期待的時間與空間完整的交付給你 我們都值得活在理想中的黃金維度裡
客服
消息
收藏
下载
最近





















