查看完整案例

收藏

下载

翻译
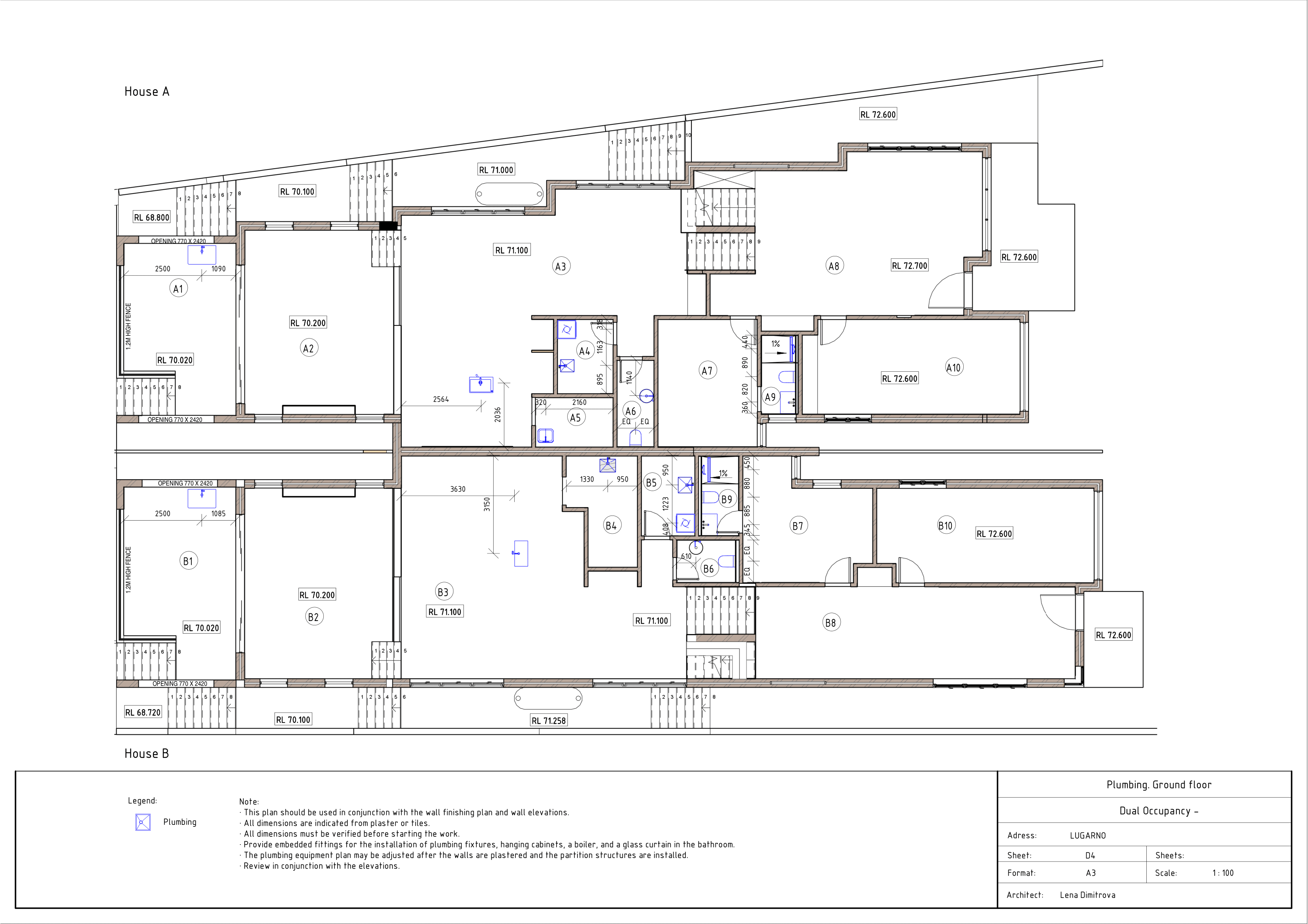
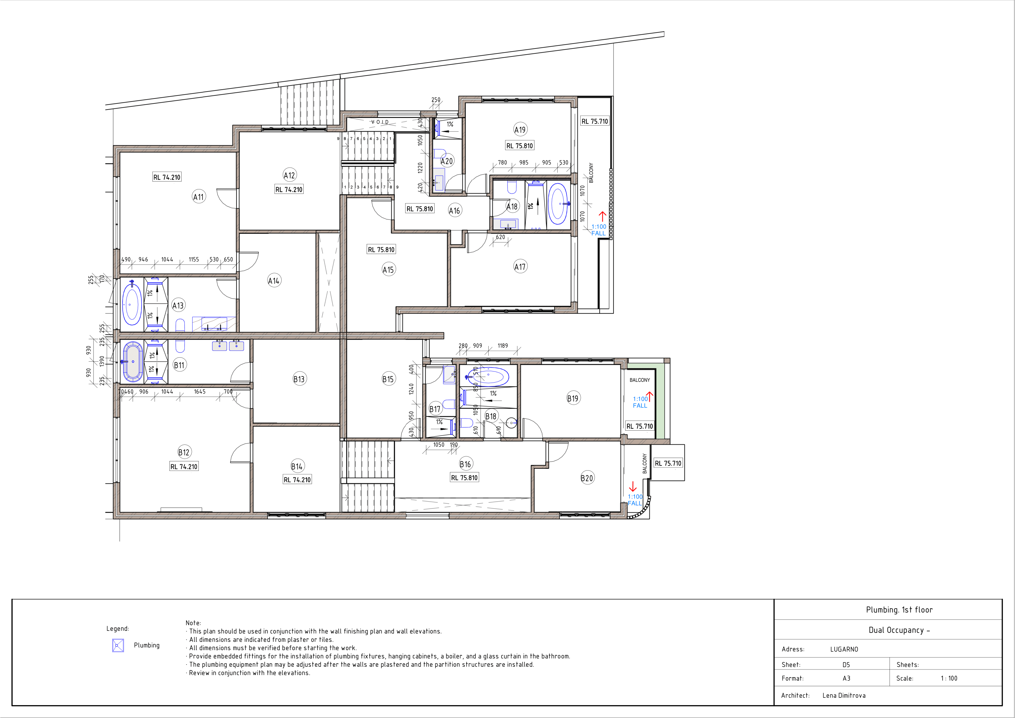
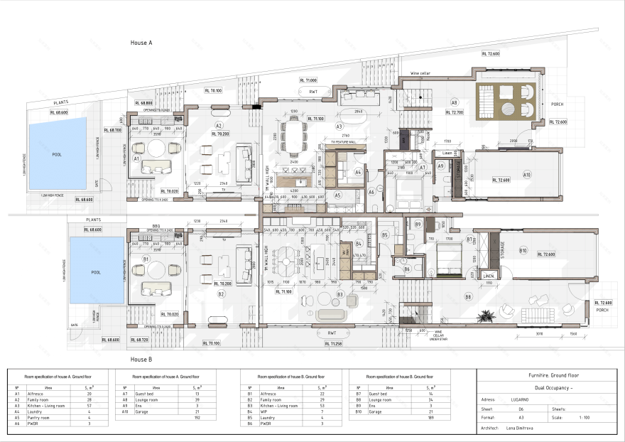
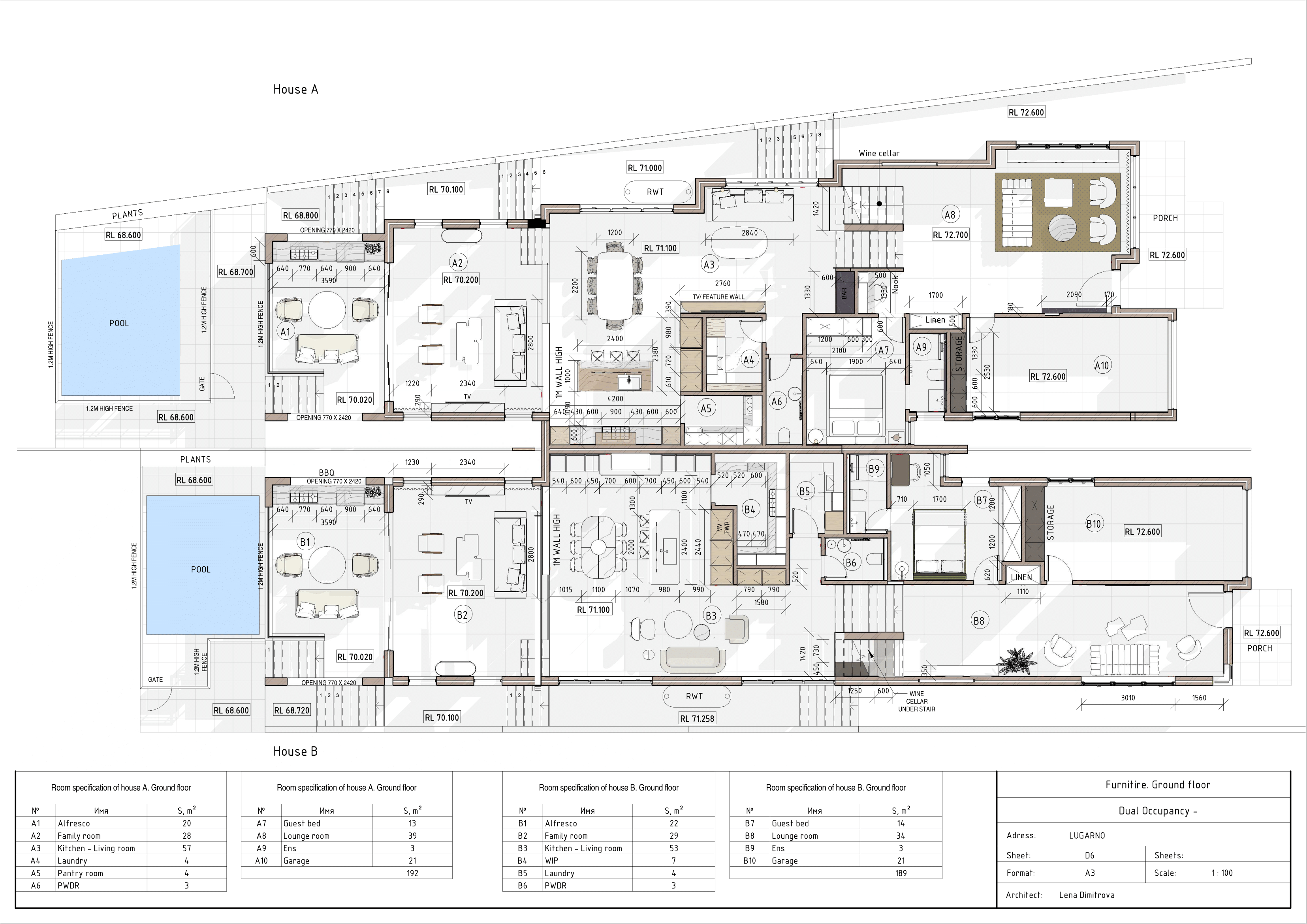
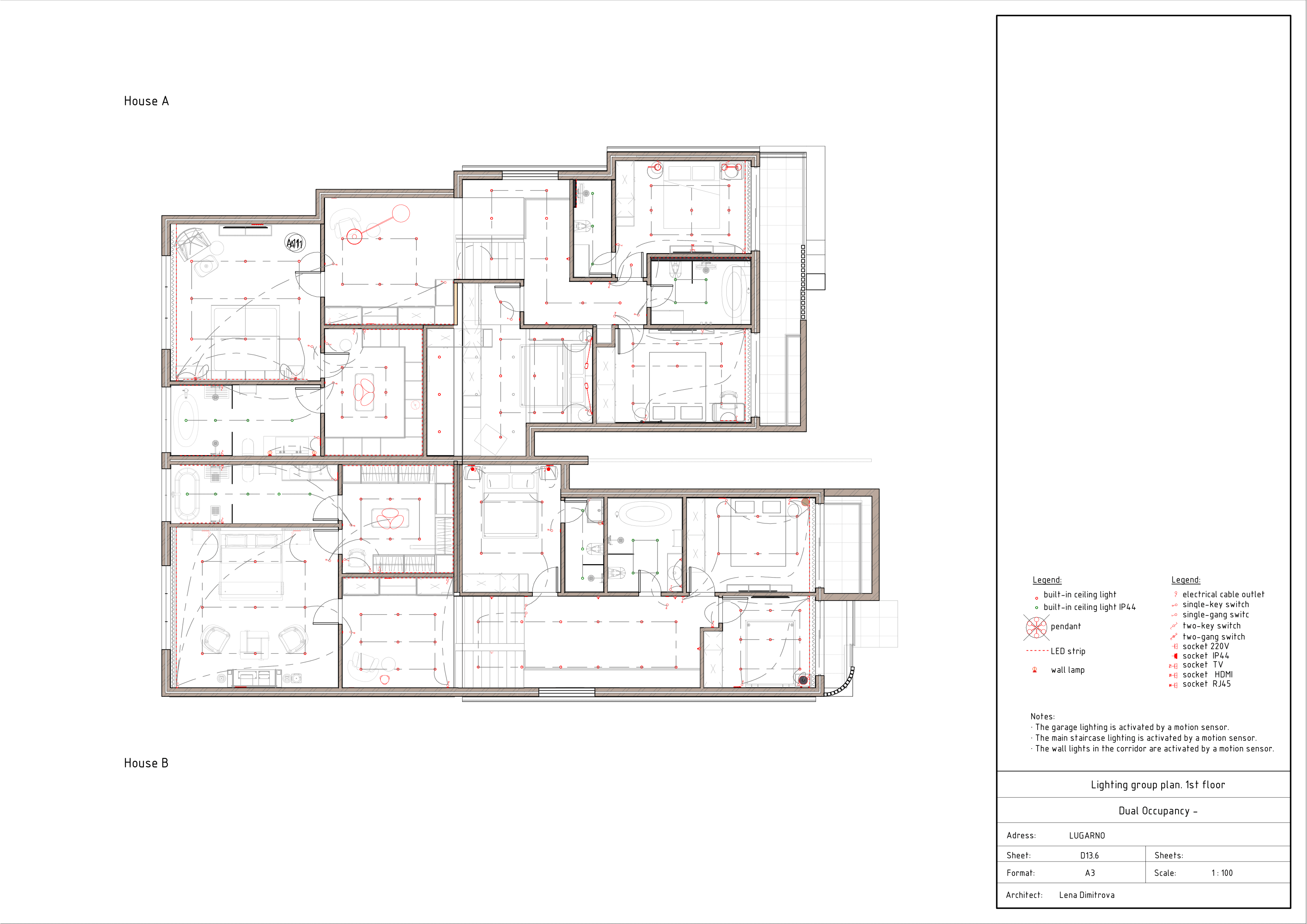
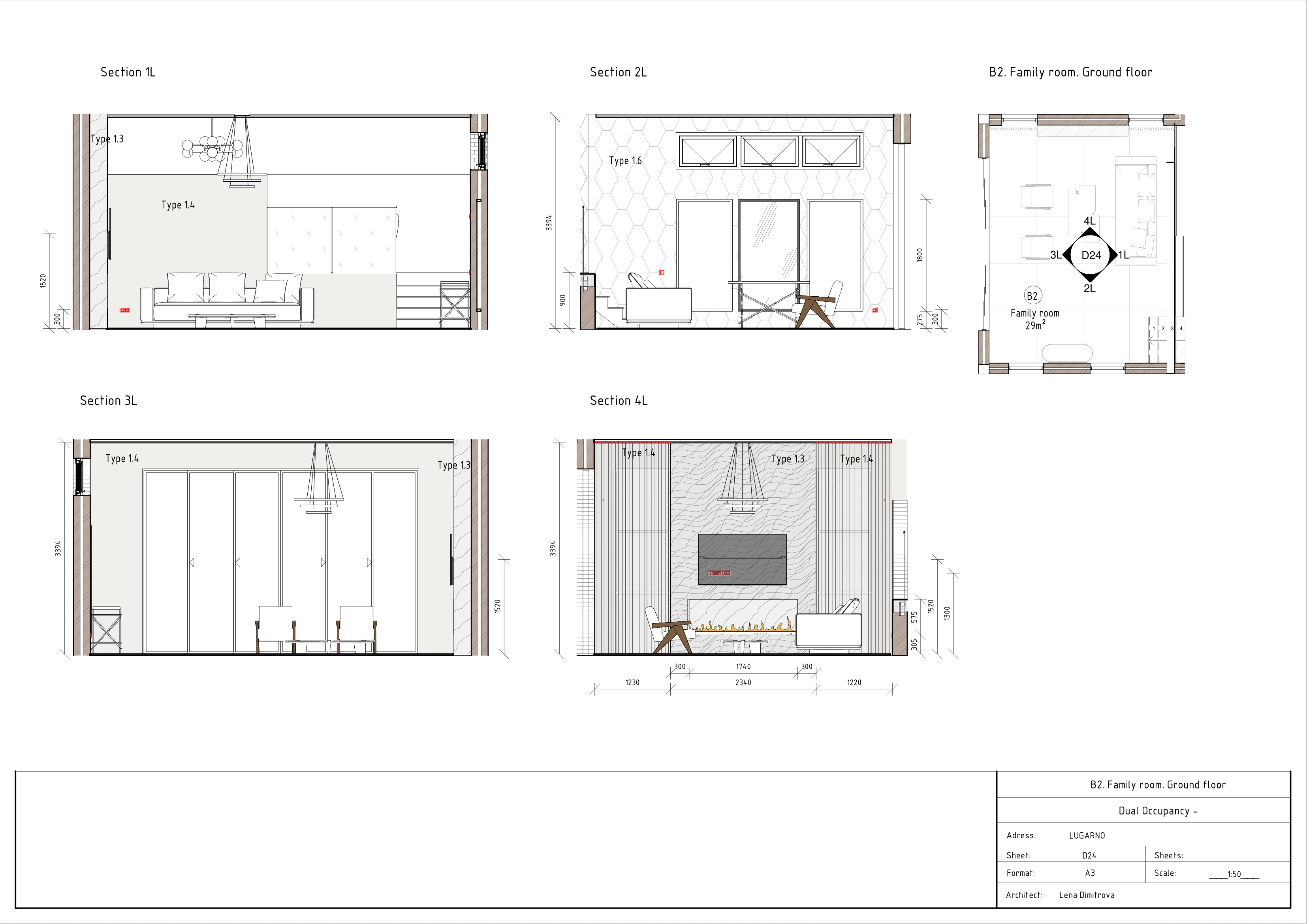
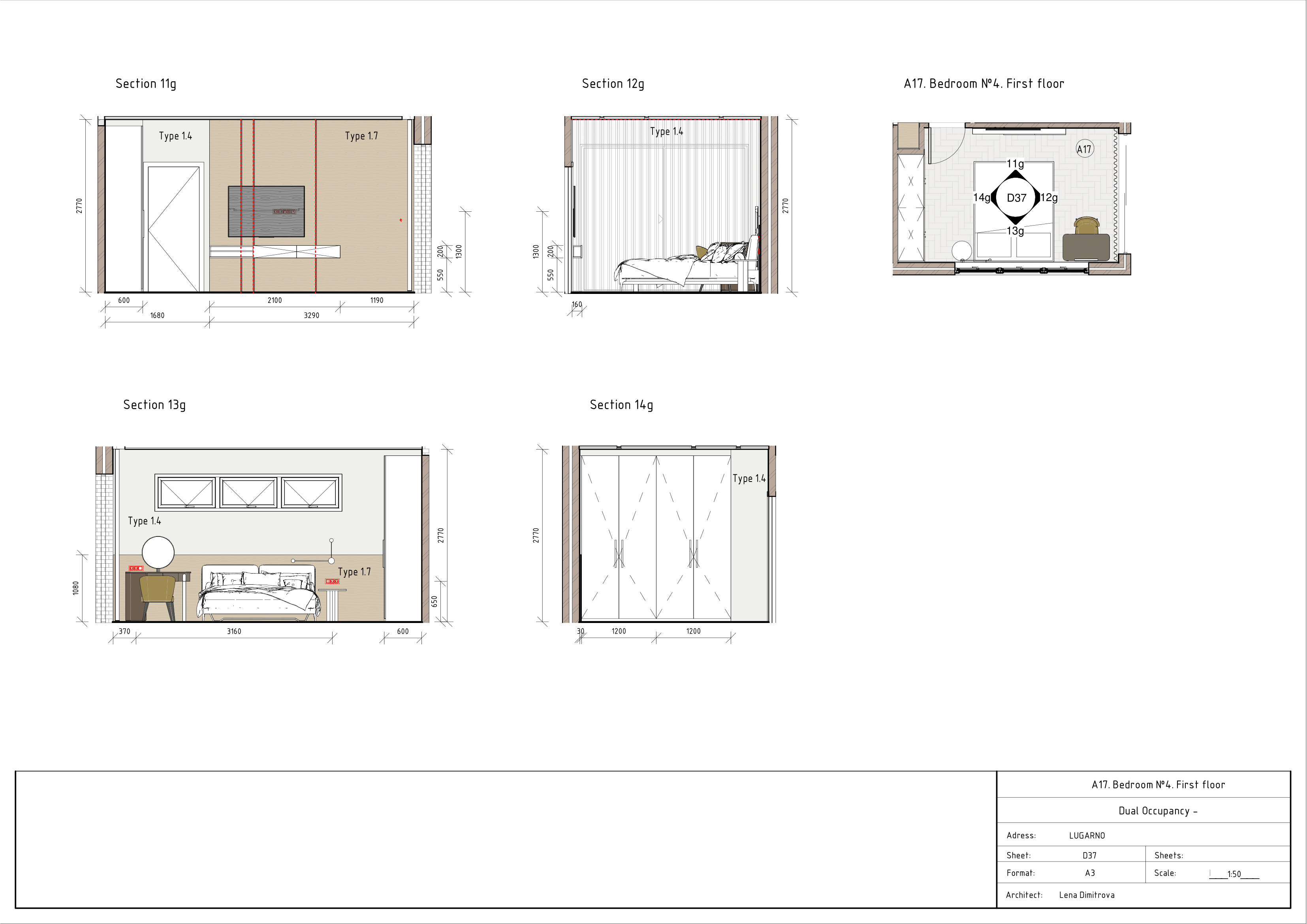
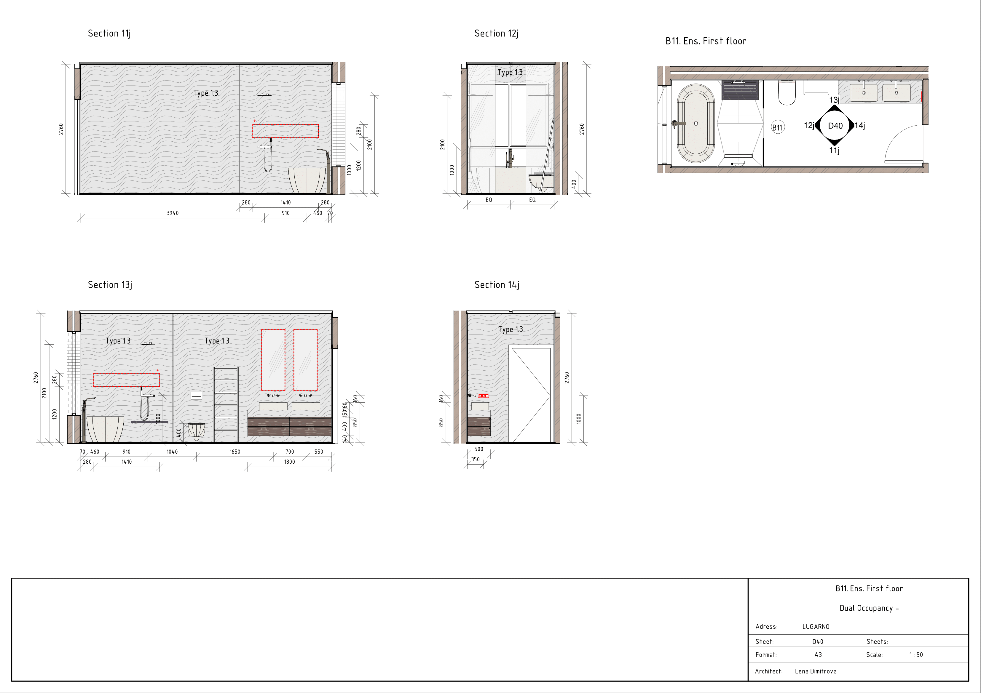
Duplex house
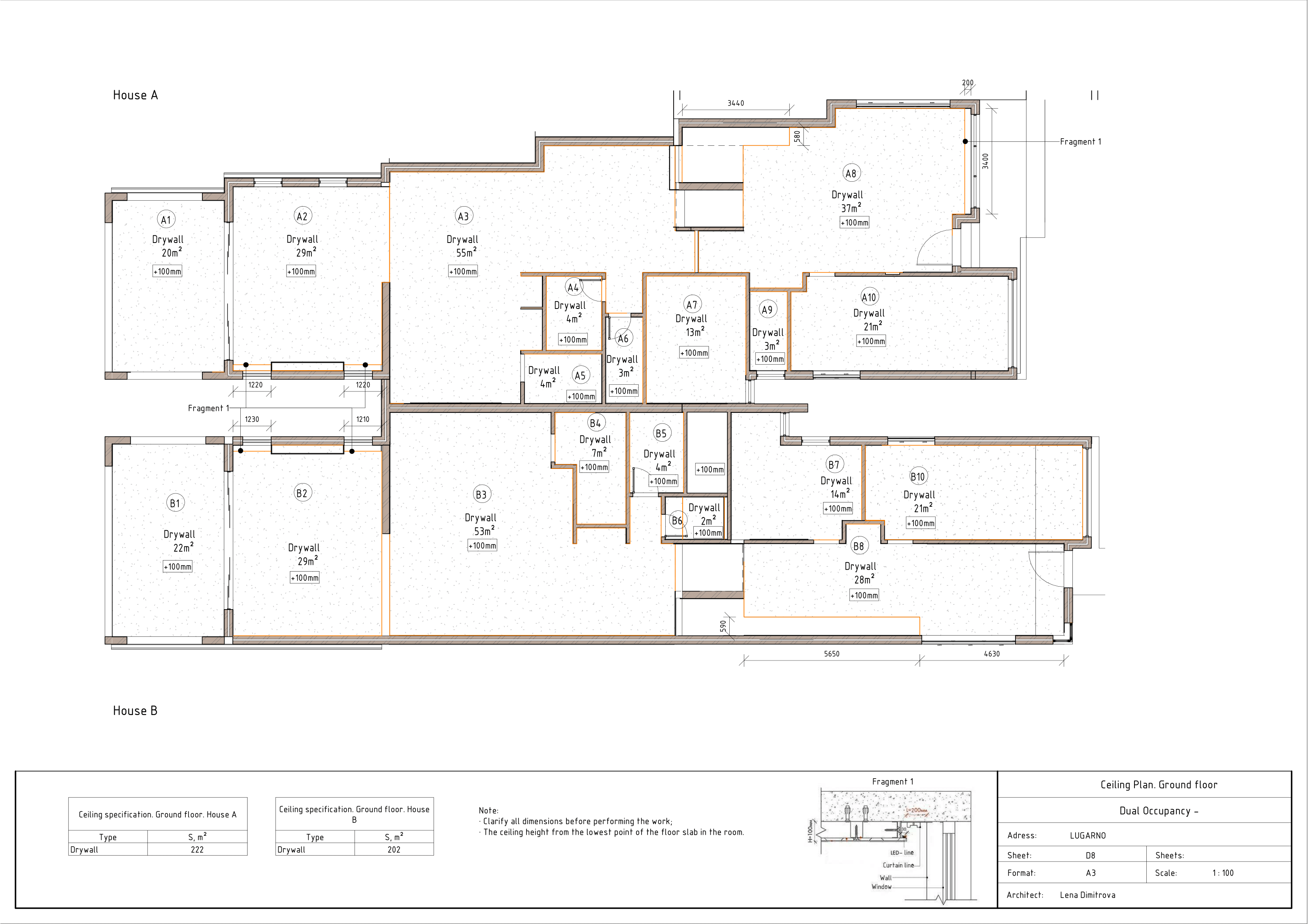
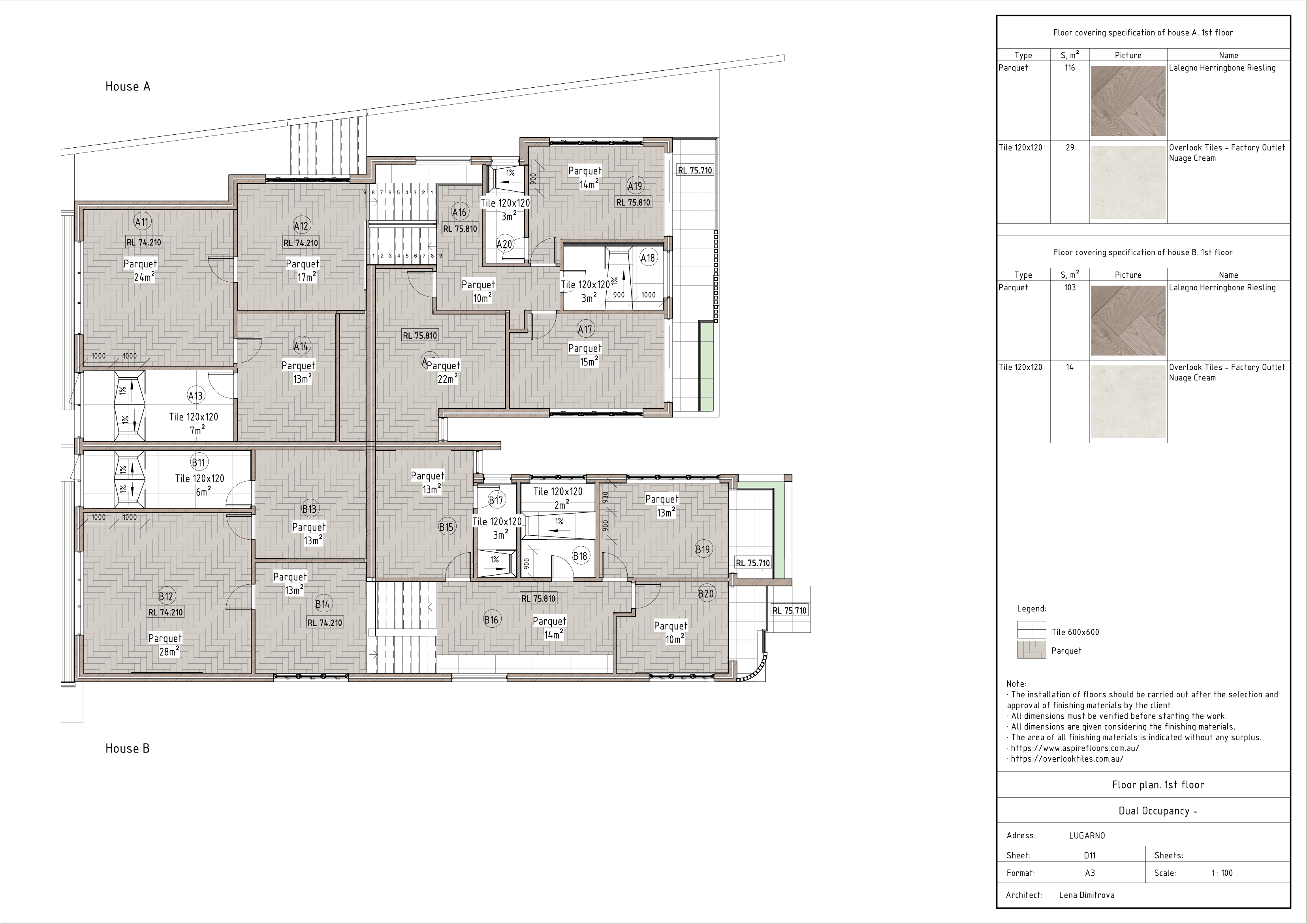
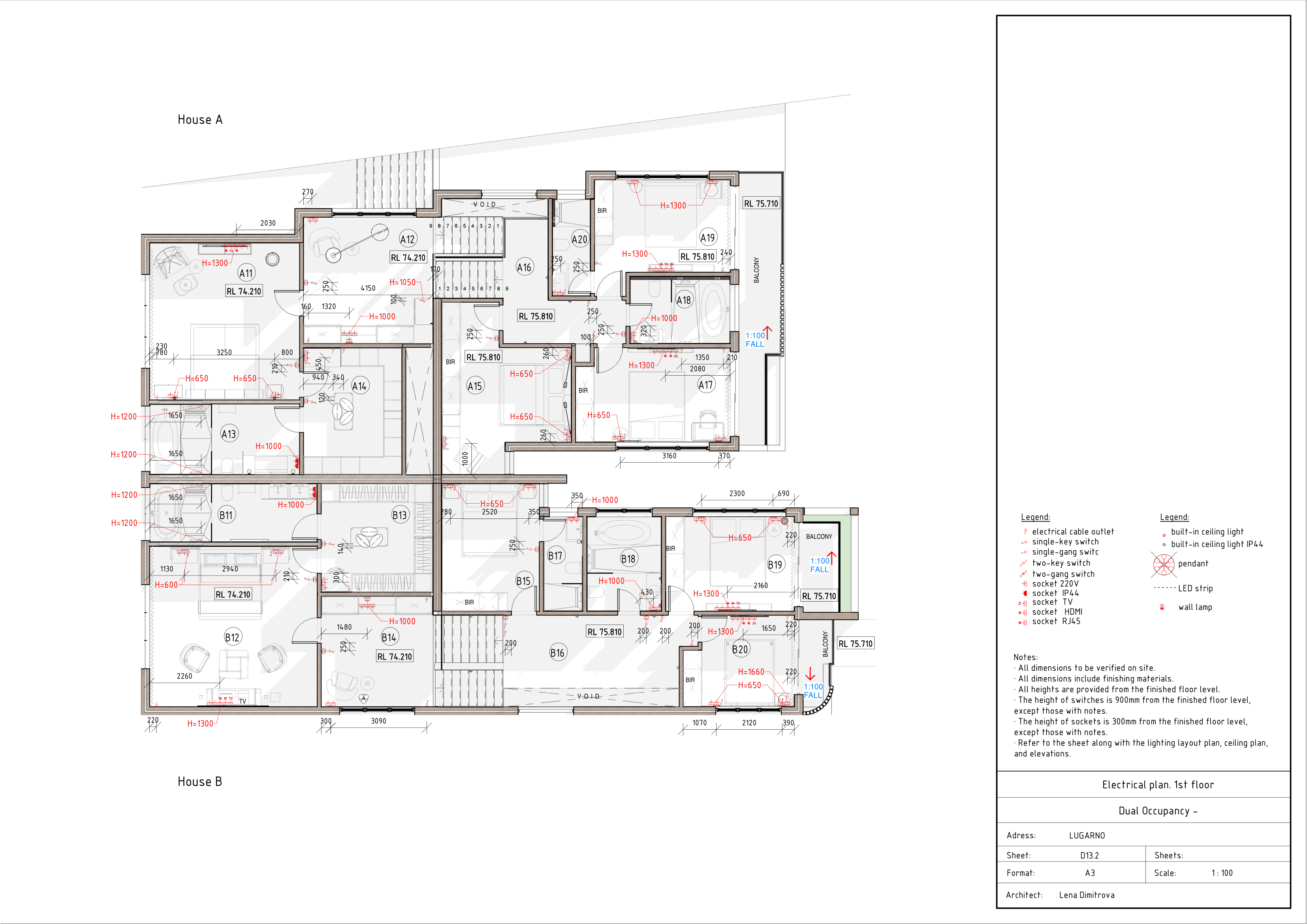
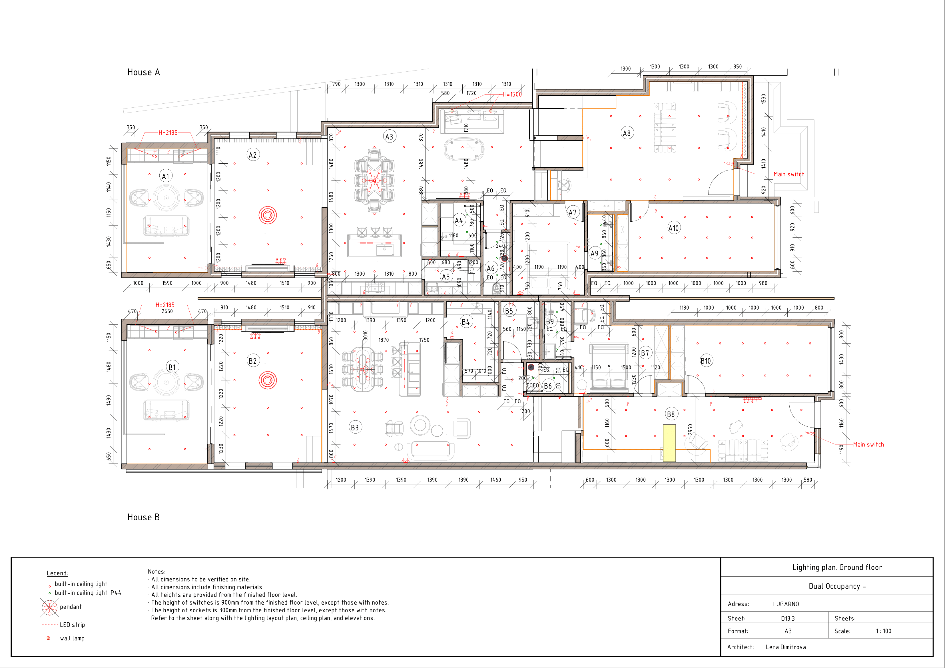
Presenting a modern duplex house project located in Sydney, Australia. Designed using Revit, this multi-level, stepped structure combines sophisticated design with functionality. The two-story house features a spacious living room and multiple leisure areas for maximum comfort. Each unit offers 5 bedrooms, providing a cozy living space.
________________________________________________________________________
客服
消息
收藏
下载
最近

















































































