查看完整案例

收藏

下载
这里是公寓社区的精神领地。不仅有丰富多样的交流空间,也有宁静惬意的独处角落。城堡是空间的主题,书是链接人与空间的纽带,多元的生活在这里共融,理想的情怀在这里栖居。清石设计负责的项目是坚果公寓的共享中心,主要服务于年轻的科创人才。
△坚果公寓共享中心外部
空间主要位于一个有挑空区域的地下一层,挑空区域外墙局部有玻璃幕墙可以采光。一层有一个独立的房间可供使用。
设计团队首先沿外墙加了一圈内挑的环廊,并在原有玻璃幕墙上开门联通,将共享中心的主入口和接待区从地下转移到地面层,最大化的提升了空间的可达性和整体体验。
△空间设计前后对比示意图 © QUCESS
环廊作为纽带,衔接了接待、运营、洽谈、书吧、聚会、游戏、健身等各个功能区域。
△坚果城堡示意图 © QUCESS
空间以下沉的城堡为概念,环廊作为城堡的外城墙,中心是破土而出的坚果城堡,直通到顶。
中心城堡整体以木质的形态呈现,各个朝向都设计成不同的形态。设计团队根据现场高度,特意调整出各种不同的拱门尺度,让整个空间显得有趣而生动。
△坚果城堡© QUCESS
走近城堡,不同高度大小的拱门在视线上相互圈套,给人带来丰富的空间体验感。
△大小不一的拱门© QUCESS
城堡内部空间以星光书廊作为主题,一部楼梯位于中心,直通环廊,楼梯的四周嵌入书架,这里是社区共享空间的精神内核。
△楼梯© QUCESS
△星光书廊© QUCESS
沿着一层的环廊,视线从外而内穿透过错落的拱门,会呈现出苏州园林 “远近高低各不同”、小中见大的视觉效果。
△丰富的视觉效果© QUCESS
环廊的一层是沿窗设置的阳光休闲区,不仅为访客提供了一个舒适的休息空间,同时也成为社交中心对外展示的亮丽窗口,进一步增强了社区的互动性和吸引力。整个公寓社区的接待前台也在环廊的一层入口处。
△阳光休息区© QUCESS
△接待前台© QUCESS
环廊的一端,是一个弧形楼梯,延伸到地下一层。
△弧形楼梯© QUCESS
楼梯的底部布满绿植,将不起眼的角落,藏入一个“月光森林”,增加空间的美感与趣味性。
△楼梯下空间© QUCESS
环廊下,是温馨舒适、充满安全感的半月书廊。拱门元素与中心城堡相呼应。
△半月书廊© QUCESS
环廊的另一端连接着台球室与健身房。镜面元素让空间更开阔,球形空中小品作为记忆点更增加空间趣味性。
△台球室与健身房© QUCESS
健身房旁为多功能室,封闭隔音的环境满足公寓用户学习、办公、会议等需求。
△多功能室© QUCESS
多功能室的上方为赛博朋克风格的多功能轰趴馆,潮玩单品搭配橙青色调满足年轻用户视觉审美需求,彰显空间活力。
△多功能轰趴馆© QUCESS
清石设计团队致力于打造一个自然、舒适、充满活力的共享空间,充分满足年轻用户的审美需求和视觉识别度。如今,这里不仅成为了年轻人喜爱的社交场所,也显著提升了坚果人才公寓的品牌传播力。
未来我们期待与更多优秀的企业合作,为客户提供面向未来的可持续空间解决方案,共同创造更加美好的生活和工作环境。
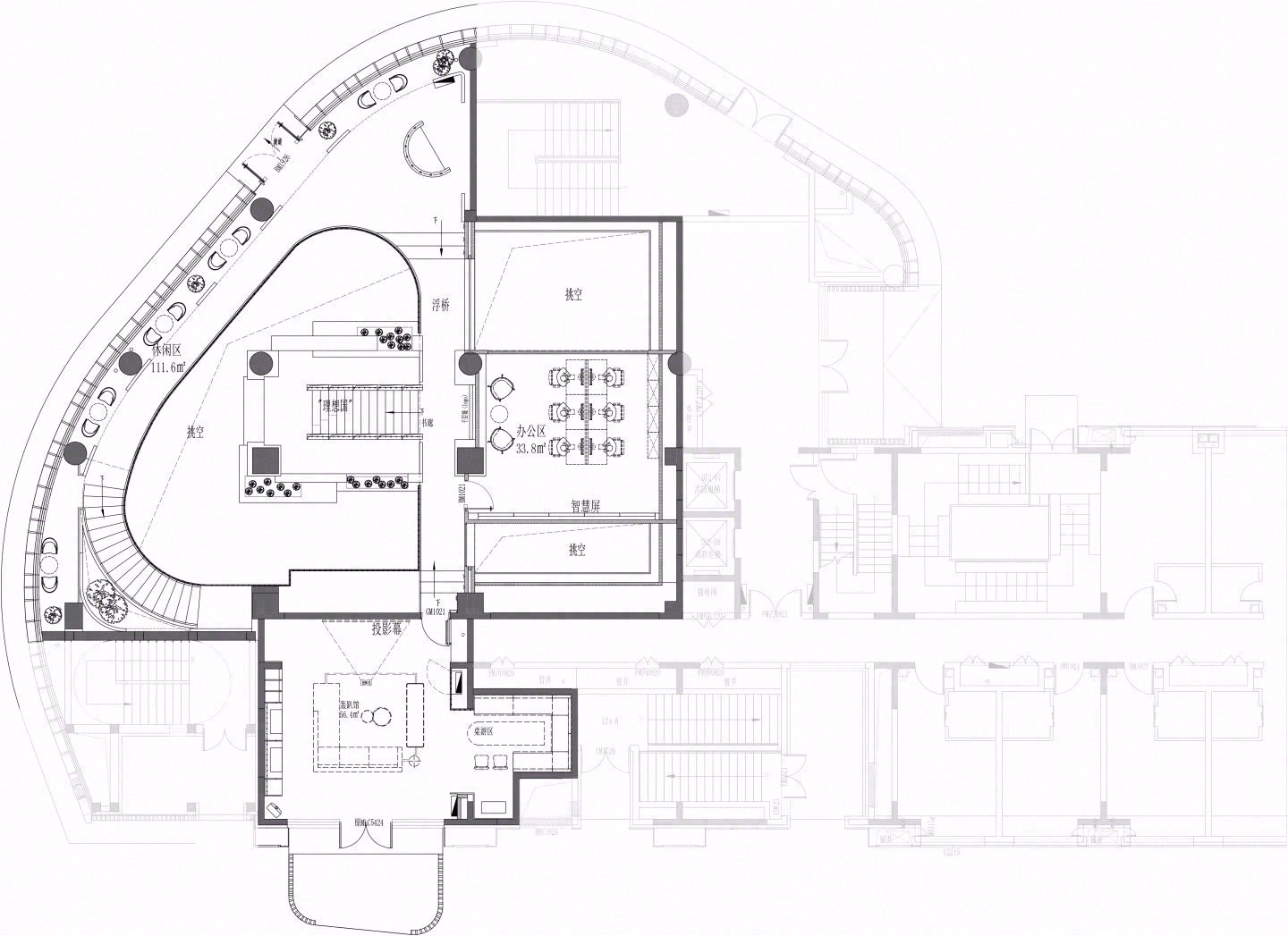
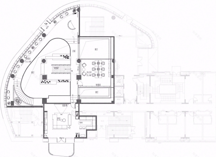
平面图 1F,-1F
项目信息
项目名称|坚果公寓共享中心设计
项目地点|北京市海淀区后屯中街8号院
项目面积|651㎡
项目时间|2023年
设计机构|QUCESS 清石设计
项目负责|钱国兴
主案设计|钱国兴
设计指导|李怡明
设计团队|王海申 韩张生 刘伟 莫宏琳
照明设计|高赞
项目摄影|UOHO|建筑空间摄影- 陈军
关于清石
由李怡明先生与徐瑛女士、吕翔先生于2005年共同创立的清石建筑设计事务所(QUCESS DESIGN FIRM),是一家致力于产业园规划与咨询、建筑室内一体化改造、办公及公寓空间设计、酒店会所等高端空间设计、软装设计服务的百人设计机构。2023年,清石成立专项办公空间设计品牌EcoWork。EcoWork通过专业的技术研发、精细化的建造标准升级,以健康为核心,兼具全球品牌优势及战略资源优势,为客户交付可持续、面向未来的办公场所解决方案。创立至今,委托清石设计提供优质空间设计服务的客户已超过500家。
客服
消息
收藏
下载
最近









































