查看完整案例

收藏

下载

翻译
Architects:Soltozibin Architects
Area:221m²
Year:2016
Photographs:Yoon Junhwan
Manufacturers:FILOBE,FLE P/J,HAY,Muuto
Lead Architects:Cho Namho
Structural Engineers:SejinSCM
Mechanical and Electrical Engineers:Codam Technology Group
Construction:Stuga Wooden Construction
Design Team:Cho Namho, Lee Heewon, Wang Seonghan
City:Dong-gu
Country:South Korea
Gwangju Chusajae - The client is a former forensic scientist in the field of dentistry at a nearby university in Gwangju Metropolitan City. Ahead of his retirement, the client wanted to build a house near the university. Building a house in Gwangju after retirement, far from Seoul, where the client's family lives, is an unusual choice. 'Nature and Book' is the key agenda for the client's new house. The site is located at the base of Mudeungsan Mountain and has been in the client’s mind for a long time. Mudeungsan Mountain is named after priceless due to its abundance of nature and size. As an extensive reader, owning 23 thousand books was another reason the client had for a new residence.
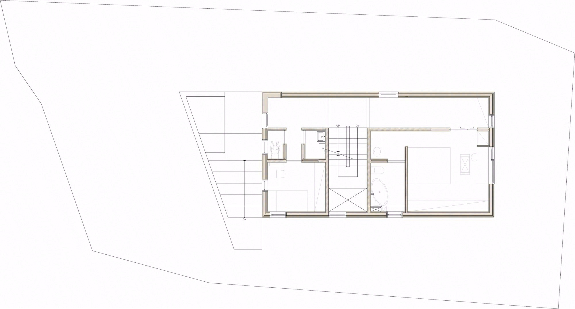
After going through the apartments, I found that the site is located right in front of the woods. The ground is even but is surrounded by tall trees and slopes, which creates an intimidating atmosphere—being under the circumstances of a building coverage ratio of less than 20% forces the building to seem like a simple object. However, the garden, surrounded by woods, provides a spatial sense. The low building coverage ratio has increased the volume of the house to three floors. Entering the front door which is half a floor below the ground, there is a guest room on the right with a small attic. Another half floor below, there is a library of 1.5-floor height. Facing the lifted slab, a high-sided window is installed for daylight. The bedroom is on the first floor, the middle floor, and the dining and living room are on the second floor where the ceiling is higher.
Terra Tectonic - Architecture can create residential areas by digging a cave from the ground or raising timber above the land. Located between the woods, Chusajae is built with wisdom from nature and 'terra tectonic' from the ground. Land and architecture meet each other in the two opposite attitudes. The first is reproducing the properties of the ground by reacting actively to the land. Transforming the surface and regenerating the land is done with reinforced concrete structures.
While the first floor is shifted up, the main entrance, which is sunken down half the floor, proposes a new boundary mixed with architecture and land. This structure is also an ingredient in the wall for constructing the area of land. Second, wood earns energy from the ground but also respects the land by having a minimum connection with it. The two-story volume, combined with a lightweight wood frame structure and a heavy timber structure, is lifted above the lower structure, beginning from the ribbon window. The lightweight frame wood exterior wraps the timber structure and is finished with copper plates of various widths, which will assimilate with the forest as time goes on.
Project gallery
客服
消息
收藏
下载
最近


























