查看完整案例

收藏

下载

翻译
Planning food court & Store for a gas station | Tunisia
Environmental Setting
Store - 3D Simulation
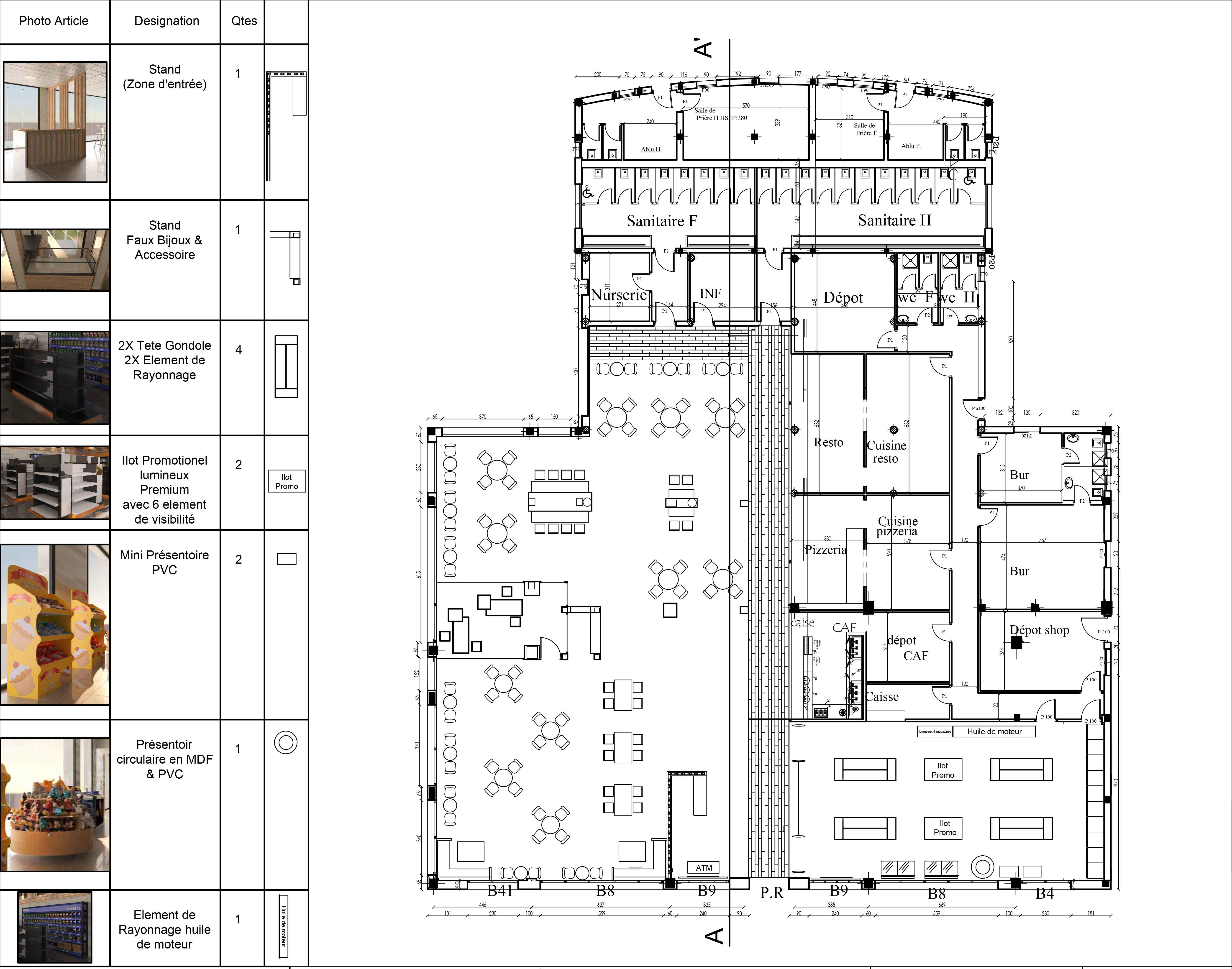
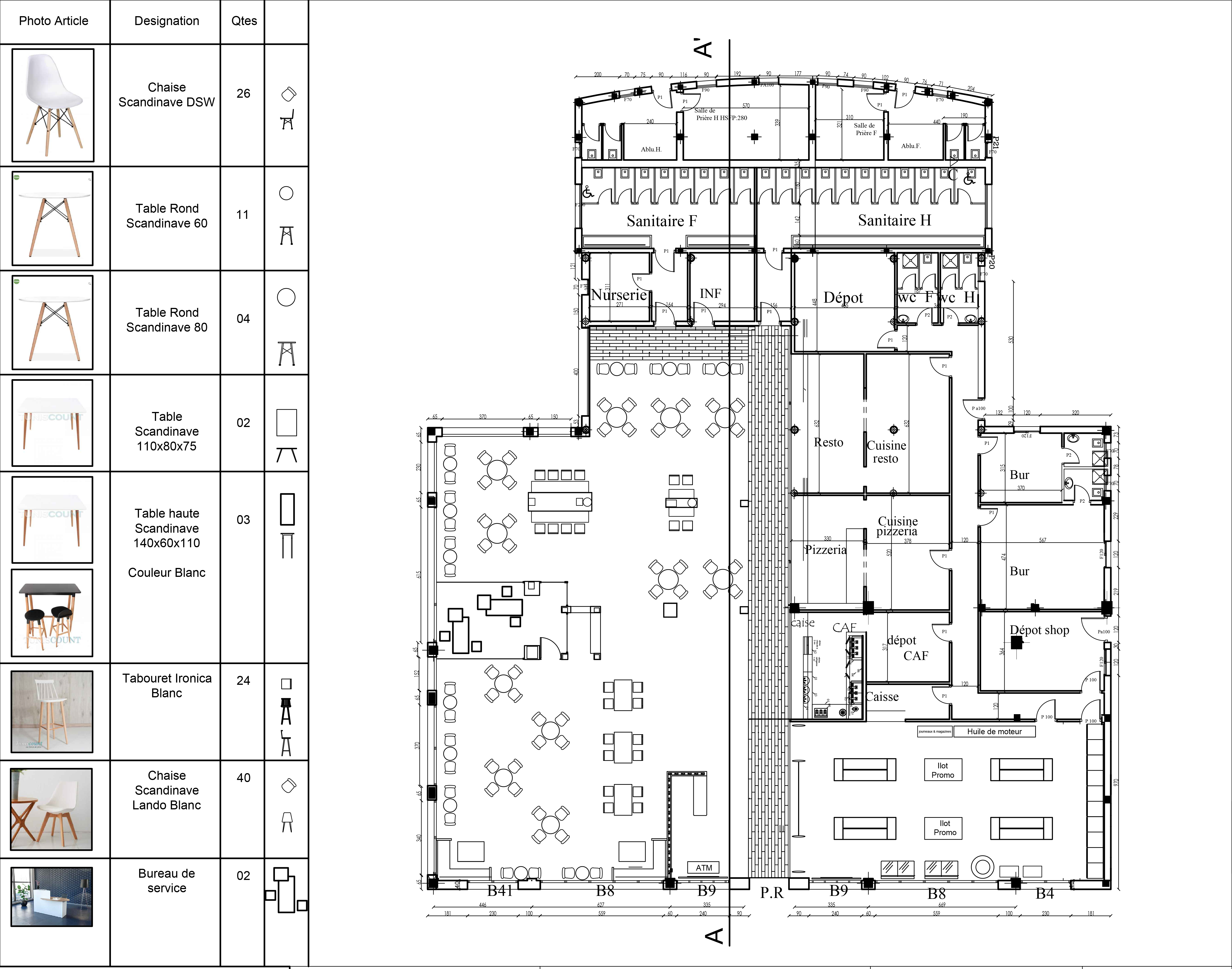
Store - Planning Layout
Food Court - 3D Simulation
Food Court - Planning Layout
Food Court - Electricity Layout
Interior Elevation
客服
消息
收藏
下载
最近


















