查看完整案例

收藏

下载

翻译
Architects:MODO Designs
Area:595m²
Year:2024
Photographs:PHX India
Manufacturers:Jaipur Rugs,Sarita Handa,Studioworks,Techtona Grandis
Lead Architect:Arpan Shah
Interior Designers:Projects 3.14
Landscape Designers:Dragonfly Farms
Associate Architects:Studio Blank Canvas
City:Gandhinagar
Country:India
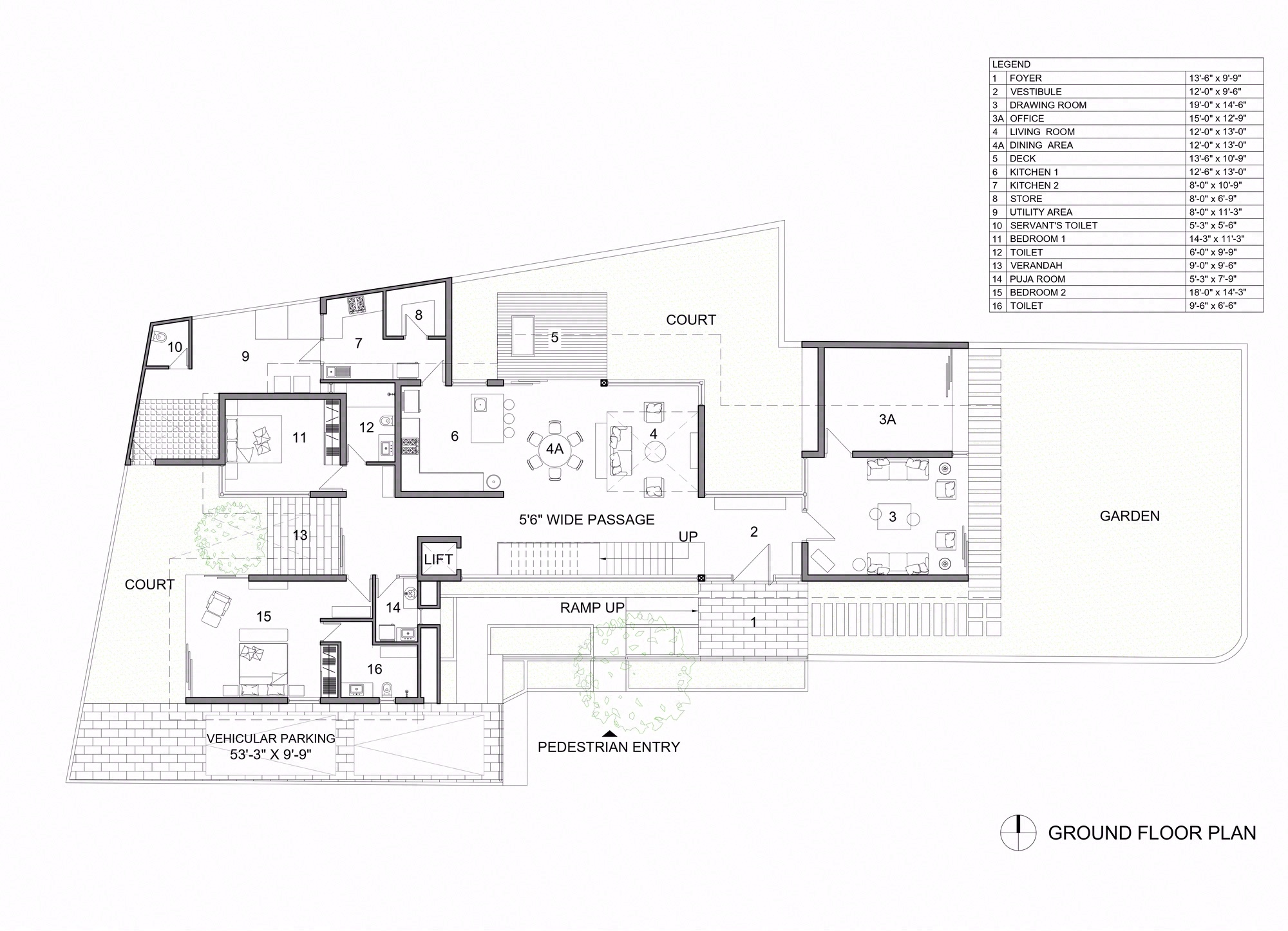
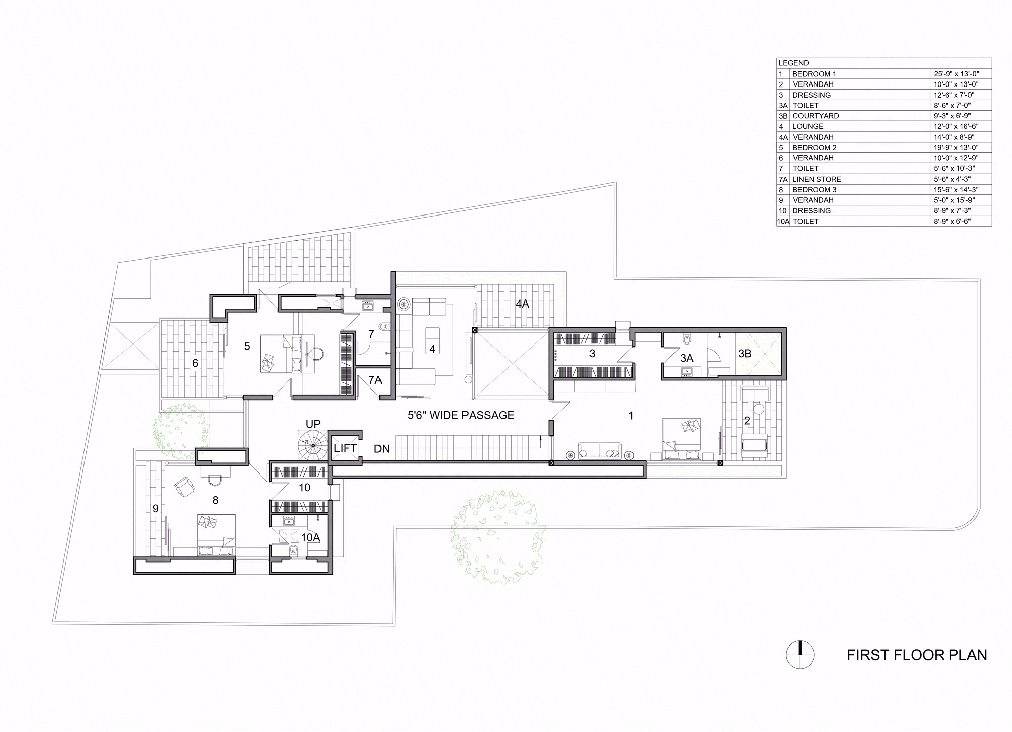
Text description provided by the architects. This house is designed for a Gujarati family of 5 persons in the city of Gandhinagar and adjoining an agricultural farm land. The brief was to create a dwelling where everyone is connected during the day and feel a space that is connected to adjoining agricultural farm.
The resulting organization is a concrete linear mass of horizontal and vertical expanse and spaces opening on the agricultural farm on east and private garden on north. The concrete mass carves out terraces on the edges and a double height space in the center.The layout encourages use of outdoor shaded spaces to enjoy the expanse of agricultural farm land.
The outer form is intended to have a stark formation carving out open spaces and openings responding to the farms on the north, the internal street on the south, and the private garden on the east. Externally, the house selectively opens in different directions to cut down heat gain within the house. It carves out spaces that are more shaded, and these become sources of light and ventilation, thereby relying less on mechanical illumination or ventilation. Also existing neem trees have been retained to benefit from shade it will cast in spaces below and on the vertical surfaces which keeps spaces more comfortable.
The external and internal materiality to keep in sync with simplicity of the city of Gandhinagar, where green spaces forms an integral part. The local materials have been used in form reclaimed valsadi wood in door windows and furniture, and kotah stone in flooring.
Project gallery
客服
消息
收藏
下载
最近




















