查看完整案例

收藏

下载
“边际”是空间的尺度,亦是人与环境交流的调性:或理性、或感性、或秩序、或烂漫……设计师精确把控着“边际”的曲直与角度,以毫厘之间的精准技艺调节空间的气息与质感。本案的构建是一次对“边际”的重新解读,主案设计师赖仕锦突破“以边界定义空间”的一贯思路,为作品延伸想象的境域。
当设计师与空间初次际遇时,便惊叹于周遭充足的自然光线及建筑本身敞阔的面积。但空间原本的空间零乱而无序,由此,设计师赖仕锦先生萌生了重构空间边界,将空间化零为整的想法。在本案设计中多运用半围合墙壁界分空间层次,以结构设计分割功能区域,让空间相互连通又彼此独立,人与自然在此间实现无拘地互动。
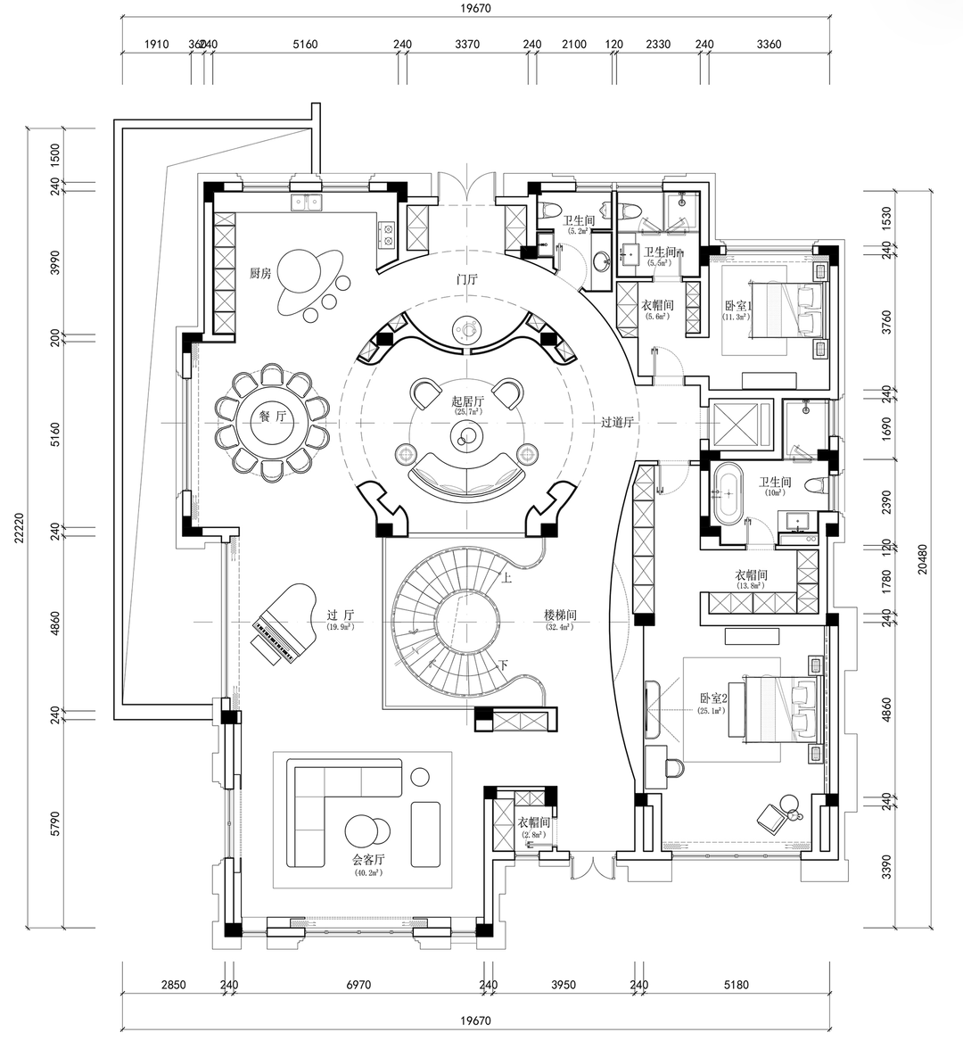
自然光穿过落地玻璃,揉碎在棉麻与植鞣的肌理之间,混合着柔和、宁静的材料与配色,为空间注入饱蘸暖意的光色。一层空间以正反弧形结合承重柱区分出门厅和起居室,设计师利用四根立柱塑造的弧形功能墙面组成了半围合的起居厅,与餐厅和电梯厅构成轴线关系并相对独立,光线从掩映的缝隙间穿行,成为串连起各个空间的线索,延伸无限的自然意境,以流动的姿态拨动人对空间的遐想。
沿着天顶洒落的光线向上生长,盘旋的楼梯犹如逐层拔节的树木,又如恣意舒卷的流云,在空间中盈盈漾开,抒叙一派雅然随性的景致。光影的韵律碎落在阶梯起伏之间,仿佛掠过琴键的音符,调和了梦境与现实的平衡,在静好悠长的时光中奏起绵绵曲调。
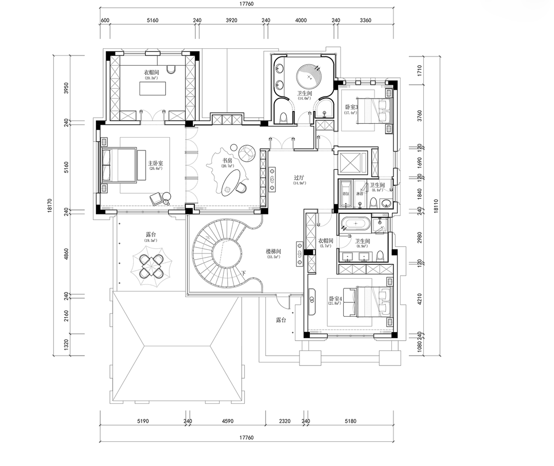
设计师将二层楼梯移位,建构出充足的主卧室空间。卧房与办公区采用反差色调,动与静仅凭一扇转轴门分野,内敛有序的深色硬木与柔和感性的浅白卧具动对峙、互渗、交融,让精神与情绪随室内的方寸无限延展。
边际漫漶的空间,恰如漫行无边的梦境,桥接虚幻与现实的成分,正是物材质感与色彩比例。设计师严格把控材料细节,以艺术涂料搭配原木饰面与天然石材,精准调配视觉上的刚与柔、冷与暖、虚与实,以富于匠心的笔触勾勒梦境的想象边际。
建筑大师Jacques Couelle曾言,建筑拥有自己的主权,不是人类规定的直角和光滑表面。在本案的演绎与呈现中,自由任然的曲度弧线重构了空间动线,让人如同信步于无边四野,感受光线与气流在室内相遇、交织。
理性内敛的黑灰色调与纯净素简的米白交界分明,潜移默化间勾勒出餐饮会客区与休闲区的边缘,动静交融恰如钢琴的黑白按键般映照交辉,相谐成趣。
晚星熹微,篝火渐明,挥散阳光与微风的喧嚣,地下层以下沉式结构打造的沙发休闲区更为舒适、惬意。在承重结构柱构成的半围合空间中,一切都充满的恬静的安逸感,在沙发中寻找一个最舒服的姿态,或与家人闲谈、或把卷阅读、或静静放空,升腾的火光与心绪一并浮动,敛默的光照同氛围一齐醺然。
负一层尺度开阔,面积近700㎡,设计师将住宅的休闲与娱乐功能重点整合于此。延续了以立柱与曲线虚构隔断的一贯手法,环绕中心的休闲区,阅读区、泳池、车库有序排列,连贯的弧度与转角消解了人工设计的刻意感,既强调了空间边界,又予人以返璞归真的纯然气质,增强空间与人的情感互动。
水无常形,随物拟态。将水纳入室内,即是让水在有限的空间中演绎无限的变化灵动变化。设计师在有形处消融刻板,于无形处定义秩序,以直线与折角的块面拉升泳池的高度,让水在形成深幽镜面的同时,在空间中归于秩序与节制,与自由延展的空间边缘形成对照,更突显设计有度,张弛之间,曲直之内,尽显艺术内蕴。
项目名称丨空间艺术馆
项目地址丨江苏·苏州
设计单位丨赖仕锦设计工作室
主案设计丨赖仕锦
参与设计丨马晶晶、汤兴平、许乃贵、吴丽莎
项目面积丨1300㎡
完工时间丨2023.12
项目摄影丨瀚墨视觉—壹高
确实很大气
第一张图 看着像展厅
不错不错,好的设计值得细细的品味
设计很大气
66666666666666666
很简洁的设计 空间构型很棒1
感谢楼主的分享
客服
消息
收藏
下载
最近






































