查看完整案例


收藏

下载
写在前面
“最开始让我接到这个案子,其实是一个意外”
去年夏天正热,意外接到一个转手的客户,在北滨路上有案子需要进行设计。屋主是三位年纪与我相仿的女孩儿,她们告诉我,想做设计师型的精品酒店。小小的身体里有大大的梦想,整个设计落成的过程中,我的设计热情不断的被她们点燃。然后呈现出来的就是这样的最终效果,我用22色描绘的一个我们共通的梦
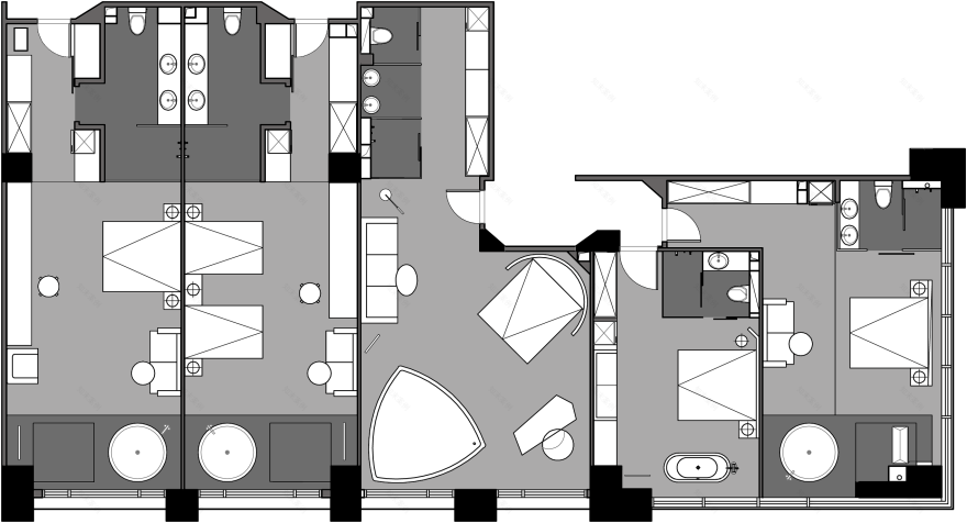
户型图▼
前台的功能相对就比较简单了,布巢,消洗,寄存,小厨房和休息区,初稿是把下方的墙面整个打掉对外的,后面因为各种不可抗力,而进行了调整
房间1▼
除开入户和卫生间,房间内部区域进行了垫高,用作分区
这边床头的造型,灵感来自于胡桃夹子故事里玩具士兵的脸
空间配色上运用了六个深浅不一的红色来进行协调(这个角度可以看到墙顶交接处连通的灯条)
设计了镜框的形状用来安置镜片,龙头处做了半墙砖防溅水,高度为1.2m,台盆定制的一体的双盆
房间2▼
给每个房间都配了#marshall 的音响,毕业照的时候边拍边听音乐,时间都过得快些
有别于前一个房间的暖调,蓝色的冷色调不那么适合居住,所以调和了茱萸粉和暖木棕的颜色进去中和。卫生间湿区做的紫外光色的夹胶玻璃(有色部分在两层玻璃的中间)这样比起贴膜,免去了起泡卷边的问题
这根棕色的大梁做了圆弧形的卷边,设置了灯带作为主照明,不去弱化而是强化了其在空间中的存在感,前期配色中这是我始终坚持的一个点,墙面延伸下来的部分,则是沙发和床的分界
取材于小时候玩儿的彩色积木,堆砌穿插,组合成想象中的样子
湿区做了80公分宽的半隔断,不开灯的情况下,整个卫生间会蒙上一层淡淡的蓝紫色滤镜,自带荧光色
有别于粉色的不储水设计,这边则是弹跳下水的连通单盆
房间3▼
吊椅
在初始方案中,这个房间风格定位为法式,后面统一整体基调而调整了,但仍保留了斜角对称的布局,把这个方形空间,最长的斜边利用了起来
在设计手法上精炼了墙裙和石膏线的形态,做进了这个空间,沙发后还有个挡住一半的金色圆饼,这块参照了弹珠游戏玻璃管里的弹珠
这个角度可以看到房间的全貌,休息区地面均涂刷的浅灰色地坪漆,而湿区的部分则是300×300的仿黑白格砖,为了防止穿帮,勾缝选择了 黑色。顶部斜十字的吊顶不只是美观上的考虑,也是为了削弱顶上交错的两根大梁。
床的靠背做成了黄铜色的圆弧形,早上起来就能看到阳光和静静流淌的江水
与其说是连续的拱门,真实的参考物则是孔雀漂亮的尾屏,而类似“眼睛”的象征物则是翎毛端头巨大的耀眼斑纹
值得一提的是在这次的设计中,我尝试着自己设计了几款家具。不是靠设计的直感拿别人的东西拼凑式的做一些好看就好的案子,专门为“它”而设计的,在“它”这里就是最好
最大的一个房间,选择了仪式感很重的三分离的做法,左淋浴,右马桶,中间则是双立柱盆和悬空镜子,吊顶呼应主题而做了拱顶。从颜色和形状,施工过程中,师傅都没少找我的麻烦,好在最后还是圆满落地了。
房间4▼
作为最小的一个房间,没有设置常规的沙发,而是做了连通烤漆置物柜的卡座,背后则是固定的幕布,有别于其他房间的电视而做了投影
这边的配色选择了红色的玻璃,为了拉伸视角,做了跨墙顶的线条,左边床头做了一个小小的折角设计
因为联想到上学时,化学实验课五颜六色的液体和透明的试管导管而有了这样的设计,被朋友吐槽像是七天配色,右边像是两个“氧气罐”……
房间5▼
这是视野最好的一个房间了,270度看江。希望能把视线更多的放在室外而非室内,同时也要充分利用这一份采光,而选择了黑白的配色,几个房间的窗户都订制了不同颜色的窗贴,算是对于商业楼不能更改窗户小小的反抗吧
床头板设置壁灯,背后留空,有别于绿色的房间,每天都能在阳光透过纱帘的照耀下醒来
做设计的过程中,以二维平面的角度来考虑每个面呈现的效果
床,浴缸,依次进行了垫高,分别加了160和200的台阶高度。而卫生间的台盆部分,做了全悬空的设计,镜子隔断台盆画好节点图,进行了一体化的定制,根据不同房间的配色,金属类分别选择了黑色和电镀的金色
镜子连隔断的部分,分别做了长虹玻璃,清玻璃和银镜,为了遮挡下水,靠外侧的台盆下方做了对外的黑色钢板,除此之外为了达到一体化的效果,石材则是做了纯黑色
玄关▼
前台部分其实是最早设计完成的区域,在设计之初,打了鸡血般,构思好了它的正立面。通过嵌入式灯形成一个闭锁的环,进一步弱化了天地墙的界限
水磨石的地台可以坐人,旁边的灯是我为了这个地方专门设计的。为了进出方便(也是为了省预算),布巢和消洗做了墨绿色的门帘
等候区的背后做了黄铜色的折叠屏风
正面的配色,画面中没拍到的部分还存在一组墨绿色的展示柜,左边的亚克力百叶窗未安装完
客服
消息
收藏
下载
最近















































