查看完整案例

收藏

下载

翻译
Location: Babeș-Bolyai University / Cluj-Napoca, Romania
Type: Hospitality / Education
Project Status: Concept
Project developed in collaboration with: ARS-VINCIT (Munich - Germany)
According to its Greek roots, a biotope is a synthetic word that combines “bios” (life) and “topos” (place), literally a “Place for Life”, or for Friedrich Dahl in 1908 si “the habitat in which a particular group of animal and plant species live”. By merging this definition with humans’ artificial habitats, we generate a new term: the “Urban Biotope”, to prove that humans and nature should work together for a sustainable future. Proposing the Urban Biotope project we want to offer the perfect fertile soil to plant the seed of innovation, culture, and progress.
Natural Inspirations
Cluj-Napoca City Hall and Babeș-Bolyai University collaborate to create an integrated urban development, harmonizing with nature for enhanced quality of life. The new University Campus is designed as a cohesive system supporting education, research, innovation, and culture, embracing the natural environment. Emphasizing the site's natural contours, we leverage water's transformative power, allowing it to shape the landscape positively. The buildings align with the land's natural slopes and seasonal water stream, minimizing land transformation. The open plaza between the structures follows the terrain, connecting nature and urban life. The result, Cluj-Napoca Urban Biotope Campus, reflects a synergy of human creativity and nature, fostering a sustainable future.
Energy self-sufficiency
Roof-installed PV systems supported by onsite renewable energies provide electricity to buildings, public areas and shared e-vehicles charging stations in the parking.
Heating, cooling, and hot water systems rely on geothermal closed loop piles and heat pumps for temperature and indoor comfort control. Our solar studies suggested the best orientation of the main buildings in order to minimise overheating during summer and energy saving during winter.
Air quality sensors, mechanical ventilation systems and natural ventilation ensure safety and the highest air quality standards.
A computer-based control system (BMS) allows a smart management of all resources.
Central Plaza
The central plaza is a multi-layered public place excavated following the natural contour lines.It hosts terraces, cafes and other - permanent or temporary - functions that support the effervescence of university life and attract the general public. This space can also be used by CLAS or UBB for the organisation of events. The square is exclusively pedestrian (accessible only during emergencies by fire brigades, police, and ambulances) and brings together the different elements of the surroundings: stone, water, and vegetation.
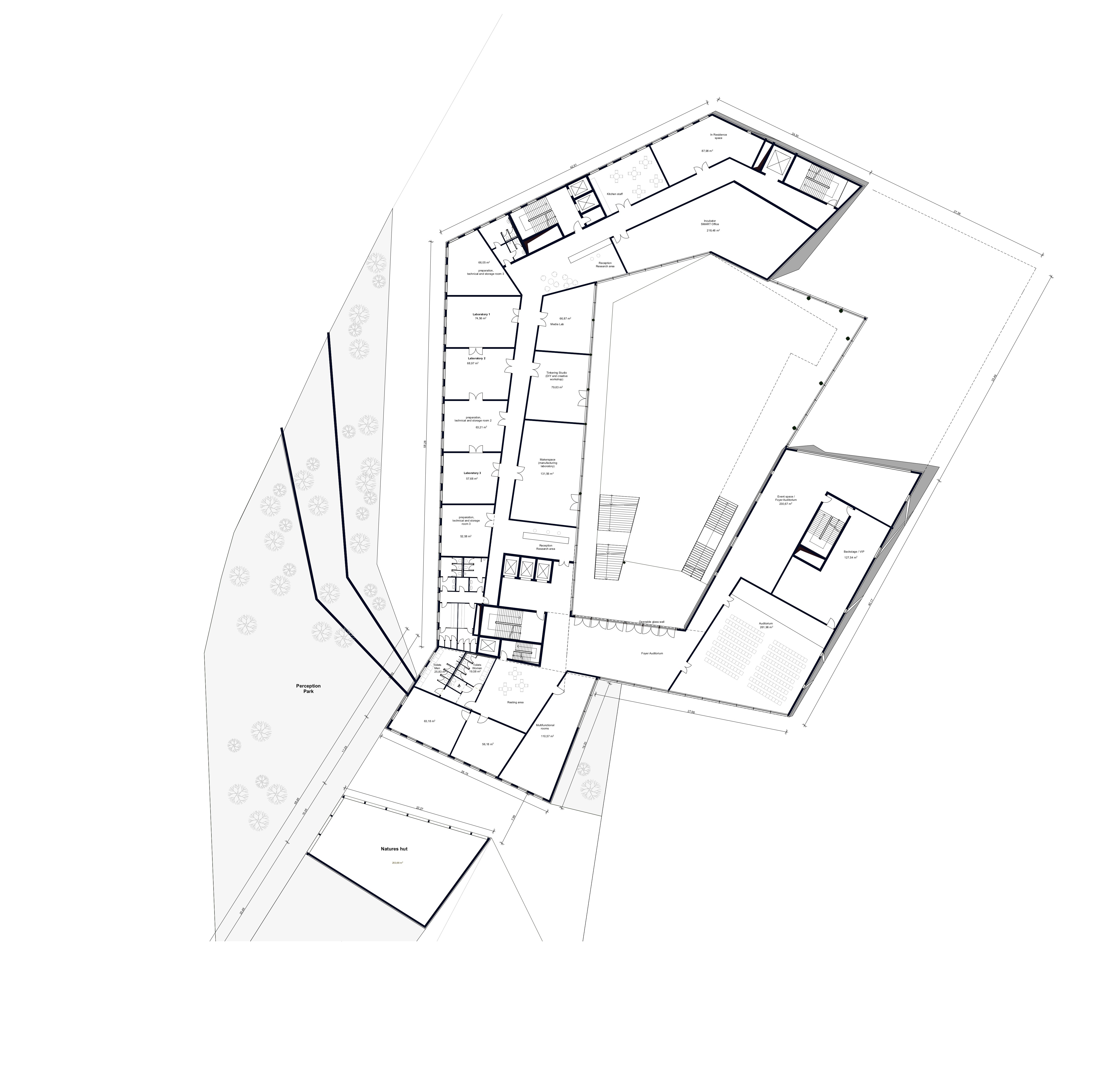
InfoBioNano4Health Platform
InfoBioNano4Health platform grows from the landscape and opens its transparent and terraced facades towards the city. It works as joint Research and Innovation Centre with the goal to develop connections with regional areas of smart specialisation, in a Quintuple Helix innovation paradigm, which involves the interaction and exchange of knowledge between five subsystems: (1) research and education system, (2) economic system, (3) environment, (4) civil society and (5) political / administrative system.
The building expresses the idea of integration and collaboration through its shape. Transparent bridges and green roofs allow people to experience the build from different perspectives.
Such an approach creates a favourable environment for creative thinking and innovation, an environment in which enterprises (especially SMEs, but also start-ups, spin-offs), universities, research centres and civil society actors can co-generate innovative products (goods and services) and processes.
Other activities can be carried out throughout the innovation chain - including training and education programs and a range of innovation support activities - as well as related, complementary services - incubation and acceleration business - strengthening the path from research to market and generating sustainable innovation projects with a market impact.
Faculty of mathematics-computer science
As a stemless landscape gesture, the Faculty of Mathematics and Computer Science connects to InfoBioNano4Health and becomes part of both the landscape and the urban area.
The goal of the Faculty of Mathematics and Computer Science is to bring together the classroom’s areas with the research rooms with a specific focus on common areas for collaboration between students, teachers and researchers, entrepreneurs, and civil society.
The faculty as a whole, includes a five-hundred-seat student dormitory, reflects the essential role of mathematics in the education and development of STEM+ fields and it aims to propose a model of academic daily life experience that will attract and support research and innovation.
The astronomical observatory and the planetarium are on the last floor of the building and, with its transparent and movable roofing system, is a focal point for the university with open spaces to the general public. The observatory illustrates the perennial interest in understanding the universe, proposing ways in which architecture can actively participate in its learning process.
Centre for Life, Art and Science (CLAS)
The Centre for Life, Art and Science (CLAS) expresses its relationship with the surroundings through its dark monolithic façade that appears as a cut-out rock open on the Norths-East Corner.
The building is designed around its central void imagined as a flexible and poetic exhibition hall. Here, thanks to a system of ramps and staircases the ground floor level is directly to the roof and the outdoor spaces.
The Interior Hall is naturally heated by the openable roof glass that, during the winter season work as “green house” and during the summer seasons allows the air to flow thanks to cross ventilation strategies.
Student Dormitory
The dormitory, house for 500 students initially and doubling its accommodation capacity, has been designed as a flexible and modular structure able to grow its capacity with time. The dormitory proposes a co-housing model that completes the learning experience of students with a living experience that allows them to withdraw in their private space but also to facilitate social interaction. The rooms are efficiently designed to minimise the space and maximise the comfort with a private bathroom and a small kitchenette equipped with an electric hob and refrigerator.
On the ground floor and on different levels and common areas with kitchens, dining rooms or simple meeting rooms, group study rooms, etc. will complete the program of the building and promote the idea of a dynamic student community.
A local water cycle
Our water cycle strategy relies on five principles:
1 Reduction of water consumption
2 Collection and reuse rainwater in a cradle-to-cradle cycle
3 Installation of dedicated networks for potable, grey-water, and black-water
4 Recycle of grey-water
5 Recycle of human waste and black-water.
The central water stream and the little ponds are a visible expression of these principles giving to the people on site a fresh place during summer months and a constant flow of fresh water throughout the year collecting rainwater from building roofs and pavements.
Water saving fittings and micro-flush composting toilets create a network of devices that reduces water demand. A community harvested rainwater cistern supplies part of the dwelling’s water demand. Humanure fertiliser and leachate are used to feed local food production for the community.
客服
消息
收藏
下载
最近




















