查看完整案例

收藏

下载

翻译
Project Type: Historical Building Renovation
Year: 2022-2023, 2nd Year Project
Evaluation: A+, KR
Supervised by: Prof. Mo'men Afify, Prof. Alia Elsadaty, Prof. Nasamat Abdelkader, T.A Aliaa Shokry.
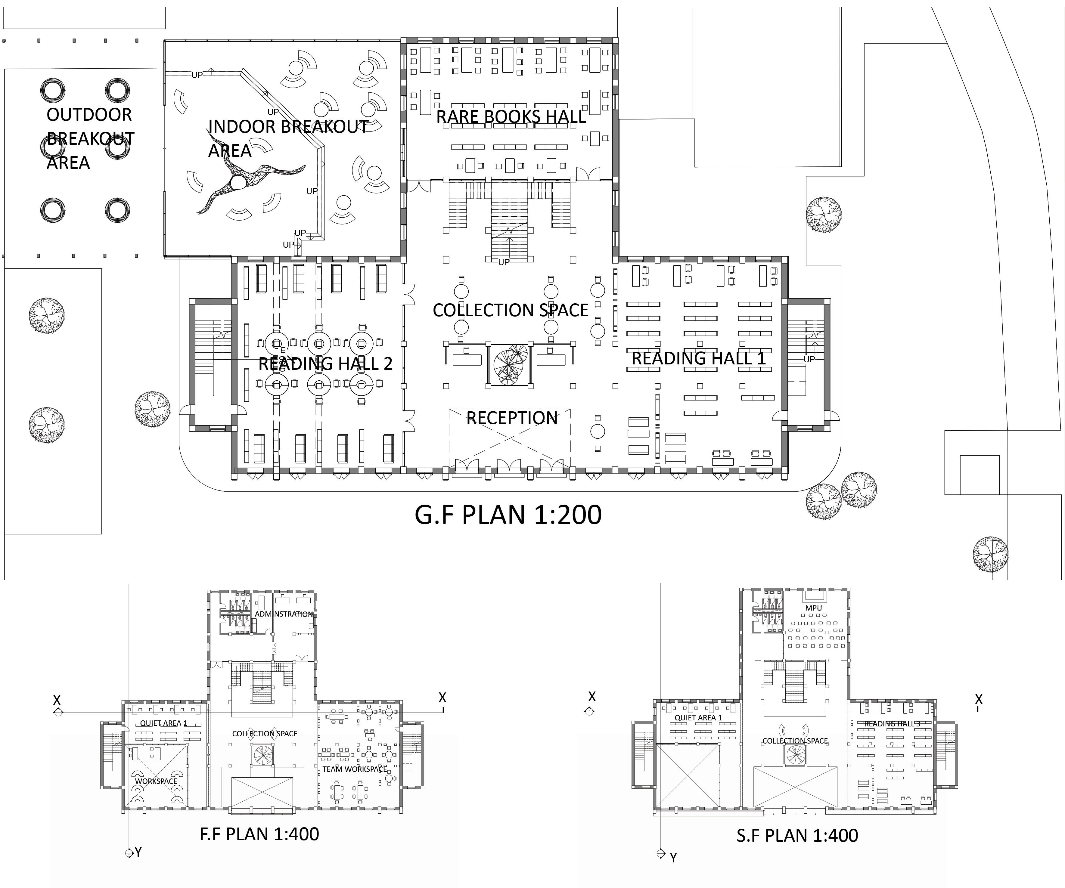
Concept: The Faculty of Engineering Library building in Cairo University has been around for almost 100 years, The challenge of renovating it transcends mere architectural refurbishment; it aspires to breathe new life into a historical landmark, redefining it as a dynamic center for learning, socializing, and exploration. By introducing strategically placed outdoor breakout areas, we provide students with inviting spaces to relax, collaborate, and engage with their surroundings.
Floor Plans
Elevation and Section 1:200
Exploded 3D Zoning
Thank You for Watching!
客服
消息
收藏
下载
最近











