知末
知末
创作上传
VIP
收藏下载
登录 | 注册有礼
知末案例   /   餐饮空间   /   咖啡店   /   现代咖啡店

云弥散咖啡馆设计

2020/01/17 00:00:00
查看完整案例
微信扫一扫
收藏
下载
云弥散咖啡馆设计-0
说在前面
介于咖啡馆与家之间 这里没有音乐 没有社交 以及咖啡机的尖叫 小睡和饮食,打字和读书 简简单单安安静静 推门进来的不速之客 点了一杯咖啡 打扰我正在写的一首诗 她比这首诗重要 她弥合生活 填补了分行之间的 空白
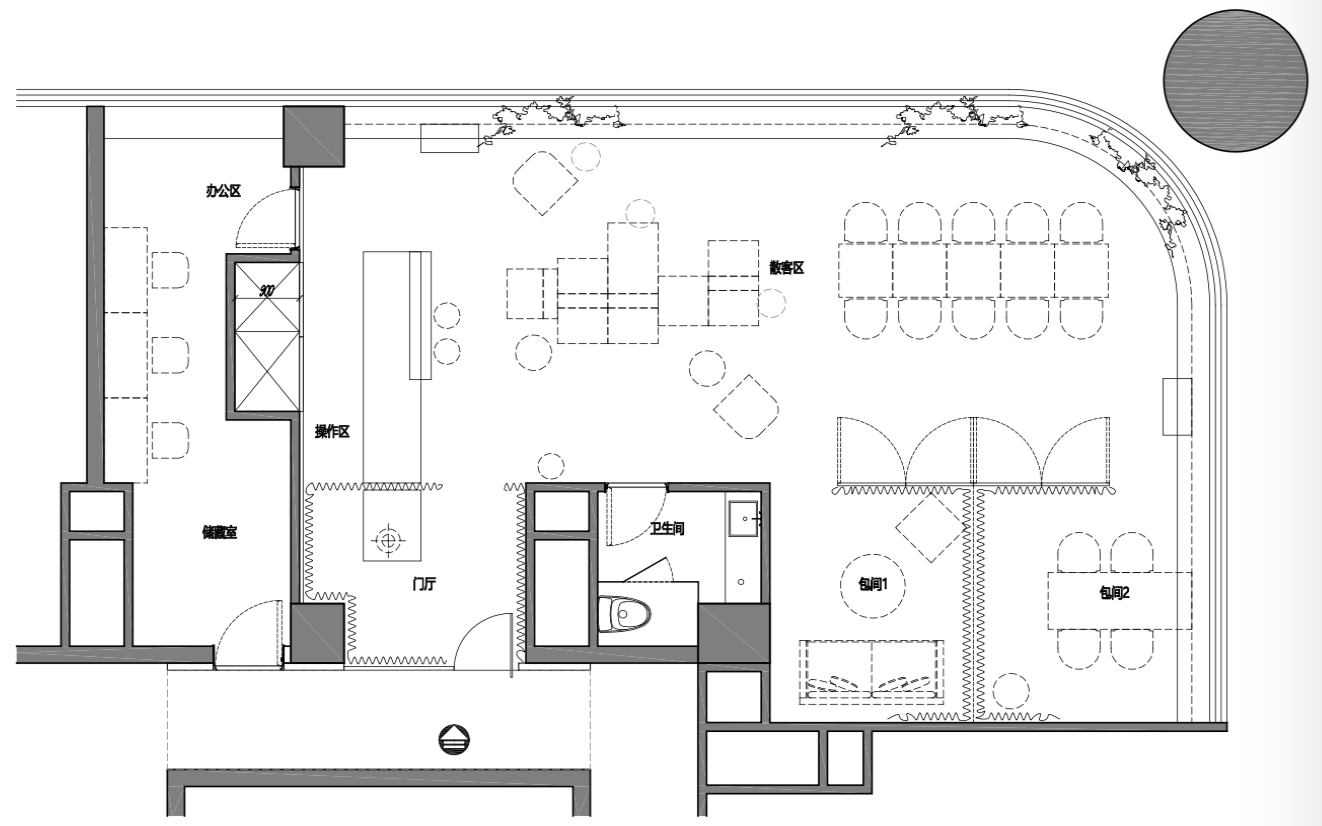
户型图
云弥散咖啡馆设计-4
平面布置图
玄关
云弥散咖啡馆设计-7
操作区
云弥散咖啡馆设计-9
云弥散咖啡馆设计-10
云弥散咖啡馆设计-11
云弥散咖啡馆设计-12
云弥散咖啡馆设计-13
散客区
云弥散咖啡馆设计-15
云弥散咖啡馆设计-16
云弥散咖啡馆设计-17
云弥散咖啡馆设计-18
云弥散咖啡馆设计-19
云弥散咖啡馆设计-20
云弥散咖啡馆设计-21
云弥散咖啡馆设计-22
云弥散咖啡馆设计-23
云弥散咖啡馆设计-24
云弥散咖啡馆设计-25
云弥散咖啡馆设计-26
包间
云弥散咖啡馆设计-28
云弥散咖啡馆设计-29
云弥散咖啡馆设计-30
云弥散咖啡馆设计-31
云弥散咖啡馆设计-32
云弥散咖啡馆设计-33
云弥散咖啡馆设计-34
云弥散咖啡馆设计-35
云弥散咖啡馆设计-36
云弥散咖啡馆设计-37
云弥散咖啡馆设计-38
云行设计-邢芒芒
北欧风
南京喵熊网络科技有限公司 苏ICP备18050492号-4知末 © 2018—2020 . All photos and trademark graphics are copyrighted by their owners.增值电信业务经营许可证(ICP)苏B2-20201444苏公网安备 32011302321234号
客服
消息
收藏
下载
最近