查看完整案例

收藏

下载

翻译
The ZD Villa
a luxurious resort in Hurghada, Sahl Hasheesh
By: NR ELHADEDY
Plot Area: 417 m²
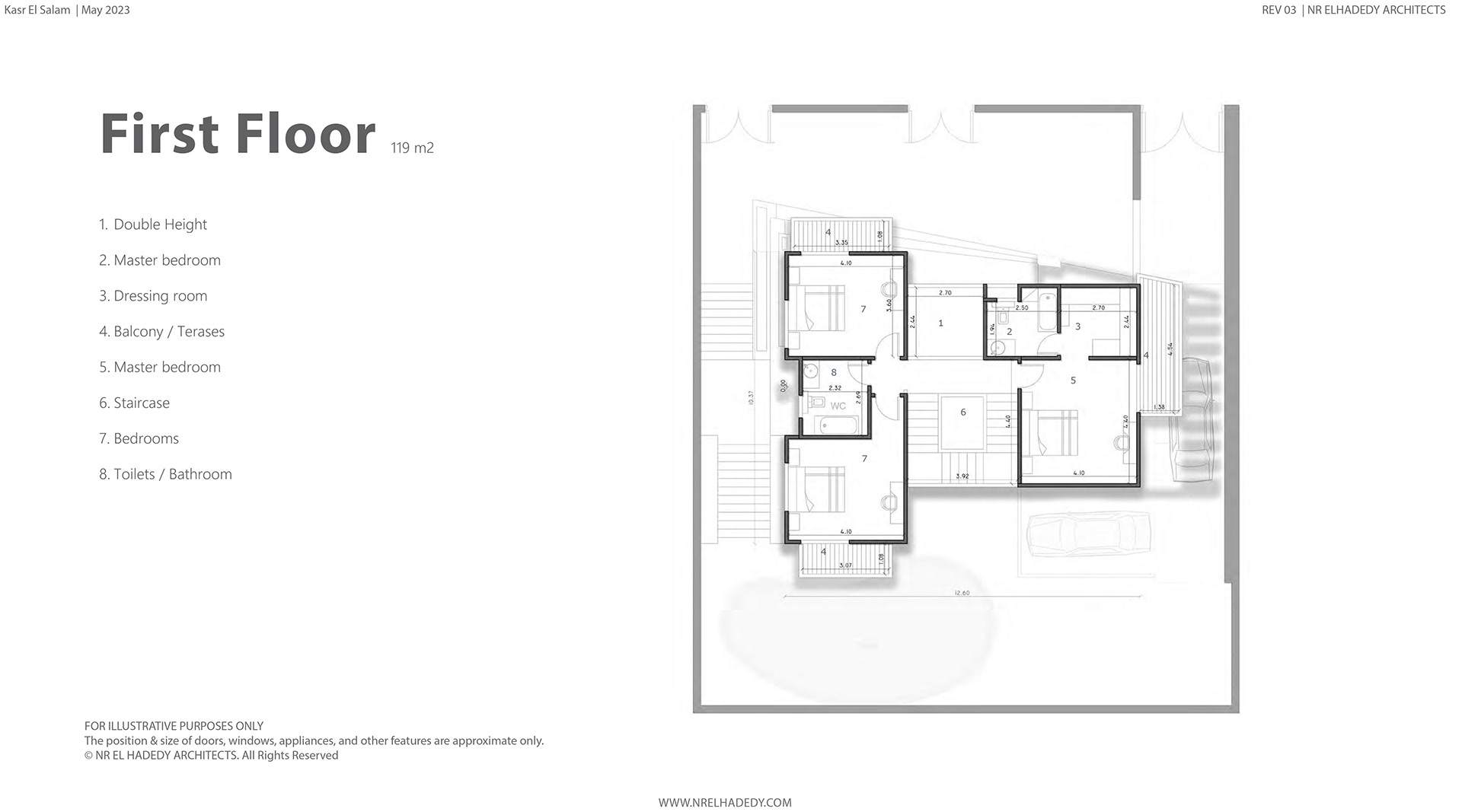
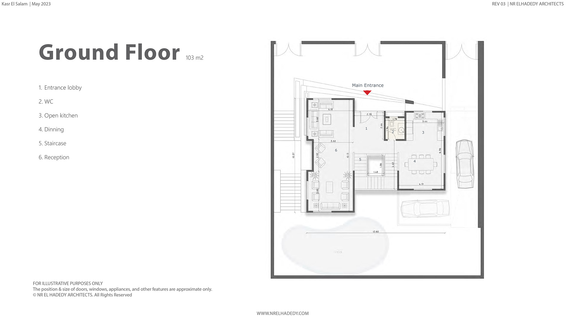
Ground Floor Area: 100 m²
The Iconic Villa stands as a testament to innovative architectural design, ensuring a balance between aesthetics and functionality. Stay tuned for more details and visuals of this exceptional project.
An iconic and functional design tailored for the modern family. This project embodies a unique blend of minimalist textures and elegant details, creating a seamless and sophisticated look that is both captivating and aesthetically pleasing.
The smooth, defined lines present throughout the four facades create a dynamic and cohesive design, making a bold statement in any setting.
But it’s not just the exterior that’s impressive. The internal spaces are carefully designed to provide maximum functionality and flexibility, tailored to meet the needs of today’s modern family.
The open-plan living areas seamlessly blend with the outdoor spaces, creating a sense of spaciousness and connection with nature. Each room is thoughtfully designed to maximize space and efficiency, accommodating changes and future needs.
--------------------------------------------------------------------------------------------------
WEBSITE | FACEBOOK | INSTAGRAM
客服
消息
收藏
下载
最近















