查看完整案例

收藏

下载

翻译
MEDICO HEALTH CLINICS AND LEARNING CENTER
Faculty of Engineering architecture department, Cairo University
Year: 2022/2023 "Fourth Academic Year"
Location: Fifth Settlement, New Cairo
Function: Medical Center
Software Used: Autodesk Revit, Lumion, Photoshop
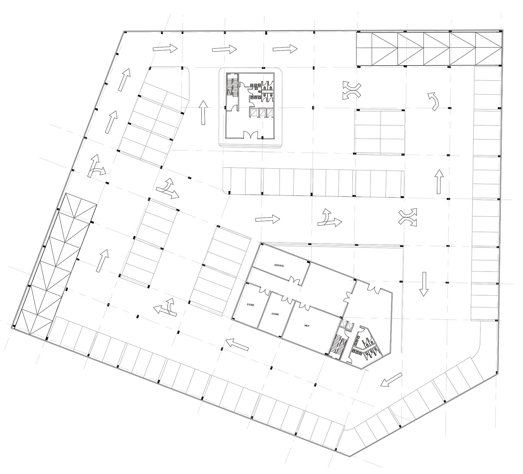
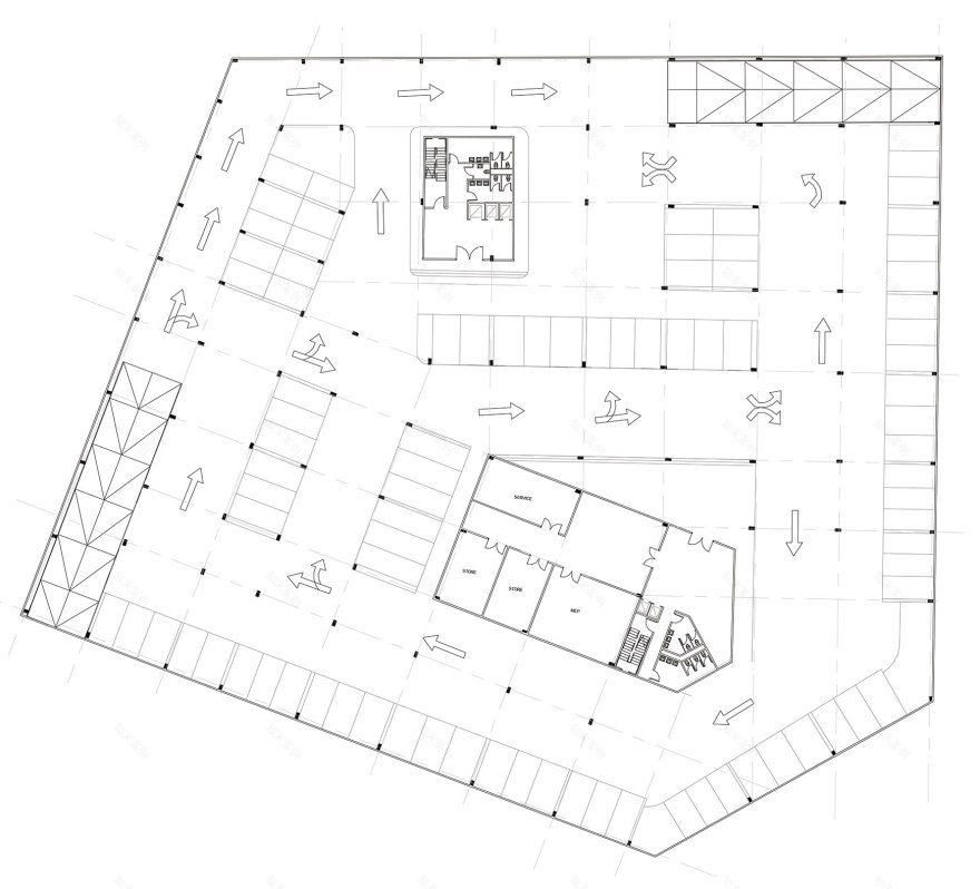
GROUND FLOOR PLAN LAYOUT BASEMENT
EXTERIOR SHOTS
PRESENTATION BOARD
客服
消息
收藏
下载
最近












