查看完整案例

收藏

下载

翻译
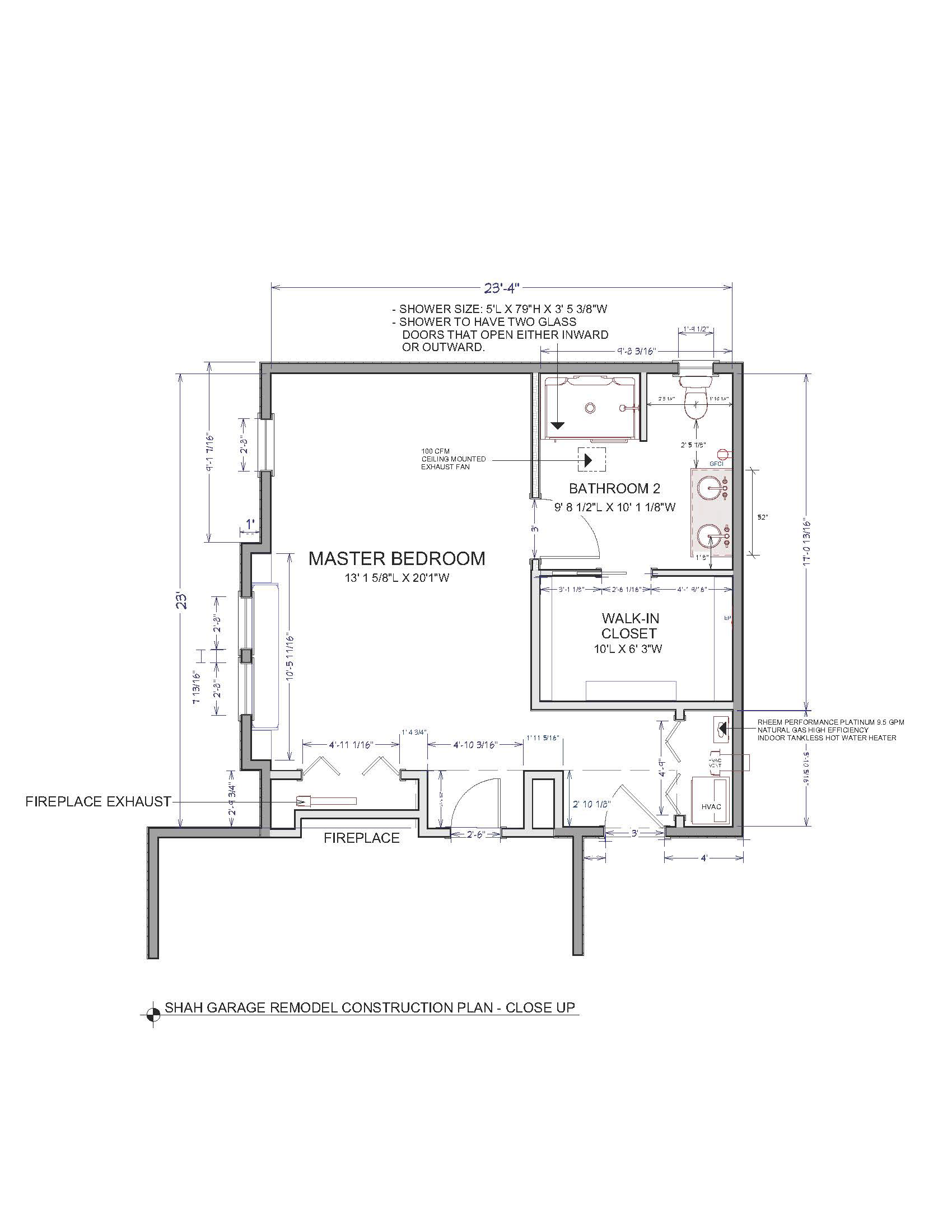
This client asked me to help them convert their garage to a primary bedroom/suite. I was able to add walls to create a bathroom and walk-in closet. I also created a wall where the garage door was. This wall is where I placed a window seat and built-in bookshelves. The 3D rendering shows some of the color palette changes and focal wall changes. This project is still under construction (6/20/22).
客服
消息
收藏
下载
最近









