查看完整案例

收藏

下载

翻译
Architects:Arcke
Area:200m²
Year:2020
Photographs:Andy Macpherson Studio
Manufacturers:Classic Ceramics,Cult,Laminex,Lumen8
Lead Architects:Matt Kennedy
Builder / Contractor:Mair Constructions
Interiors And Styling:Kate Kennedy
City:Northgate
Country:Australia
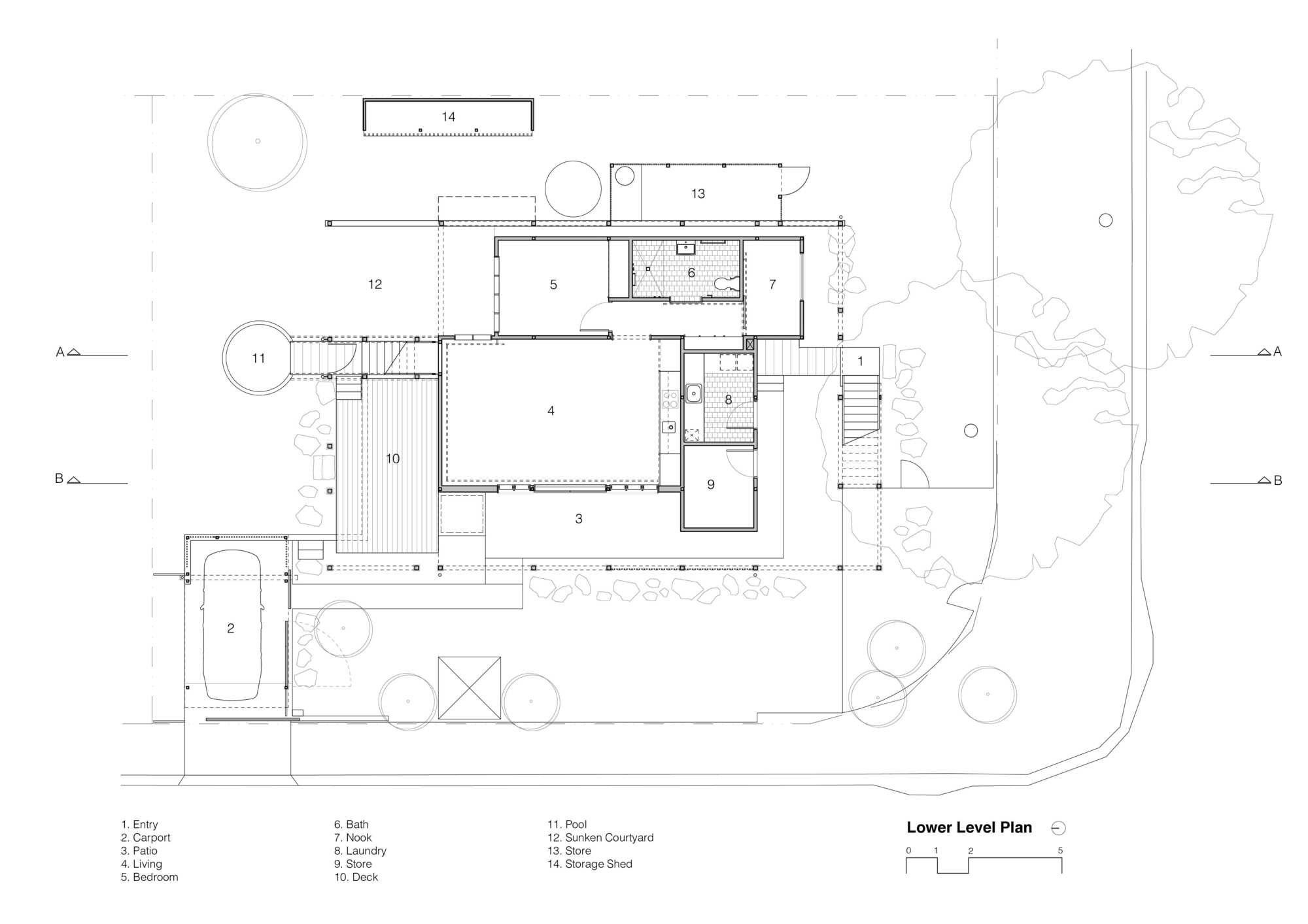
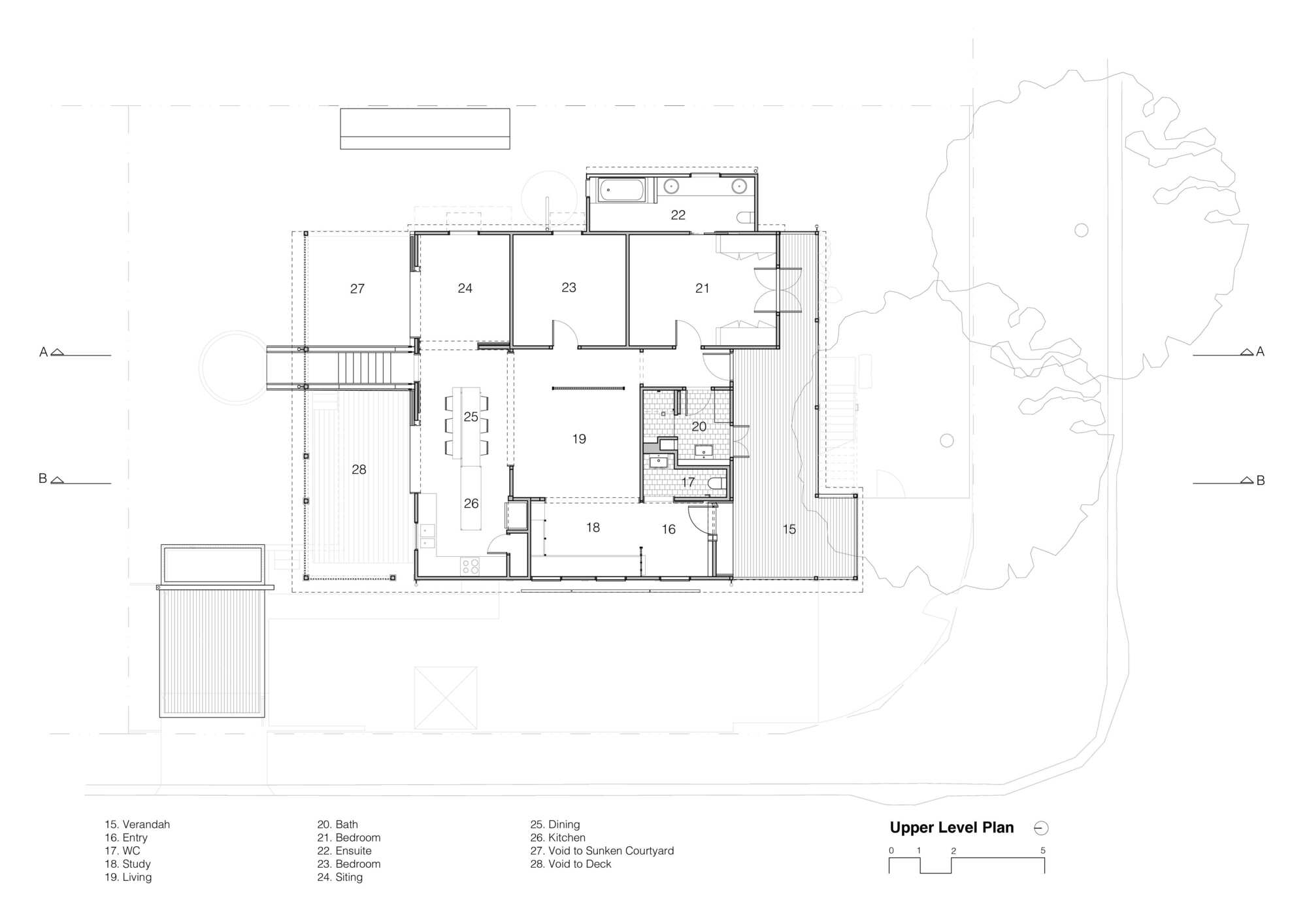
Text description provided by the architects. In their original brief, our Japan-loving clients wanted to lift the house and build under it to accommodate a multi-generational family.
Connection and separation became key themes, as the family ideally would lead independent lives but come together in mutual spaces. Consequently, the outdoor dining area inhabits an intermediate level between the main residence upstairs and the two-bedroom apartment below. This space and its relationship to the garden provides for social interaction between the family, without particular ownership from either upstairs or downstairs.
In Japanese architecture, an engawa is a covered area facing a garden that also serves as a passageway or sitting space. In Queensland, the veranda provides a similar role and the crossover between these two cultural similarities enabled some interesting architectural exploration in thresholds and filtration of privacy. In this project, we’ve peeled away the rear of this Queenslander to create multiple spaces occupying the edge and expanding the habitable threshold between inside and out.
Eroding areas of the existing floor plan significantly improved connections between the living spaces with landscape. Where a bathroom was once built on to the rear corner, now there is a sunken garden. By opening up this enclosed rear of the house, a serene green outlook has been created that is enjoyed from above, below and within. The peaceful aspect is complemented and contained by the landscaped roof of the single carport.
Project gallery
客服
消息
收藏
下载
最近




































