查看完整案例

收藏

下载

翻译
Architects:07BEACH
Area:238m²
Year:2024
Photographs:Joe Chikamori
Manufacturers:Daiko,FONTE TRADING,LIXIL,Motohara Tatami,Nagoya Mosaic,Takemura Sekizai Kensetu CO.,LTD.,Uezato Wood Work,Yachimunya
Lead Architect:Joe Chikamori
Contractors:Fine Life Company Ltd.
Structure Engineers:Kuroiwa Structural Engineers Co., Ltd.
Lighting Designers:Daiko Electric, Daiko Electric Company Limited
Gardening:OtaRyuga
Indigo Dye:Shima Aii
Tatami Mat:Motohara Tatami
Metalwork:Asahi Seisakusho
Shisa (Okinawan Guardian Lion Dog Statue):Yachimunya
Shade, Curtain:MIX satellite
Woodworks:Uezato Wood Work
City:Ishigaki
Country:Japan
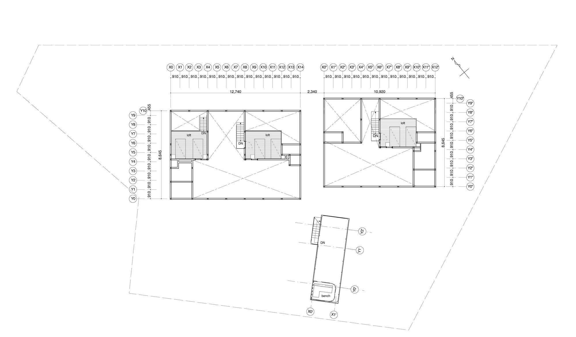
Text description provided by the architects. The two vacation rental villas stand on a hill on Ishigaki island, overlooking the sea, located in the center of the Yaeyama Islands in Okinawa. It was designed from the initial stage to have typical features of architecture in Yaeyama islands as an accommodation facility for tourists, and the outline of the island-style was created by referencing a form of traditional houses with a wooden structure with high openness, a red-tiled roof, stone wall and Fukugi trees surrounding the site.
A garden was placed on the seaside, and the two buildings are placed on the remaining roadside, facing straight to the front road, which is the best way in line with the local architectural culture to show the roofs beautifully, in contrast to the walls hidden behind trees. The two buildings have a unified design, but as facilities to be used individually, the flow lines and the privacy were designed.
The west building has a stone-paved floor that continues from the outside to allow bicycles to enter and is slightly larger than the east building, with the concept of allowing a large group to stay actively, while the east building has a raised floor level with a wooden finish like an ordinary house, with the concept of allowing a family to stay in a relaxed way.
While the trees and the stone walls block the view from the roadside for both buildings, once inside the premises, the fully open elevation connects the view from the road to the sea. The plan was made to create a sense of connection between the various places created, such as the garden and the interior, the bedroom, and the living room.
In designing individual elements while actively using local materials and techniques, showcasing such familiar materials in a way that brings out new charm was aimed. Taking traditional houses as a general framework, on the other hand, each element was carefully designed with a contemporary sense, with the hope that this accumulation will create a quality lodging experience.
Important features/details,
The heavy red roof tiles and stone walls and Fukugi trees surrounding the site are the architectural style of this region, nurtured by a history of dealing with typhoons.
Two young Okinawan Shisa (guardian lion) artists created the earth-colored Shisa and the white Shisa, with their own artistic sensibility for each entrance.
In the bedroom, both the indigo-dyed cedar floors and the tatami mats are made by local craftsmen from local indigo and rush grass.
A passageway between two buildings. The eaves are thinly spaced so that both sunlight and rain can be felt impressively.
On the rooftop of the outbuilding, a bench overlooking the dense forest in the foreground and a panoramic view of the ocean beyond is shaded by climbing bougainvillea.
The ping-pong table is also made of limestone, one of the island's most representative materials, with a polished top and a ruggedly stacked leg that showcases the different expressions of each stone processing.
Project gallery
客服
消息
收藏
下载
最近











































