查看完整案例

收藏

下载
当平面上的一个正方形用轴测画出来时,在眼睛看来它就像是一个三维投影。当一层以上的平面以等轴测投影时,它会非常自然地建造起来,并且仍然呈现为三维表现。当菱形以等轴测绘制且平面不止一层时,就会出现一种非常特殊的现象。这些形式看起来像是二维的,这些楼层在先在的二维视图中相互重叠。在等轴测中,形式向画布平面倾斜,它们是三维的,但更强的二维读解却占据主导地位。
When a square on a plane is drawn using axonometric projection, it appears as a three-dimensional projection to the eyes. When multiple layers of planes are projected with isometric projection, they naturally construct and still present a three-dimensional representation. When rhombi are drawn with isometric projection and there are more than one layer of planes, a very special phenomenon occurs. These forms appear two-dimensional; these layers overlap with each other in the initial two-dimensional view. In isometric projection, the forms tilt towards the canvas plane; they are three-dimensional, but a stronger two-dimensional interpretation dominates.————JOHN HEJDUK 《MASK OF MEDUSA》
▼公区看向店铺,Viewing the shop from public area ©立明
▼店铺界面,Storefront ©立明
▼空间概览,Space Overview ©立明
正如立体派画家在他们的绘画中将物体向绘画平面(画面)倾斜一样,菱形的等轴侧投影也为建筑图纸提供了类似的视角。使用菱形等距轴测,摒弃古老过时的透视投影形式,将把空间的质量传递给观察者。简单来说,我们希望像那些立体派画家的作品一样为空间提供更多的视角和体验,用这样的方式让空间丰富起来。
▼设计概念,Design Concept©脚本建筑研究室
Similar to how Cubist painters tilt objects towards the painting plane (canvas) in their paintings, the isometric oblique projection of rhombi provides a similar perspective for architectural drawings. Using rhombic isometric projection, abandoning the outdated perspective projection forms, delivers the quality of space to the observer. In essence, we aim to provide space with more perspectives and experiences, enriching space in a way similar to the works of Cubist painters.
▼品牌 LOGO,Brand LOGO ©立明
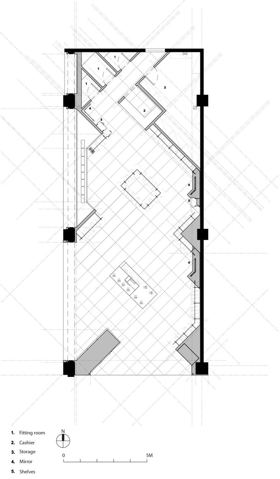
店铺空间是一个相对标准并且对称的长方形空间,这是一个非常干净并且拥有许多可能性的空间基底,但这也意味着普通的空间布局会使店铺体验感相对乏味。因店铺西侧和南侧为开敞展示面/出入口,在商场中多个入口和区域的视角都能以 45°看到空间本身,再加入概念中对设计的预想,我们想以 45°线条进行趣味性的布局切割,将空间切割成拥有多个独特视角和功能体验的区域,菱形侧向边界由点到线的延伸,也意味着空间从过去-现在-未来,我们希望人们在进入空间前后根据线条的指引体验到空间的无限延伸和永无止境。在满足空间功能需求的前提下,创造一种更加新奇的购物体验。
▼空间轴测,Spatial axonometry©脚本建筑研究室
The retail space is a relatively standard and symmetrical rectangular space, a clean and versatile spatial base with many possibilities. However, this also means that a conventional spatial layout might result in a relatively dull shopping experience. Due to the openness and entrances on the west and south sides of the store, multiple entrances and areas in the mall offer a 45-degree view of the space. Adding the conceptual anticipation in the design, we intend to create an interesting layout cut at a 45-degree angle, dividing the space into areas with unique perspectives and functional experiences. The oblique boundaries of the rhombus extend from points to lines, implying space from past to present to future. We hope people experience the infinite extension and endlessness of space based on the guidance of lines before and after entering the space. While meeting the functional needs of the space, we aim to create a more novel shopping experience.
▼室内概览,overview of the interior space©立明
▼岛台设计,Island Design©立明
▼岛台细部,Island Details©立明
▼品牌展示窗,Brand Display window©立明
我们将洞石和金属作为主要的建筑材料,以其独特的纹理和自然的美感,将 BONELESS 打造成一个充满未来感但不失格调的空间。洞石的存在感赋予了空间厚重感与自然亲近感,而金属用于增强空间的未来感,金属的精致与洞石的粗糙形成鲜明的对比,创造出令人印象深刻的视觉效果,由此突出 BONELESS 独一无二的品牌态度。
We use travertine and metal as the main building materials, creating a space for BONELESS that is futuristic yet tasteful, with their unique textures and natural beauty. The presence of travertine gives the space a sense of weight and closeness to nature, while metal enhances the futuristic feel. The contrast between the delicacy of metal and the roughness of travertine creates an impressive visual effect, highlighting the unique brand attitude of BONELESS.
▼收银台和试衣间,Cash register and fitting room ©立明
▼吊架设计,Hanger Design ©立明
▼吊架细胞,Hanger Detail ©立明
▼展架细部,Details the shelves©立明
▼景观细部,Details of planting©立明
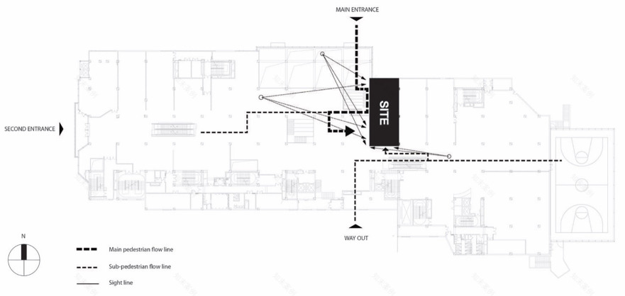
▼BONELESS 北京场地分析,BONELESS Beijing site analysis ©脚本建筑研究室
▼平面图,Plan©脚本建筑研究室
▼天花轴测,Axonometry of the ceiling ©脚本建筑研究室
项目名称:菱形画布——BONELESS 服装店北京一盒分店
项目类型:室内设计,消费空间设计
设计方:脚本建筑研究室
项目设计:2023
完成年份:2023
设计团队:秦铭煊,孙竟博,王一迪(工程管理),陈家欣(分析图)
项目地址:北京市朝阳区一盒朝外年轻力中心
建筑面积:180㎡
摄影版权:立明
合作方:灯光顾问——张帆工作室
客户:BONELESS
材料:洞石, 金属
客服
消息
收藏
下载
最近

























