查看完整案例


收藏

下载
“用设计挣脱被空间束缚的形态
合理的改造契合居住者的愿景
每一次设计都是私人订制”
喜欢江景房的人,都有一种情怀
选择江景房,并不是说江景有多美,多好看
所爱的只是日出时分迎着朝霞俯瞰两岸的壮阔
以及夕阳西下览万家灯火的情怀
在如今越来越现代化的都市中 有的只是高楼林立,人与人之间的距离近了 心与心的距离却远了 而江景房,面对大江鸟瞰的情怀 使我们能有一段安静平和的时光 去回忆往昔,静静的品味生活
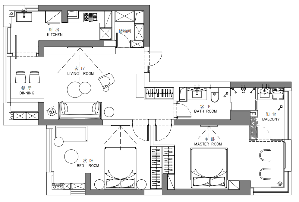
客卧和餐厅有一个共同点,也是本次设计的神来之笔,在原建筑的基础上,把原本露台部分加筑封顶,不仅拓展了空间,还丰富了空间的层次感。
灰色营造出了慵懒的气息,有了诗人般的意境。使舒适考究的卧室会更有尊贵沉稳感
项目地点:杭州
设 计 师:博登
项目类型:半包
装修风格:现代简约
摄 影 师:林峰
客服
消息
收藏
下载
最近























